Diese schöne 3 Zimmerwohnung liegt in der 2. Etage unseres gepflegten Mehrfamilienhauses am Rothenberg. Das moderne Badezimmer ist mit einer ebenerdigen Dusche ausgestattet. Zudem verfügt die Wohnung über eine tolle Loggia.
Infos
| Wohnungskategorie | Etagenwohnung |
|---|---|
| Etage | 2 von |
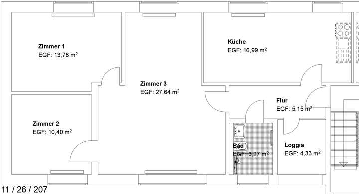
| Wohnfläche ca. | 78 m2 |
| Bezugsfrei ab | sofort |
| Zimmer | 3 |
Kosten
| Kaltmiete |
672 € |
|---|---|
| Nebenkosten | + 270 € |
| Heizkosten | in Nebenkosten enthalten |
| Gesamtmiete | 942 € |
| Kaution o. Genossenschaftsanteile | 2020.00 |
Weiter mieten oder doch kaufen?
Wer in Miete wohnt, überweist dem Vermieter im Laufe der Jahre hohe Summen, die sich
auch in die eigenen vier Wände investieren lassen könnten.
Bausubstanz & Energieausweis
| Baujahr | 1929 |
|---|
Ausstattung
Lage
In Rothenditmold nehmen große Werke internationaler Industriekonzerne, Gewerbegebiete und Bahnanlagen die Hälfte der Fläche des Stadtteils ein. Der dörfliche Charakter konnte dennoch in einem kleinen Teilbereich bewahrt werden. Grünflächen, Kleingartenvereine und die Döllbachaue bieten ausreichend Kontraste zu den Industriegeländen. Unter den bebauten Flächen findet sich auch eine architektonische Besonderheit: die Rothenbergsiedlung.
Einhergehend mit der Industrialisierung war der Bedarf an Wohnfläche für die Arbeiter. 1929 bis 1931 baute der renommierte Architekt Otto Haesler auf dem Rothenberg einen für damalige Verhältnisse neuartigen Siedlungs-komplex, der die Wohnungsnot lindern sollte. Der von zeitgenössischen internationalen Fachleuten als eines der bedeutendsten Siedlungsprojekte seiner Zeit bezeichnete Wohnkomplex steht heute unter Denkmalschutz. Weitere Wohnbebauung gruppiert sich um den alten, ehemaligen Ortskern und entlang der Hauptverkehrsader Wolfhager Straße.
Einzelhandel und der private Dienstleistungsbereich sind in diesem Stadtteil gut vertreten. Entlang der Wolfhager Straße finden sich zahlreiche Geschäfte, Kleinbetriebe und gastronomische Angebote. In einigen brachliegenden Industriegebäuden haben sich neue Betriebe angesiedelt. Die Anbindung an die Innenstadt von Kassel wird über Busse des öffentlichen Personen-Nahverkehrs gewährleistet.
Sonstige Angaben
links
Grundriss
Bild
>
>
Adresse
Rotenburger Straße 20, 34127 Kassel
Interessante Orte
Preis- und Lageinformationen
Preistrend für Bestandsimmobilien in Rothenditmold