Die großzügige 2,5-Zimmer-Wohnung mit rund 83 m² Wohnfläche befindet sich in einem gepflegten Altstadthaus in bester Lage von Landshut und vereint historischen Charme mit modernem Wohnkomfort. Schon beim Betreten der Wohnung spürt man den besonderen Charakter des Gebäudes – hohe Decken, stilvolle Details und eine angenehme Raumaufteilung schaffen eine Atmosphäre, die sowohl gemütlich als auch repräsentativ wirkt.
Der lichtdurchflutete Wohnbereich ist zur Altstadt hin ausgerichtet und bietet durch die großen Fenster einen wunderbaren Blick auf die belebte Umgebung. Hier lässt sich das städtische Treiben beobachten, ohne auf Ruhe und Privatsphäre verzichten zu müssen. Der Raum bietet reichlich Platz für eine gemütliche Wohnlandschaft und einen zusätzlichen Essbereich. Durch die großzügige Gestaltung entsteht ein offenes, freundliches Wohngefühl, das zum Verweilen einlädt.
Das Schlafzimmer liegt ruhig auf der Rückseite der Wohnung und bietet somit den idealen Rückzugsort. Es ist geräumig geschnitten und bietet ausreichend Platz für ein großes Bett mit Kleiderschränke. Der separate halbe Raum eignet sich hervorragend als Büro, Ankleidezimmer oder kleines Gästezimmer – perfekt für alle, die von zu Hause aus arbeiten oder einfach ein wenig zusätzlichen Raum schätzen.
Die Küche ist mit einer modernen Einbauküche ausgestattet, die sich stilistisch harmonisch in das Gesamtbild der Wohnung einfügt. Neben den hochwertigen Geräten steht auch ein Esstisch zur Verfügung, der zusammen mit der Küche abgelöst werden soll. Durch die geschickte Raumaufteilung entsteht ein funktionaler und zugleich gemütlicher Koch- und Essbereich, der sowohl für den Alltag als auch für gesellige Abende bestens geeignet ist.
Das neu renovierte Badezimmer mit einem kleinen Fenster ist klassisch gestaltet und verfügt über eine Dusche, ein Waschbecken, sowie einer Toilette. Helle Fliesen und eine klare Linienführung sorgen für ein gepflegtes Erscheinungsbild und eine angenehme Atmosphäre. Ein Waschmaschinenanschluss ist ebenfalls vorhanden, wodurch der Komfort im Alltag zusätzlich erhöht wird.
Die Wohnung überzeugt nicht nur durch ihren Grundriss und ihre Ausstattung, sondern vor allem durch ihre Lage: Mitten in der Landshuter Altstadt, umgeben von charmanten Gassen, historischen Gebäuden und einem vielseitigen Angebot an Geschäften, Restaurants und kulturellen Einrichtungen. Hier wohnt man mitten im Leben, profitiert aber zugleich von der ruhigen und angenehmen Atmosphäre eines gepflegten Altstadthauses.
Insgesamt bietet diese 2,5-Zimmer-Wohnung ein außergewöhnliches Wohngefühl für alle, die den Charakter und die Geschichte der Altstadt und den Charme eines Altstadthauses schätzen, ohne auf modernen Komfort verzichten zu wollen – ideal für Singles, Paare oder Berufstätige mit Sinn für Stil und Individualität.
Wohnen mit Geschichte – stilvolle Altstadtwohnung mit Charme und Blick ins Herz von Landshut
84032 Landshut
Die vollständige Adresse der Immobilie erhalten Sie vom Anbieter.
Auf Karte anzeigen
Die vollständige Adresse der Immobilie erhalten Sie vom Anbieter.
Infos
| Wohnungskategorie | Etagenwohnung |
|---|---|
| Etage | 3 von 3 |
| Wohnfläche ca. | 83 m2 |
| Bezugsfrei ab | 01.01.2026 |
| Zimmer | 2,5 |
| Schlafzimmer | 1 |
| Badezimmer | 1 |
| Haustiere | Nach Vereinbarung |
Kosten
| Kaltmiete |
975 € |
|---|---|
| Nebenkosten | + 190 € |
| Heizkosten | in Nebenkosten enthalten |
| Gesamtmiete | 1.165 € |
| Kaution o. Genossenschaftsanteile | 3 Monatskaltmieten |
Weiter mieten oder doch kaufen?
Wer in Miete wohnt, überweist dem Vermieter im Laufe der Jahre hohe Summen, die sich
auch in die eigenen vier Wände investieren lassen könnten.
Bausubstanz & Energieausweis
| Baujahr | unbekannt |
|---|---|
| Letzte Sanierung | 2025 |
| Objektzustand | Saniert |
| Qualität der Austattung | Normal |
| Heizungsart | Etagenheizung |
| Wesentliche Energieträger | Gas |
| Energieausweis | laut Gesetz nicht erforderlich |
Beschreibung des Objekts
Lage
Die Wohnung liegt in der Altstadt 74, im Herzen von Landshut, und befindet sich damit in einer der begehrtesten und geschichtsträchtigsten Lagen der Stadt. Die Altstadt ist das pulsierende Zentrum Landshuts und zeichnet sich durch ihre einzigartige Kombination aus historischer Architektur, lebendigem Stadtleben und hoher Lebensqualität aus. Das Wohn und Geschäftshaus fügt sich harmonisch in das denkmalgeschützte Stadtbild ein und bietet einen besonderen Charme, der typisch für die Landshuter Altstadt ist.
Direkt vor der Haustür eröffnet sich die Fußgängerzone mit zahlreichen Boutiquen, Fachgeschäften und traditionellen Handwerksbetrieben. Auch kulinarisch hat die Umgebung einiges zu bieten: von gemütlichen Cafés über regionale Wirtshäuser bis hin zu gehobenen Restaurants findet man hier alles, was das Herz begehrt. Wochenmärkte und kulturelle Veranstaltungen, wie die Landshuter Hochzeit oder verschiedene Stadtfeste, sorgen das ganze Jahr über für eine lebendige Atmosphäre.
Trotz der zentralen Lage bietet das Umfeld ein angenehmes und ruhiges Wohnen. Durch die verkehrsberuhigte Zone gibt es kaum Durchgangsverkehr, und viele Wege lassen sich bequem zu Fuß oder mit dem Fahrrad erledigen. Öffentliche Verkehrsmittel sind nur wenige Gehminuten entfernt, sodass auch weiter entfernte Ziele innerhalb Landshuts oder in Richtung München und Regensburg gut erreichbar sind. Der Hauptbahnhof ist in rund 10 bis 15 Minuten zu Fuß oder in wenigen Minuten mit dem Bus erreichbar.
Für Freizeit und Erholung sorgt die nahe gelegene Isar mit ihren weitläufigen Uferwegen, die zu Spaziergängen, Joggingrunden oder Fahrradtouren einladen. Ebenso befinden sich Grünflächen, Parks und kulturelle Einrichtungen wie das Landestheater Niederbayern, Museen und Galerien in unmittelbarer Nähe. Schulen, Kindergärten und medizinische Versorgungseinrichtungen sind ebenfalls schnell erreichbar, was die Lage sehr attraktiv macht.
Insgesamt bietet die Wohnung in der Altstadt 74 eine perfekte Verbindung aus urbanem Komfort, historischem Ambiente und hoher Lebensqualität – ideal für alle, die das Leben im Zentrum einer traditionsreichen und zugleich modernen Stadt schätzen.
Sonstige Angaben
Der Personenaufzug führt bis in den zweiten Stock. Das weitere Stockwerk bis zum 3. Obergeschoss muss man zu Fuß bewältigen. Die Einbauküche soll für
€ 5.000,00 abgelöst werden! Es handelt sich um eine Küche mit Mielengeräten; mit Kühlschrank, Geschirrspüler, Herd, Backofen und Dunstabzug, Tisch mit 2 Stühlen und eine Lampe.
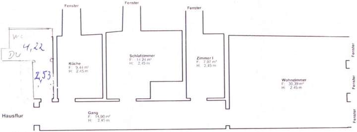
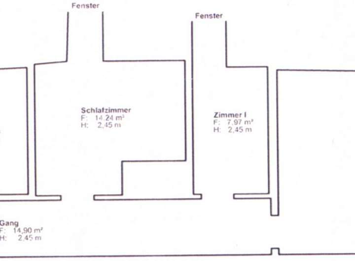
Grundriss
Grundriss
>
>
Adresse
84032 Landshut
Interessante Orte
Preis- und Lageinformationen
Preistrend für Bestandsimmobilien in Altstadt