Bei dem Ihnen angebotenen Objekt handelt es sich um eine wahre Rarität auf dem Immobilienmarkt: Das am Südhang gelegene Grundstück wurde 1930 mit einem klassischen Einfamilienhaus bebaut.
Klassiker am Fuße des Hasenbergs
70199 Stuttgart
Die vollständige Adresse der Immobilie erhalten Sie vom Anbieter.
Auf Karte anzeigen
Die vollständige Adresse der Immobilie erhalten Sie vom Anbieter.
Infos
| Haustyp | Einfamilienhaus |
|---|---|
| Etagenzahl | 3 |
| Wohnfläche ca. | 229 m2 |
| Grundstücksfläche | 2.434 m2 |
| Bezugsfrei ab | nach Vereinbarung |
| Zimmer | 6 |
| Badezimmer | 2 |
| Garage/Stellplatz | Garage |
| Anzahl Garage/Stellplatz | 2 |
Kosten
| Kaltmiete |
4.680 € |
|---|---|
| Nebenkosten | + 595 € |
| Heizkosten | keine Angabe |
| Gesamtmiete | 5.275 € |
| Kaution o. Genossenschaftsanteile | 3 Monatsnettokaltmieten |
Weiter mieten oder doch kaufen?
Wer in Miete wohnt, überweist dem Vermieter im Laufe der Jahre hohe Summen, die sich
auch in die eigenen vier Wände investieren lassen könnten.
Bausubstanz & Energieausweis
| Heizungsart | Öl-Heizung |
|---|---|
| Wesentliche Energieträger | Öl |
| Energieausweis | liegt vor |
| Energieausweistyp | Bedarfsausweis |
| Energieverbrauchskennwert | 181,2 kWh/(m²*a) |
| Energieeffizienzklasse | F |
181,2
kWh/(m²*a)
Energieeffizienzklasse F
- A+
- A
- B
- C
- D
- E
- F
- G
- H
- 0
- 25
- 50
- 75
- 100
- 125
- 150
- 175
- 200
- 225
- >250
Beschreibung des Objekts
Ausstattung
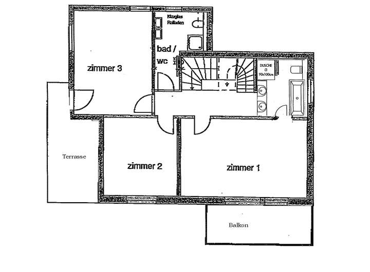
Die Immobilie wurde im Jahr 2014 aufwendig und liebevoll saniert (Haustechnik, Erneuerung des Daches, Renovierung der Außenfassade und des Treppenhauses, Elektroinstallationen, Fenster, Außenanlagen etc.) und befindet sich dementsprechend in einem tadellosen Zustand. Eine der Maßgaben bei der Durchführung der Renovierung war der Erhalt und - soweit technisch möglich und sinnvoll - die Überarbeitung und Rekonstruktion der charmanten Architektur. Die Ausstattung ist stilsicher und zeitlos und verleiht dem Haus ein ganz besonderes Flair. Über den Haupteingang gelangen Sie in das Erdgeschoss, wo Sie die charmante Wohnebene erwartet. Bereits von dieser Ebene können Sie sowohl einen tollen Stadtblick, als auch Ruhe sowie das grüne Umfeld genießen. Im Obergeschoss befinden sich drei großzügige Zimmer- wovon eines aktuell als Ankleidezimmer genutzt wird - wie auch zwei moderne Badezimmer. Im Dachgeschoss befindet sich ein tolles Studio.
Der Garten ist ein Naturparadies mit vielen Blumen, Sträuchern und Bäumen - quasi mitten in der Stadt. Der großzügige Kellerbereich sowie zwei Einzelgaragen runden das Angebot ab.
Lassen Sie sich im Zuge einer Besichtigung von dieser Immobilie verzaubern.
Lage
In bevorzugter Halbhöhenlage steht dieses stilvolle, freistehende Einfamilienhaus zur Anmietung bereit. Die unmittelbare Nähe zur Innenstadt und sämtlichen Einkaufsmöglichkeiten sowie die Nähe zum Waldgebiet machen diese Lage äußerst attraktiv. Die nahe gelegene Parkanlage der Karlshöhe sowie der Wald am Hasenberg und der Blaue Weg bieten schöne Freizeitmöglichkeiten und Spielplätze. Mit dem PKW ist man in wenigen Minuten beim Hauptbahnhof und auf der Autobahn. Der Flughafen ist mit dem PKW ca. 25 Minuten entfernt.
Sonstige Angaben
Alle Angaben sind ohne Gewähr und basieren ausschließlich auf Informationen, die uns von unserem Auftraggeber übermittelt wurden. Wir übernehmen keine Gewähr für die Vollständigkeit, Richtigkeit und Aktualität dieser Angaben.
Zwischenverkauf bleibt vorbehalten. Sollte das von uns nachgewiesene Objekt bereits bekannt sein, teilen Sie uns dieses bitte unverzüglich mit. Die Weitergabe dieses Exposees an Dritte ohne unsere Zustimmung löst gegebenenfalls Courtage- bzw. Schadensersatzansprüche aus.
Grundriss
Erdgeschoss
>
>
Obergeschoss
>
>
Dachgeschoss
>
>
Untergeschoss
>
>
Adresse
70199 Stuttgart
Interessante Orte
Preis- und Lageinformationen
Preistrend für Bestandsimmobilien in Süd