Herzlich Willkommen bei GCP!
Das Haus in der Berliner Straße 12 in Leipzig ist mehr als nur ein Gebäude – es ist eine Verwandlungsgeschichte. Wo einst hochwertige Felle, Leder und Hüte gelagert wurden, ist heute ein Wohnprojekt entstanden, das modernes Design, Komfort und eine unschlagbare Lage vereint. Hier, mitten im pulsierenden Zentrum Leipzigs, wurde Raum geschaffen für Menschen, die das Besondere suchen.
In den Jahren 2024 und 2025 wurde das Gebäude von Grund auf modernisiert und neu interpretiert. 26 stilvolle Wohneinheiten bieten exklusiven Wohnkomfort – viele mit Balkon, einige mit modernen Einbauküchen. Das Erdgeschoss und das erste Obergeschoss sind barrierearm gestaltet, ein moderner Aufzug sorgt für maximale Bequemlichkeit. Jedes Detail wurde mit Bedacht gewählt, um eine Atmosphäre zu schaffen, in der sich Eleganz und Funktionalität perfekt ergänzen. Die lichtdurchfluteten Räume, die geschmackvolle Ausstattung und die durchdachten Grundrisse lassen keine Wünsche offen.
Das 4-stöckige Wohnhaus wurde 1900 erbaut - Im separaten Seitenflügel des Gebäudes befindet sich dieses "kleine Stadthaus".
Bitte beachten Sie, dass der Mietvertrag eine Indexmietregelung enthalten wird. Die Miete kann künftig im Rahmen der Entwicklung des vom Statistischen Bundesamt ermittelten Verbraucherpreisindex (VPI) angepasst werden.
*Sichern Sie sich 1 € pro m² Mietnachlass im ersten Mietjahr bei Anmietung bis 31.12.2025 und einer Mindestmietzeit von 2 Jahren. Diese Aktion ist nicht mit anderen Angeboten kombinierbar. Bitte beachten Sie die Teilnahmebedingungen unter https://www.grandcityproperty.de/datenschutz/gutschein-aktionen
Ihr Haus mitten im Zentrum - das Familiennest in Leipzig!
Berliner Straße 12,
04105 Leipzig
Auf Karte anzeigen
Infos
| Haustyp | Sonstige |
|---|---|
| Etagenzahl | 3 |
| Wohnfläche ca. | 179 m2 |
| Grundstücksfläche | 5 m2 |
| Bezugsfrei ab | Sofort |
| Zimmer | 5 |
| Schlafzimmer | 4 |
| Badezimmer | 3 |
| Haustiere | Nach Vereinbarung |
| Garage/Stellplatz | Außenstellplatz |
| Anzahl Garage/Stellplatz | 1 |
Kosten
| Kaltmiete |
2.510 € |
|---|---|
| Nebenkosten | + 170 € |
| Heizkosten | + 296 € |
| Gesamtmiete | 2.976 € (zzgl. Heizkosten) |
| Miete für Garage/Stellplatz | 90 € |
| Kaution o. Genossenschaftsanteile | 5.378,00 € |
Weiter mieten oder doch kaufen?
Wer in Miete wohnt, überweist dem Vermieter im Laufe der Jahre hohe Summen, die sich
auch in die eigenen vier Wände investieren lassen könnten.
Bausubstanz & Energieausweis
| Baujahr | 1900 |
|---|---|
| Letzte Sanierung | 2025 |
| Objektzustand | Erstbezug nach Sanierung |
| Qualität der Austattung | Gehoben |
| Heizungsart | Fußbodenheizung |
| Wesentliche Energieträger | Fernwärme, Nahwärme, KWK fossil |
| Energieausweis | liegt vor |
| Energieausweistyp | Bedarfsausweis |
| Energieverbrauchskennwert | 18,9 kWh/(m²*a) |
| Energieeffizienzklasse | A+ |
18,9
kWh/(m²*a)
Energieeffizienzklasse A+
- A+
- A
- B
- C
- D
- E
- F
- G
- H
- 0
- 25
- 50
- 75
- 100
- 125
- 150
- 175
- 200
- 225
- >250
Beschreibung des Objekts
Ausstattung
Dieses Haus ist mehr als nur ein Zuhause – es ist eine Investition in Lebensqualität, in Stil und in die Zukunft. Ein Ort, an dem man ankommt, bleibt und genießt. Die exklusive Vermietung erfolgt durch GCP, die hier ein herausragendes Wohnangebot geschaffen hat, das modernen Ansprüchen gerecht wird.
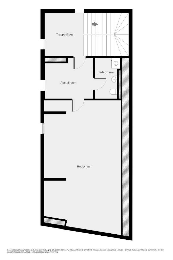
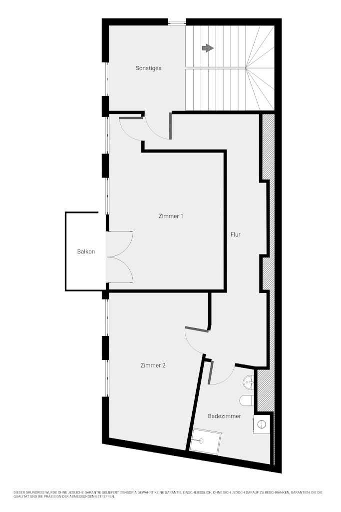
Der separate Seitenflügel verteilt sich mit seinen ca. 179 m² auf 3 Etagen und 5 Zimmer.
Aufteilung:
Erdgeschoss - Wohnzimmer mit offener Küche / Schlafzimmer mit separaten Badezimmer mit Walk-In Dusche / Gäste-WC
1. Etage - Schlafzimmer 2 / Schlafzimmer 3 /Badezimmer mit Wanne und Walk-In Dusche
2. Etage - Schlafzimmer 4 / Gäste-WC
Ausstattungshighlights:
- Moderne Einbauküche
- 2 Balkone
- 3 Bäder
- 1 Gäste-WC
- Hochwertiger Echtholz-Fußboden
- Bodentiefe Walk-in-Dusche
- Barrierearmer Zugang
- Fußbodenheizung
- Anmietung von Stellplatz möglich (davon 3 mit E-Lademöglichkeit)
- Deckenspots
- LAN-Datendosen
- Separater Kellerbereich
- Separater Fahrradabstellraum
- Haustiere nach Vereinbarung
- Um - und Ausbau nach KfW40
- Mietersprechstunde“ und „Mieterservice – 24/7 auch im Notfall immer für Sie erreichbar
Überzeugen Sie sich selbst und vereinbaren Sie schon heute Ihren persönlichen Besichtigungstermin! Herr Fischer und Herr Müller freuen sich über Ihre Nachricht
Lage
Willkommen in Leipzig - im Stadtteil Zentrum - Nord.
Im Hinterhaus des ruhigen Innenhofs liegt die gepflegte Wohnanlage.
Eine Lage mit Zukunft
Berliner Straße im Zentrum von Leipzig - Geprägt von einer Mischung aus historischer Substanz und zukunftsweisender Entwicklung, bietet sie eine perfekte Kombination aus urbanem Leben und entspanntem Rückzug. Die zentrale Lage ermöglicht kurze Wege in die Leipziger Innenstadt zu Einkaufsmöglichkeiten, kulturellen Highlights (wie den Leipziger Zoo), Gastronomie und Freizeitangeboten.
Gleichzeitig sorgt die hervorragende Verkehrsanbindung für eine schnelle Erreichbarkeit aller wichtigen Punkte der Stadt. Der Leipziger Hauptbahnhof ist nur wenige Gehminuten entfernt.
Nice to know: Löwitz Quartier, das direkt hinter der Berliner Straße 12 entstehen soll - dieses visionäre Stadtentwicklungsprojekt wird Leipzig um einen modernen, lebendigen und nachhaltigen Stadtteil bereichern. Hier entsteht Gastronomie, grüne Begegnungsräume und zahlreiche Freizeitmöglichkeiten.
Das Löwitz Quartier wird zu einem zentralen Anziehungspunkt für Bewohner und Besucher – eine perfekte Ergänzung zur exklusiven Wohnlage der Berliner Straße 12.
Sonstige Angaben
Alle Informationen zur Datennutzung und Datenschutzrechten durch Grand City Property Ltd – Zweigniederlassung Deutschland finden Sie unter: grandcityproperty.de/datenschutz.
Wichtige Hinweise:
• Bitte senden Sie uns keine vertraulichen personenbezogenen Dokumente (z. B. Gehaltsabrechnungen) vor der Besichtigung zu. Sollten Sie dies dennoch tun, werden diese Dateien umgehend gelöscht.
• Der Energieausweis kann bei der Besichtigung vorgelegt werden (ausgenommen Stellplätze/Garagen).
• Die in der Anzeige verwendeten Fotos können Beispielfotos oder KI-generierte Visualisierungen (Kennzeichnung mit „virtually staged“) sein, die der besseren Veranschaulichung der Immobilie dienen und von den tatsächlichen Gegebenheiten abweichen können.
• Sämtliche Daten in diesem Exposé, einschließlich Bilder, Grundrisse und sonstige Beschreibungen wie auch Grundrissgrafiken mit Maßangaben oder Einrichtungen, dienen ausschließlich der allgemeinen Information und stellen keine verbindlichen Zusicherungen dar. Die Daten sind so gründlich wie möglich angegeben, dennoch lassen sich Fehler nicht ausschließen. Alle Angaben im Exposé sind daher unverbindlich und etwaige Änderungen vorbehalten. Wir übernehmen daher keine Gewähr für die Richtigkeit, Vollständigkeit und Aktualität der bereitgestellten Informationen. Maßgeblich sind allein die Vereinbarungen des zu schließenden Mietvertrages. Eine Haftung für fahrlässige Fehler oder Abweichungen der Angaben wird – soweit gesetzlich zulässig – ausgeschlossen.
Grundriss
Grundriss - EG
>
>
Grundriss - 1.OG
>
>
Grundriss - 2.OG
>
>
Adresse
Berliner Straße 12, 04105 Leipzig
Interessante Orte
Preis- und Lageinformationen
Preistrend für Bestandsimmobilien in Zentrum-Nord