In dieser großzügigen Wohnung im Erdgeschoss eines gepflegten Mehrfamilienhauses stehen mehrere WG-Zimmer zur Vermietung. Die Immobilie eignet sich ideal für eine Wohngemeinschaft mit insgesamt sechs Personen. Alle Zimmer werden pauschal vermietet – inklusive Strom, Heizung, Wasser und WLAN. Die Zimmer sind teils unterschiedlich geschnitten und variieren preislich je nach Lage und Ausstattung innerhalb der Wohnung.
Zimmerübersicht mit Mietpreisen und Kautionen:
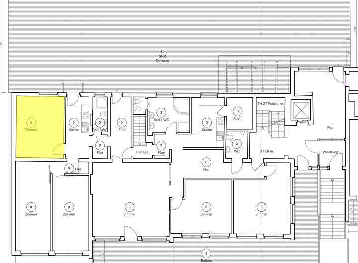
Zimmer 1: ca. 21 m² – 520,00 €/Monat – Kaution: 1.560,00 €
Zimmer 2: ca. 18 m² – 420,00 €/Monat – Kaution: 1.260,00 €
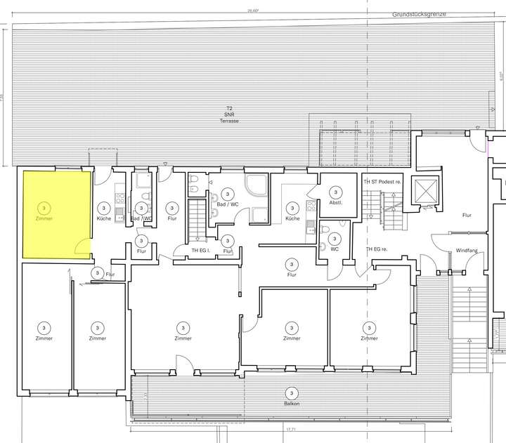
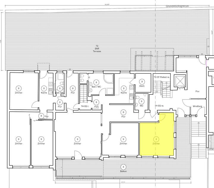
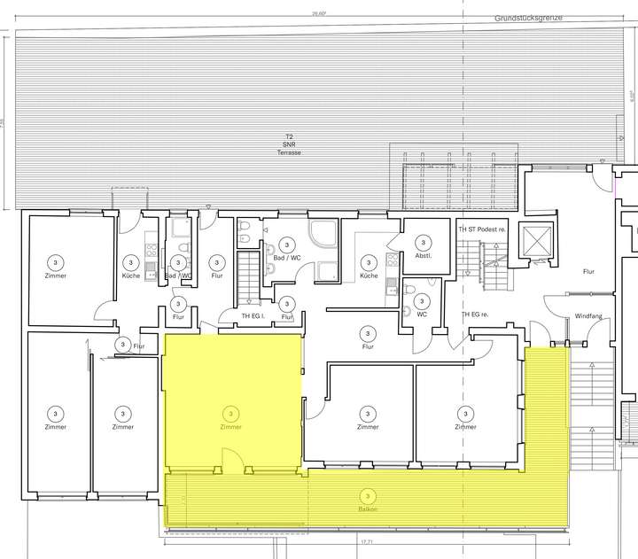
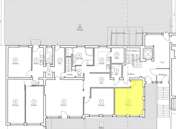
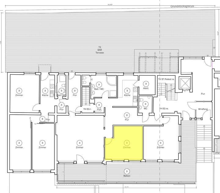
Zimmer 3: ca. 35 m² – 670,00 €/Monat – Kaution: 2.010,00 €
Zimmer 4: ca. 17 m² – 420,00 €/Monat – Kaution: 1.260,00 €
Zimmer 5: ca. 18 m² – 420,00 €/Monat – Kaution: 1.260,00 €
Zimmer 6: ca. 19 m² – 420,00 €/Monat – Kaution: 1.260,00 €
Die Wohnung wurde vollständig frisch gestrichen und in einer Küche wurden neue Elektrogeräte installiert.
Die Wohnung bietet insgesamt eine großzügige Gemeinschaftsfläche mit einer riesigen Terrasse, zwei voll ausgestatteten Einbauküchen sowie drei Bädern, was das Zusammenleben deutlich angenehmer gestaltet. Ein Waschautomat steht zur entgeltlichen Mitnutzung bereit. Darüber hinaus besteht die Möglichkeit, bei Bedarf einen abschließbaren Einzelgaragenstellplatz (50 €/Monat) oder einen Kellerraum (30 €/Monat) separat anzumieten.
WG-Neugründung: WG-Zimmer in großzügiger 6er WG - Zwei Küchen, drei Bäder, zwei Garagen und Terrasse
72250 Freudenstadt
Die vollständige Adresse der Immobilie erhalten Sie vom Anbieter.
Auf Karte anzeigen
Die vollständige Adresse der Immobilie erhalten Sie vom Anbieter.
Infos
| Wohnungskategorie | Erdgeschosswohnung |
|---|---|
| Etage | 0 von |
| Wohnfläche ca. | 19 m2 |
| Bezugsfrei ab | Sofort |
| Zimmer | 1 |
| Schlafzimmer | 6 |
| Badezimmer | 3 |
| Haustiere | Nein |
| Garage/Stellplatz | Garage |
| Anzahl Garage/Stellplatz | 2 |
Kosten
| Kaltmiete |
420 € |
|---|---|
| Nebenkosten | keine Angabe |
| Heizkosten | keine Angabe |
| Gesamtmiete | 420 € (zzgl. Nebenkosten) |
| Miete für Garage/Stellplatz | 50 € |
| Kaution o. Genossenschaftsanteile | 1260 |
Weiter mieten oder doch kaufen?
Wer in Miete wohnt, überweist dem Vermieter im Laufe der Jahre hohe Summen, die sich
auch in die eigenen vier Wände investieren lassen könnten.
Bausubstanz & Energieausweis
| Baujahr | 1980 |
|---|---|
| Objektzustand | Gepflegt |
| Qualität der Austattung | Normal |
| Heizungsart | Elektro-Heizung |
| Wesentliche Energieträger | Strom |
| Energieausweis | liegt vor |
| Energieausweistyp | Verbrauchsausweis |
| Energieverbrauchskennwert | 44,9 kWh/(m²*a) |
| Energieeffizienzklasse | A |
44,9
kWh/(m²*a)
Energieeffizienzklasse A
- A+
- A
- B
- C
- D
- E
- F
- G
- H
- 0
- 25
- 50
- 75
- 100
- 125
- 150
- 175
- 200
- 225
- >250
Beschreibung des Objekts
Ausstattung
Erdgeschosswohnung in einem gepflegten Mehrfamilienhaus
Mehrere WG-Zimmer (6 insgesamt)
Pauschalmiete (inklusive Strom, Heizung, Wasser und WLAN)
Unterschiedlich geschnittene Zimmer
Große Gemeinschaftsfläche
Riesige Terrasse
Zwei voll ausgestattete Einbauküchen
Drei Bäder
Waschautomat zur entgeltlichen Mitnutzung
Optional: abschließbarer Einzelgaragenstellplatz (50 €/Monat)
Optional: Kellerraum (30 €/Monat)
Lage
Die Wohnung befindet sich in zentraler und dennoch ruhiger Lage in Freudenstadt. Alle wichtigen Einrichtungen des täglichen Bedarfs – darunter Supermärkte, Bäckereien, Apotheken und Banken – sind bequem fußläufig erreichbar. Auch Restaurants, Cafés und kleinere Läden befinden sich in unmittelbarer Nähe und laden zum Verweilen ein.
Die Anbindung an den öffentlichen Nahverkehr ist sehr gut: Der Bahnhof sowie mehrere Buslinien sind in wenigen Minuten zu Fuß erreichbar und bieten schnelle Verbindungen in die Umgebung sowie zu überregionalen Zielen.
Die Lage überzeugt zudem durch ihre Nähe zur Natur – der Schwarzwald mit seinen zahlreichen Wander- und Radwegen beginnt praktisch vor der Haustür. So lässt sich das urbane Leben ideal mit einem hohen Freizeitwert in der Natur kombinieren.
Insgesamt bietet die Wohnlage eine ausgewogene Mischung aus städtischer Infrastruktur, Erholung im Grünen und guter Erreichbarkeit – perfekt für Studierende, Berufseinsteiger:innen und junge Berufstätige.
Sonstige Angaben
Bei Interesse senden Sie uns bitte eine aussagekräftige Anfrage mit folgenden Informationen:
- Name und Alter
- Beruf / Studiengang
- Geplanter Einzugstermin
- Telefonnummer für die Terminabstimmung
Wir freuen uns auf Ihre Kontaktaufnahme.
Vermittlung erfolgt provisionsfrei.
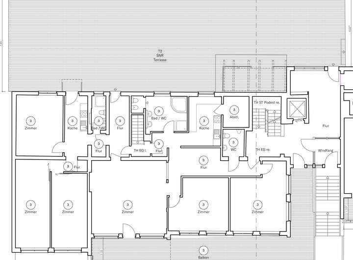
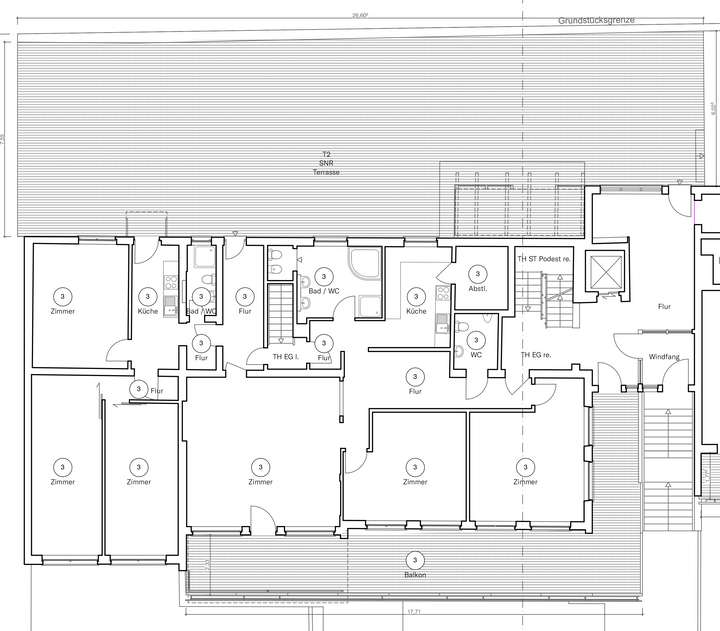
Grundriss
Grundriss WE
>
>
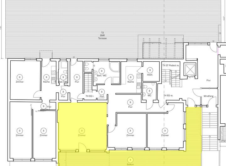
Grundriss Zimmer 1
>
>
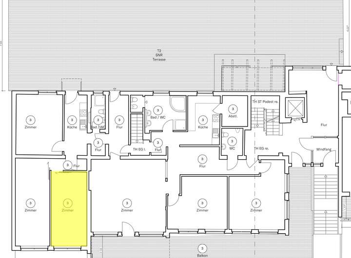
Grundriss Zimmer 2
>
>
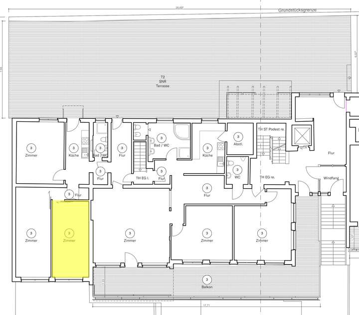
Grundriss Zimmer 3
>
>
Grundriss Zimmer 4
>
>
Grundriss Zimmer 5
>
>
Grundriss Zimmer 6
>
>
Adresse
72250 Freudenstadt
Interessante Orte
Preis- und Lageinformationen
Preistrend für Bestandsimmobilien in Freudenstadt