Objektreferenz: VM-GH3438
Das neu errichtete Mehrfamilienhaus mit insgesamt 20 Wohneinheiten und modernster Ausstattung ist Teil des Neubauprojekts "Elbterrassen Geesthacht" und befindet sich in einzigartiger Lage einer wachsenden Wohngegend am Elbufer von Geesthacht. Ein neuer Promenadenweg direkt am Elbufer lädt zu Spaziergängen und zum Verweilen ein. Die als Sackgasse neu gebaute Anliegerstraße "Elbstieg" zeichnet sich durch die Errichtung zahlreicher PKW-Stellplätze aus. Die Wohnungen erfüllen die Anforderungen des "KfW Effizienzhaus 55-Standards" mit verschärften Anforderungswerten. Die außen anthrazitfarbenen und innen weißen Kunststofffenster sind bodentief ausgeführt und 3-fach-isolierverglast.
Die Beheizung erfolgt über eine mit Fernwärme betriebene, komfortable Fußbodenheizung.
Alle Etagen sind mit dem Personenaufzug zu erreichen.
Zu der angebotenen Wohnung gehört ein Tiefgaragenstellplatz, welcher mit EUR 95,-- / Monat in die Nettokaltmiete inkludiert wird.
Zudem steht den neuen Mietern ein Kellerraum und ein gemeinschaftlich nutzbarer Fahrradkeller zur Verfügung.
Es wird eine Staffelmiete von 3% alle zwei Jahre sowie eine Mindestmietdauer von zwei Jahren vereinbart.
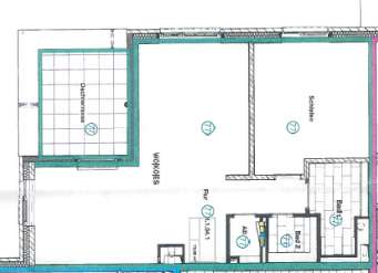
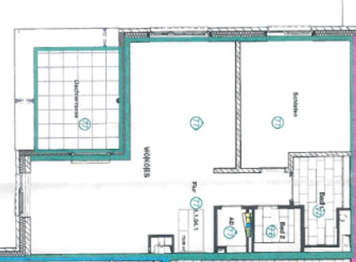
Mit traumhaftem Elbblick: "Moderne 2-Zimmer-Penthousewohnung "
21502 Geesthacht
Die vollständige Adresse der Immobilie erhalten Sie vom Anbieter.
Auf Karte anzeigen
Die vollständige Adresse der Immobilie erhalten Sie vom Anbieter.
Infos
| Wohnungskategorie | Penthouse |
|---|---|
| Etage | 4 von 4 |
| Wohnfläche ca. | 72 m2 |
| Bezugsfrei ab | ab sofort |
| Zimmer | 2 |
| Schlafzimmer | 1 |
| Badezimmer | 1 |
| Garage/Stellplatz | Tiefgarage |
| Anzahl Garage/Stellplatz | 1 |
Kosten
| Kaltmiete |
1.190 € |
|---|---|
| Nebenkosten | + 300 € |
| Heizkosten | in Nebenkosten enthalten |
| Gesamtmiete | 1.585 € |
| Miete für Garage/Stellplatz | 95 € |
| Kaution o. Genossenschaftsanteile | 3.570,00 € |
Weiter mieten oder doch kaufen?
Wer in Miete wohnt, überweist dem Vermieter im Laufe der Jahre hohe Summen, die sich
auch in die eigenen vier Wände investieren lassen könnten.
Bausubstanz & Energieausweis
| Baujahr | 2025 |
|---|---|
| Objektzustand | Erstbezug |
| Wesentliche Energieträger | Fernwärme |
| Energieausweis | liegt vor |
| Energieausweistyp | Bedarfsausweis |
| Energieverbrauchskennwert | 60,0 kWh/(m²*a) |
| Energieeffizienzklasse | B |
60,0
kWh/(m²*a)
Energieeffizienzklasse B
- A+
- A
- B
- C
- D
- E
- F
- G
- H
- 0
- 25
- 50
- 75
- 100
- 125
- 150
- 175
- 200
- 225
- >250
Beschreibung des Objekts
Ausstattung
Die gut geschnittene Penthousewohnung ist mit einem hochwertigen Echtholzparkettboden versehen.
Die Wohnung verfügt über ein Duschbad sowie ein separates Gäste-WC. Die Sanitärbereiche überzeugen mit moderner, hochwertiger Ausstattung, die keine Wünsche offenlässt. Es wurden ausschließlich Marken-Fabrikate verbaut. Für zusätzlichen Komfort sorgt ein Handtuchheizkörper, welcher in das System der Fußbodenheizung integriert ist.
Das Schlafzimmer bietet ausreichend Platz für ein Doppelbett sowie einen Kleiderschrank.
Der großzügige Wohnbereich bildet gemeinsam mit der offen gestalteten Küche das kommunikative Herzstück dieser Wohnung. Eine hochwertige Einbauküche mit eleganten, hellen Fronten und einer dunklen Arbeitsplatte fügt sich harmonisch in das moderne Raumkonzept ein. Ausgestattet ist die Küche mit sämtlichen elektrischen Geräten von Bosch darunter ein Backofen, ein Cerankochfeld, eine Kühl-Gefrierkombination sowie ein Geschirrspüler.
Vom Kochbereich gelangen Sie direkt auf die großzügige Dachterrasse, die mit einem atemberaubenden, unverbaubaren Blick über die Elbe begeistert. Hier erleben Sie unvergessliche Sonnenuntergänge in entspannter Atmosphäre – ein perfekter Ort, um zur Ruhe zu kommen oder gesellige Abende mit Familie und Freunden unter freiem Himmel zu genießen.
Vorräte, Reinigungsutensilien und Alltagshelfer wie der Staubsauger finden bequem Platz in einem funktionalen Abstellraum innerhalb der Wohnung. Dieser ist zudem für die Unterbringung von Waschmaschine und Trockner vorgesehen.
Der Glasfaseranschluss sorgt für eine leistungsstarke Internetverbindung und ermöglicht so entspanntes und effizientes Arbeiten im Homeoffice.
Für zusätzlichen Komfort und Sicherheit sorgt ein modernes, elektronisches Schließ- und Klingelsystem mit digitaler Zutrittskontrolle.
Diese Wohnung eignet sich vor allem für einen Personenkreis, der modernen Wohnkomfort mit schönstem Wasserblick in familienfreundlicher Lage von Geesthacht sowie die gute Anbindung an die Hansestadt Hamburg zu schätzen weiß.
Lage
Mit rund 31.530 Einwohnern präsentiert sich Geesthacht als größte Stadt im Kreis Herzogtum Lauenburg besonders familienfreundlich, lebendig und innovativ. Es stehen mit vier Grundschulen, zwei Gemeinschaftsschulen und dem Otto-Hahn-Gymnasium sämtliche Schularten sowie drei Kindergärten (Kindergarten Regenbogen, Kindergarten Heuweg und Waldkindergarten in Grünhof-Tesperhude) zur Auswahl.
Sowohl die Einkaufsmöglichkeiten für den täglichen Bedarf als auch die medizinische Versorgung sind in Geesthacht als ideal zu bezeichnen.
Die Verkehrsinfrastruktur sorgt für eine optimale Mobilität und eine schnelle Anbindung an Hamburg (33 km, ca. 35 Minuten) und Lüneburg (29 km, ca. 33 Minuten).
Zahlreiche kulturelle Veranstaltungen, ein umfangreiches sportliches Angebot, das Geesthacht Museum, Theater sowie Ausflüge in die naturnahe Umgebung bieten jede Menge Abwechslung für Jung und Alt.
Sonstige Angaben
HINWEIS ZUR BEWERBUNG:
Um Ihnen den bestmöglichen Service zu bieten, können Sie sich bei uns digital bewerben. Kopieren Sie den untenstehenden Link in die Adresszeile Ihres Browsers und folgen Sie der Anleitung.
https://rdr.immomio.com/fvBAyPH
Grundriss
4. Obergeschoss
>
>
Adresse
21502 Geesthacht
Interessante Orte
Preis- und Lageinformationen
Preistrend für Bestandsimmobilien in Geesthacht