Willkommen in Ihrem neuen Zuhause in Hohenwettersbach, einem malerischen und beliebten Vorort von Karlsruhe. Dieses moderne Reihenmittelhaus überzeugt durch seine nachhaltige Bauweise, hochwertige Ausstattung und eine Lage, die Ruhe und Stadtnähe perfekt miteinander verbindet. Mit einer Wohnfläche von ca. 125 m2 bietet das Haus auf drei Etagen großzügigen Raum für Paare oder anspruchsvolle Singles.
Insgesamt 4 Zimmer und 2 Bäder schaffen ideale Voraussetzungen für komfortables Wohnen und individuelle Rückzugsmöglichkeiten. Der offen gestaltete Wohn- und Essbereich mit gemütlichem Kamin lädt zum entspannen ein und schafft eine warme, einladende Atmosphäre.
Die moderne Einbauküche mit hochwertigen Geräten ist ein Paradies für Kochliebhaber und fügt sich harmonisch in das stilvolle Wohnkonzept ein. Ein besonderes Highlight ist der neu angelegte Garten – perfekt für gemütliche Sommerabende, Familienzeit oder entspanntes Gärtnern. Hier finden Sie auch ein großzügiges Gartenhaus, das zusätzlichen Stauraum oder Platz für Hobbys bietet.
Zum Angebot gehört ein Tiefgaragenstellplatz, der Ihnen komfortables und sicheres Parken ermöglicht. Direkt am Haus befindet sich zudem ein weiterer Stellplatz mit einer Wallbox, die das Laden Ihres Elektrofahrzeugs unkompliziert und komfortabel ermöglicht. Eine moderne Fernwärmeversorgung sowie eine PV-Anlage sorgen für effiziente und nachhaltige Energienutzung.
Überzeugen Sie sich selbst und vereinbaren Sie einen Besichtigungstermin
Rückzugsort mit Stadtnähe - Modernisiert und kurzfristig beziehbar
76228 Karlsruhe
Die vollständige Adresse der Immobilie erhalten Sie vom Anbieter.
Auf Karte anzeigen
Die vollständige Adresse der Immobilie erhalten Sie vom Anbieter.
Infos
| Haustyp | Reihenmittelhaus |
|---|---|
| Etagenzahl | 3 |
| Wohnfläche ca. | 125 m2 |
| Grundstücksfläche | 132 m2 |
| Bezugsfrei ab | März 2026 |
| Zimmer | 4 |
| Schlafzimmer | 2 |
| Badezimmer | 2 |
| Garage/Stellplatz | Tiefgarage |
| Anzahl Garage/Stellplatz | 1 |
Kosten
| Kaltmiete |
1.910 € |
|---|---|
| Nebenkosten | + 130 € |
| Heizkosten | in Nebenkosten enthalten |
| Gesamtmiete | 2.275 € |
| Miete für Garage/Stellplatz | 65 € |
| Kaution o. Genossenschaftsanteile | 5.730 € |
Weiter mieten oder doch kaufen?
Wer in Miete wohnt, überweist dem Vermieter im Laufe der Jahre hohe Summen, die sich
auch in die eigenen vier Wände investieren lassen könnten.
Bausubstanz & Energieausweis
| Baujahr | 2006 |
|---|---|
| Letzte Sanierung | 2024 |
| Qualität der Austattung | Gehoben |
| Heizungsart | Fernwärme |
| Wesentliche Energieträger | Fernwärme |
| Energieausweis | liegt vor |
| Energieausweistyp | Verbrauchsausweis |
| Energieverbrauchskennwert | 44,4 kWh/(m²*a) |
Beschreibung des Objekts
Ausstattung
Einbauküche
Kamin
Balkon
Terrasse
PV Anlage
Keller- Technikraum
Tiefgaragenstellplatz
Wallbox
Lage
Hohenwettersbach ist ein idyllisch gelegener Stadtteil im Osten von Karlsruhe und gehört zu den begehrtesten Wohnlagen am Rande des Schwarzwalds. Die uhige, naturnahe Umgebung in Kombination mit der schnellen Erreichbarkeit der Karlsruher Innenstadt macht diesen Ort besonders attraktiv für Familien, Berufstätige und Naturliebhaber. Geprägt von gepflegten Wohngebieten, viel Grün und einem dörflichen Charme, bietet Hohenwettersbach eine hohe Lebensqualität. Zahlreiche Spazier- und Radwege in der umliegenden andschaft laden zur aktiven Erholung ein – ob im nahegelegenen Oberwald, entlang des Wetterbachs oder durch die Streuobstwiesen, die den Stadtteil umgeben. Trotz der ländlichen Atmosphäre ist Hohenwettersbach verkehrstechnisch gut angebunden. Über die B3 und die Südtangente ist das Karlsruher Stadtzentrum in nur etwa 15 Minuten erreichbar. Auch der öffentliche Nahverkehr sorgt mit Buslinien für eine bequeme Anbindung an die Innenstadt und umliegende Stadtteile. Vor Ort finden sich alle Einrichtungen des täglichen Bedarfs: ein Supermarkt, Bäcker, Apotheke, Kindergarten sowie eine Grundschule sind direkt im Ort vorhanden. Weitere Einkaufsmöglichkeiten, weiterführende Schulen sowie medizinische Versorgung bietet das nahegelegene Karlsruhe oder Durlach. Hohenwettersbach verbindet das Beste aus zwei Welten: eine ruhige, grüne Wohnlage mit gleichzeitig guter Erreichbarkeit der städtischen Infrastruktur – ideal für alle, die naturnah und dennoch stadtnah leben möchten.
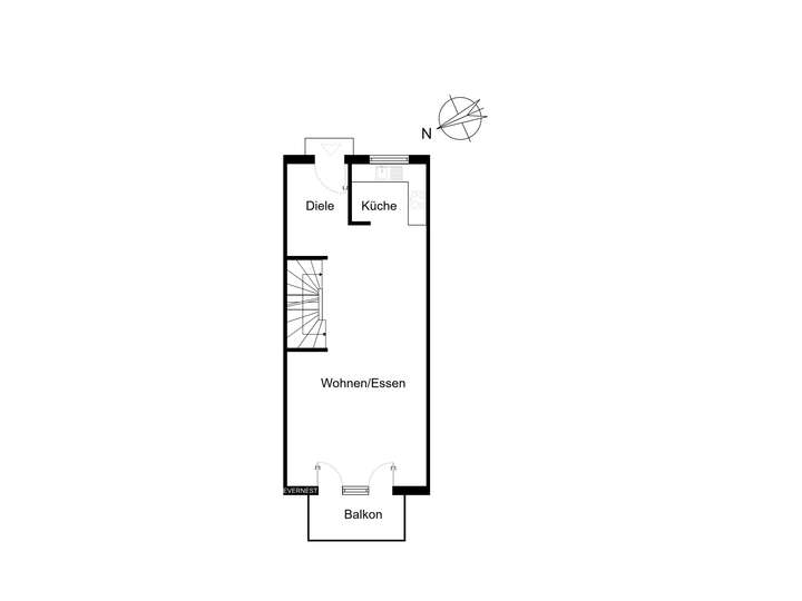
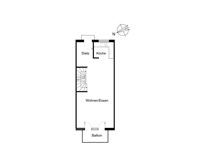
Grundriss
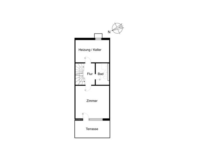
Grundriss Erdegeschoss
>
>
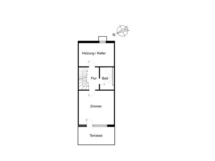
Grundriss Gartengeschoss
>
>
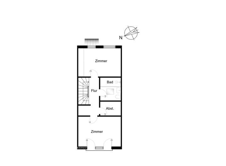
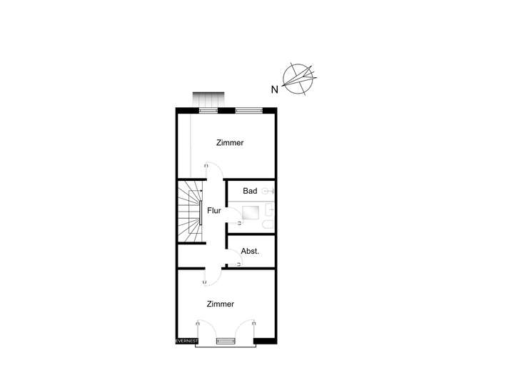
Grundriss Dachgeschoss
>
>
Adresse
76228 Karlsruhe
Interessante Orte
Preis- und Lageinformationen
Preistrend für Bestandsimmobilien in Hohenwettersbach