Das Haus wurde 1972 von einem Architekturprofessor im klassischen Bauhausstil erbaut.
Die Räumlichkeiten wurden kürzlich umgestaltet und renoviert.
Das Haus besticht durch riesige Panoramafenster, ein elegantes Treppenhaus und einen
geräumigen, lichtdurchfluteten Flur. Die Decken sind mit edlem Zedernholz verkleidet. Ein Kaminofen trennt Wohn- und Essbereich, die beide einen bodentiefen Blick in den Garten bieten.
Im Haus befindet sich noch eine vermietete Einliegerwohnung und ein kleines vom Eigentümer genutztes Büro, so dass die Immobilie auch bei längerer Abwesenheit nicht gänzlich leer steht.
Exklusive Maisonettewohnung im Bauhausstil in Wellingsbüttel - mit Garten und Garage
22393 Hamburg
Die vollständige Adresse der Immobilie erhalten Sie vom Anbieter.
Auf Karte anzeigen
Die vollständige Adresse der Immobilie erhalten Sie vom Anbieter.
Infos
| Haustyp | Mehrfamilienhaus |
|---|---|
| Wohnfläche ca. | 205 m2 |
| Nutzfläche | 205 m2 |
| Grundstücksfläche | 600 m2 |
| Bezugsfrei ab | 15.01.2026 |
| Zimmer | 4 |
| Schlafzimmer | 4 |
| Badezimmer | 3 |
| Haustiere | Nach Vereinbarung |
Kosten
| Kaltmiete |
2.950 € |
|---|---|
| Nebenkosten | + 200 € |
| Heizkosten | + 280 € |
| Gesamtmiete | 3.430 € (zzgl. Heizkosten) |
| Kaution o. Genossenschaftsanteile | 8.850,00 € |
Weiter mieten oder doch kaufen?
Wer in Miete wohnt, überweist dem Vermieter im Laufe der Jahre hohe Summen, die sich
auch in die eigenen vier Wände investieren lassen könnten.
Bausubstanz & Energieausweis
| Baujahr | 1972 |
|---|---|
| Letzte Sanierung | 2025 |
| Objektzustand | Saniert |
| Qualität der Austattung | Gehoben |
| Heizungsart | Gas-Heizung |
| Wesentliche Energieträger | Gas |
| Energieausweis | liegt zur Besichtigung vor |
Beschreibung des Objekts
Ausstattung
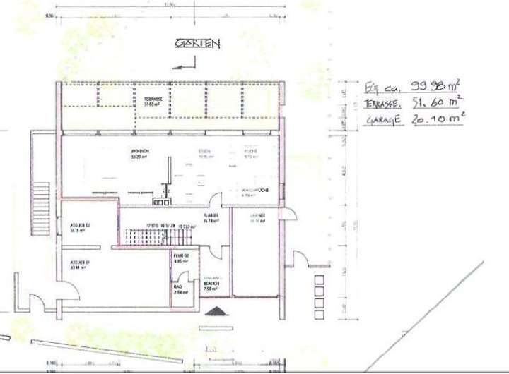
Das Erdgeschoss besticht durch seinen großzügigen Flur und seine offene Bauweise: die moderne
Einbauküche ist mit hochwertigen Elektrogeräten ausgestattet und geht in den Essbereich und das Wohnzimmer über. Im ca. 53 qm großen Wohn-/ Essbereich ist ein hochwertiger Steinboden verlegt worden. Zwischen Ess- und Wohnbereich befindet sich ein moderner Kamin. Über die bodentiefen Fenster vom Wohnzimmer ist die ca. 52 qm große Terrasse mit Zugang zum Gartenbereich zu betreten.
Lage
Das familienfreundliche Haus befindet sich im grünen Stadtteil Wellingsbüttel. Sämtliche Freizeitmöglichkeiten sowie Kindergärten und Schulen sind in der näheren Umgebung vorhanden und sind fußläufig oder mit dem Fahrrad erreichbar.
Der Großteil der Wellingsbütteler Einkaufsmöglichkeiten befindet sich im Ortskern an der Kreuzung von Wellingsbütteler Weg und Rolfinckstraße. Dort sind sich ein Rewe-Markt am zentralen Parkplatz (Wellingsbütteler Markt) und eine Filiale von Budnikowski. Auf dem Parkplatz findet dienstags und freitags jeweils von 8-13 Uhr ein kleiner aber beliebter Wochenmarkt statt.
Wellingsbüttel ist verkehrstechnisch hervorragend angebunden: der Flughafen ist in wenigen Minuten (ohne direkten Fluglärm), die Innenstadt ist in ca. 35 Minuten erreichbar.
Eine gute Anbindung an das öffentliche Verkehrsnetz bieten die nahegelegene S-Bahn-Station Wellingsbüttel sowie zahlreiche Buslinien in der Umgebung.
Sonstige Angaben
Indexmiete
Bitte beachten Sie folgende Informationen zum Thema Datenschutz:
Wenn Sie das Kontaktformular verwenden, werden Ihre personenbezogenen Daten, die Sie in das Formular eingetragen haben, an uns übermittelt, gespeichert und verarbeitet.
Wenn Sie unsere Homepage besuchen, wird bereits beim Aufruf der Seite ein Cookie gesetzt und damit ein oder mehrere personenbezogene Daten von Ihnen verarbeitet.
Einzelheiten zum Schutz Ihrer personenbezogenen Daten finden Sie in unserer Datenschutzerklärung unter: http://www.klaeffling.de/index.php4?cmd=15271739867433
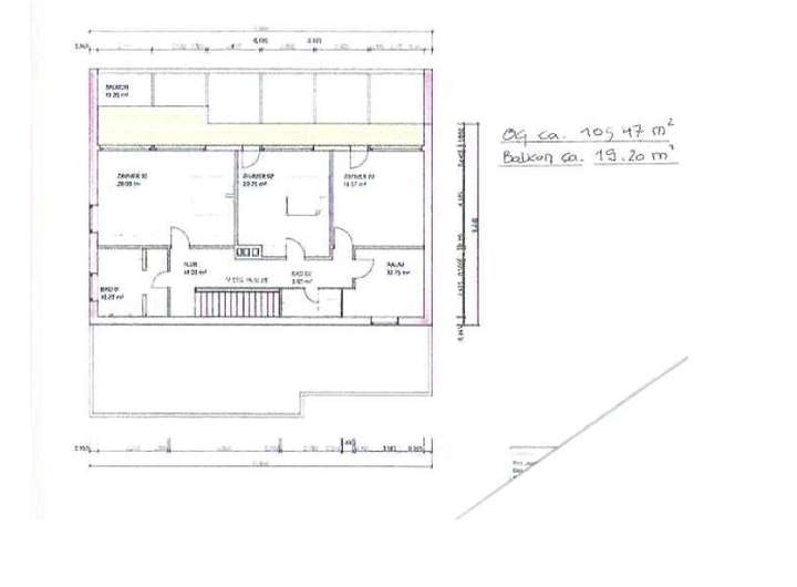
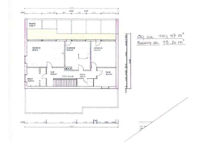
Grundriss
Grundriss EG und Garage.jpg
>
>
Grundrisszeichnung FP 2.jpg
>
>
Adresse
22393 Hamburg
Interessante Orte
Preis- und Lageinformationen
Preistrend für Bestandsimmobilien in Sasel