Willkommen in Ihrem neuen exclusiven Zuhause! Diese lichtdurchflutete moderne 2-Zimmer Dachgeschosswohnung bietet ein einzigartiges Wohngefühl mit stilvollem Design und erstklassiger Ausstattung.
Genießen Sie offene Wohnbereiche, hochwertige Materialien und eine ruhige aber dennoch zentrale Lage.
Perfekt für Singels oder Paare die urbanen Lifestyle und modernes Ambiente suchen.
Diese luxuriös ausgestattete Immobilie bietet 2 Zimmer, 1 Schlafzimmer und 1 Badezimmer auf einer großzügigen Wohnfläche von ca 60 m².
Zu den Highlights dieser Immobilie gehören:
- Tiefgarage mit direktem Zugang zum Aufzug
- Keller und praktischer Abstellraum
- Barrierefreier Zugang
- Zusätzliches Gäste-WC
- Voll ausgestattete Einbauküche
- Zugang zu einem charmanten Garten
Dank der modernen Wärmepumpe und einer effizienten Stromnutzung sind die Betriebskosten gering.
Verpassen Sie nicht die Gelegenheit, dieser exquisiten Dachgeschosswohnung.
Kontaktieren Sie uns noch heute für weitere Informationen und Besichtigungstermine.
Modernes 2-Zimmer Dach-Juwel: Top-Design & Tolle Lage
68766 Hockenheim
Die vollständige Adresse der Immobilie erhalten Sie vom Anbieter.
Auf Karte anzeigen
Die vollständige Adresse der Immobilie erhalten Sie vom Anbieter.
Infos
| Wohnungskategorie | Dachgeschoss |
|---|---|
| Etage | 2 von 2 |
| Wohnfläche ca. | 60 m2 |
| Nutzfläche | 6 m2 |
| Bezugsfrei ab | 01.02.2026 |
| Zimmer | 2 |
| Schlafzimmer | 1 |
| Badezimmer | 1 |
| Haustiere | Nach Vereinbarung |
| Garage/Stellplatz | Tiefgarage |
| Anzahl Garage/Stellplatz | 1 |
Kosten
| Kaltmiete |
1.010 € |
|---|---|
| Nebenkosten | + 170 € |
| Heizkosten | in Nebenkosten enthalten |
| Gesamtmiete | 1.250 € |
| Miete für Garage/Stellplatz | 70 € |
| Kaution o. Genossenschaftsanteile | 3030 |
Weiter mieten oder doch kaufen?
Wer in Miete wohnt, überweist dem Vermieter im Laufe der Jahre hohe Summen, die sich
auch in die eigenen vier Wände investieren lassen könnten.
Bausubstanz & Energieausweis
| Baujahr | 2023 |
|---|---|
| Objektzustand | Neuwertig |
| Qualität der Austattung | Luxus |
| Heizungsart | Wärmepumpe |
| Wesentliche Energieträger | Strom |
| Energieausweis | liegt vor |
| Energieausweistyp | Bedarfsausweis |
Beschreibung des Objekts
Ausstattung
- Energiestandard KfW 55
- Lichtdurchfluteter Wohn- und Essbereich mit offener Küche
- 1 Schlafzimmer
- Abstellkammer
- Aufzug
- 3- Fach verglaste Fenster
- Fußbodenheizung
- Kamera in der Tiefgarage
- Sprechanlage mit Kamera
- Hochwertige offene Nolte Einbauküche mit Ceran Kochfeld und Kochfeldabzugssystem
- 1 Bad mit Dusche und WC in luxuriöse Ausstattung
- Bodenbelag: Vinyl
- Elektrische Rollläden
- Glasfaserverkabelung
- Tiefgarage ( im Mietpreis inkludiert )
- Fahrradkeller
- Hausmeisterservice
- bei Bedarf Putzservice ( verbunden mit Zusatzkosten)
Lage
Die durch den Hockenheimring Baden-Württemberg weltweit bekannte Große Kreisstadt Hockenheim liegt mitten in der Metropolregion Rhein-Neckar - einem der wichtigsten Wirtschaftsstandorte Deutschlands, etwa 20 km südlich von Mannheim.
Der Wirtschaftsstandort Hockenheim bietet nicht nur ansiedlungsinteressierten Unternehmen hervorragende Rahmenbedingungen. Durch das Einzelhandelskonzept, welches auf der Grundlage einer "Einzelhandelsuntersuchung für die Stadt Hockenheim" erarbeitet wurde, besitzt auch die Hockenheimer City attraktive Rahmenbedingungen für wirtschaftlichen Erfolg.
Ein wesentlicher Vorteil des Gewerbe- und Industriestandorts Hockenheim ist die Verkehrsinfrastruktur mit Anbindungen an die A 5, A 6 und A 61, einem direkten Gleisanschluss des Gewerbegebietes sowie einem S-Bahn-Anschluss an die Bahnknotenpunkte Mannheim und Karlsruhe.
Eine sehr gute Infrastruktur und auch das Bildungsangebot sprechen für diese Stadt. Ein Gymnasium, eine Realschule, eine Förderschule, drei Grundschulen und mehrere Kindergärten bieten alle Möglichkeiten für Familien.
Sonstige Angaben
Bitte sind Sie so freundlich und hinterlassen uns schon mit Ihrer Anfrage ein paar Informationen zu Ihrer Person. Vielen Dank!
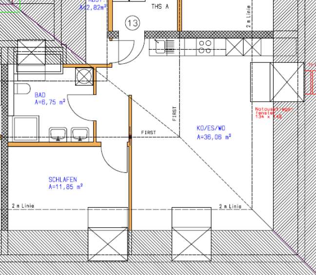
Grundriss
Grundriss
>
>
Adresse
68766 Hockenheim
Interessante Orte
Preis- und Lageinformationen
Preistrend für Bestandsimmobilien in Hockenheim