Willkommen in Ihrer neuen massiv errichteten Doppelhaushälfte mit KfW-40-Standard „Klimafreundlich“. Auf insgesamt 148 m² Wohn-/Nutzfläche erwarten Sie moderne Ausstattung, ein durchdachtes Raumkonzept sowie ein besonders niedriger Energieverbrauch dank Wärmepumpe und Photovoltaikanlage.
Highlights der Immobilie
Massivbauweise, KfW-40 „klimafreundlich“
5 Zimmer, ca. 148 m² Wohn-/Nutzfläche
Hochwertige Ausstattung: Parkett, großformatige Fliesen, elektrisch steuerbare Jalousien
Fußbodenheizung im gesamten Haus
Bad mit Wanne und Dusche, zusätzlich 2 separate WCs
Sehr gutes, familienfreundliches Raumkonzept
Niedrige Betriebskosten durch Wärmepumpe & PV-Anlage
Eigener Garten mit großer Terrasse
Garage und weiterer Stellplatz
Erdgeschoss:
– Diele
– Hauswirtschaftsraum
– Gäste-WC mit Fenster
– Küche mit direktem Zugang zum Wohnzimmer
– Zugang zur Terrasse und zum Garten
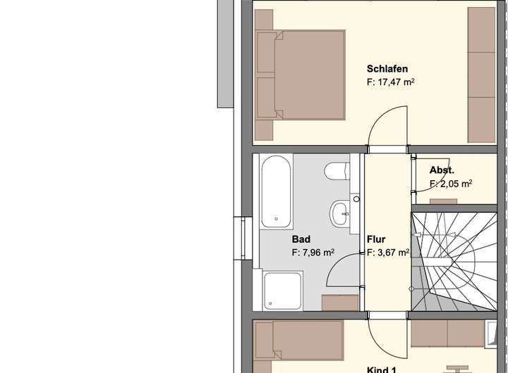
Obergeschoss:
– Flur
– 2 großzügige Zimmer
– Hauptbad mit Fenster, Wanne, Dusche und Handtuchheizkörper
– Separates WC
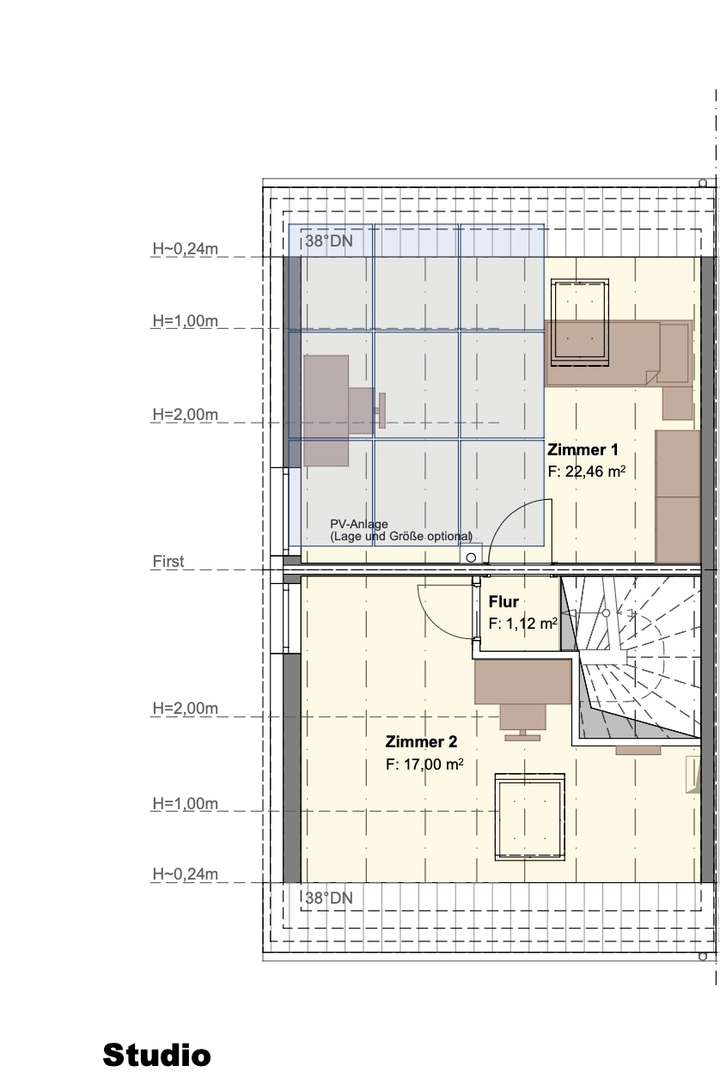
Dachgeschoss:
– 2 weitere Zimmer ideal als Kinderzimmer, Büro oder Gästezimmer
Weitere Informationen
Mietbeginn ab 01.01.2026 möglich
Nebenkosten für Strom, Wasser/Abwasser und Müll werden direkt über die Versorger abgerechnet
Für Grundsteuer, Wohngebäudeversicherung und ggf. Gebäudehaftpflicht fällt eine monatliche Vorauszahlung von 60 € an (jährliche Abrechnung durch den Vermieter)
*Doppelhaushälfte in Taucha* Modern leben, minimal verbrauchen *Spitzen-Energiekonzept* (KfW 40)
04425 Taucha
Die vollständige Adresse der Immobilie erhalten Sie vom Anbieter.
Auf Karte anzeigen
Die vollständige Adresse der Immobilie erhalten Sie vom Anbieter.
Infos
| Haustyp | Doppelhaushaelfte |
|---|---|
| Etagenzahl | 3 |
| Wohnfläche ca. | 132 m2 |
| Nutzfläche | 147 m2 |
| Grundstücksfläche | 330 m2 |
| Bezugsfrei ab | 01.01.2026 |
| Zimmer | 5 |
| Badezimmer | 1 |
| Garage/Stellplatz | Garage |
| Anzahl Garage/Stellplatz | 1 |
Kosten
| Kaltmiete |
1.950 € |
|---|---|
| Nebenkosten | + 140 € |
| Heizkosten | in Nebenkosten enthalten |
| Gesamtmiete | 2.110 € |
| Kaution o. Genossenschaftsanteile | 3900,00 |
Weiter mieten oder doch kaufen?
Wer in Miete wohnt, überweist dem Vermieter im Laufe der Jahre hohe Summen, die sich
auch in die eigenen vier Wände investieren lassen könnten.
Bausubstanz & Energieausweis
| Baujahr | 2025 |
|---|---|
| Objektzustand | Erstbezug |
| Heizungsart | Fußbodenheizung |
Beschreibung des Objekts
Ausstattung
Interieur
Edle Echtholzparkettböden in allen Wohnräumen
Großformatige Fliesen in Diele, Küche und Gäste-WC
Hochwertig gespachtelte Wände
Schüco-Fenster, dreifach verglast, teilweise bodentief im Wohnbereich
Elektrisch steuerbare Velux-Jalousien an allen Fenstern
Solarbetriebene Velux-Dachflächenfenster inklusive Fernbedienung
Stilvolle Ganzglastür zum Wohnzimmer
Moderne LED-Deckenspots in Flur, WC, Bad und Küche
Heizen & Energie
Effiziente Luftwärmepumpe in Kombination mit Photovoltaikanlage
Energiestandard KfW 40 „Klimafreundlich“
Fußbodenheizung, je Raum individuell steuerbar
Schnelles Internet über Telekom-Glasfaseranschluss
Lage
Taucha ist eine familienfreundliche Kleinstadt im Nordosten von Leipzig und grenzt direkt an das Stadtgebiet der sächsischen Metropole. Die Stadt liegt inmitten der reizvollen Partheaue, einem weitläufigen Landschaftsschutzgebiet, das ideale Bedingungen für Erholung, Naturerlebnis und Freizeitaktivitäten bietet. Die Parthe durchfließt das Stadtgebiet und prägt gemeinsam mit umliegenden Wäldern und Parks das grüne Stadtbild.
Ein besonderes Highlight ist der großzügig angelegte Stadtpark Taucha, der als grüne Oase im Zentrum der Stadt zahlreiche Möglichkeiten zur Entspannung, für Spaziergänge und sportliche Betätigung bietet. Direkt angrenzend befindet sich das beliebte Freibad.
Taucha verfügt über eine ausgezeichnete Infrastruktur. Neben vielfältigen Einkaufsmöglichkeiten und guter medizinischer Versorgung ist die Stadt besonders für Familien attraktiv – nicht zuletzt durch das umfassende Bildungsangebot mit mehreren Schulen und einem Gymnasium direkt vor Ort. Auch für die Kleinsten stehen zahlreiche Kindertagesstätten zur Verfügung.
Die Verkehrsanbindung ist hervorragend: Mit der S-Bahn, der Straßenbahnlinie 3 sowie mehreren Busverbindungen ist das Leipziger Stadtzentrum (z. B. der Leipziger Markt) in etwa 15 Minuten bequem erreichbar. Zudem sind die Autobahnen A9, A14 und A38 schnell zu erreichen, ebenso wie der Flughafen Leipzig/Halle und die Werke von BMW und Porsche.
Taucha hat sich in den letzten Jahren zu einem attraktiven Wohn- und Lebensraum entwickelt, der urbanes Leben und naturnahe Erholung in idealer Weise verbindet.
Grundriss
Erdgeschoss
>
>
Obergeschoss
>
>
Dachgeschoss
>
>
Adresse
04425 Taucha
Interessante Orte
Preis- und Lageinformationen
Preistrend für Bestandsimmobilien in Taucha