In unmittelbarer Nähe zum idyllischen Venner Moor präsentiert sich dieses liebevoll und aufwendig sanierte Fachwerkhaus als wahres Juwel des modernen Landlebens. Der Altbau vereint historischen Charme mit zeitgemäßer Ausstattung auf höchstem energetischen Niveau (KfW 55) und schafft so ein Zuhause, das sowohl ästhetisch als auch funktional überzeugt.
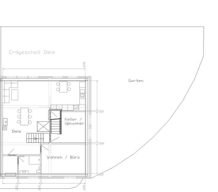
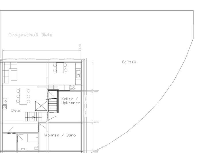
Schon beim Betreten des Hauses beeindruckt das Erdgeschoss mit rund vier Meter hohen Decken, die den Wohn- und Lebensbereich außergewöhnlich großzügig wirken lassen. Hier befinden sich neben dem stilvollen Wohnraum, eine Wohnküche, ein Schlafzimmer sowie ein modernes Gäste-Bad. Zusätzlich stehen ein praktischer Kellerraum und eine charmante Upkammer zur Verfügung, die dem Haus seinen ursprünglichen Charakter bewahren.
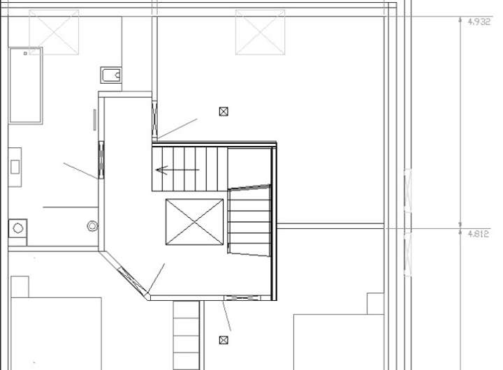
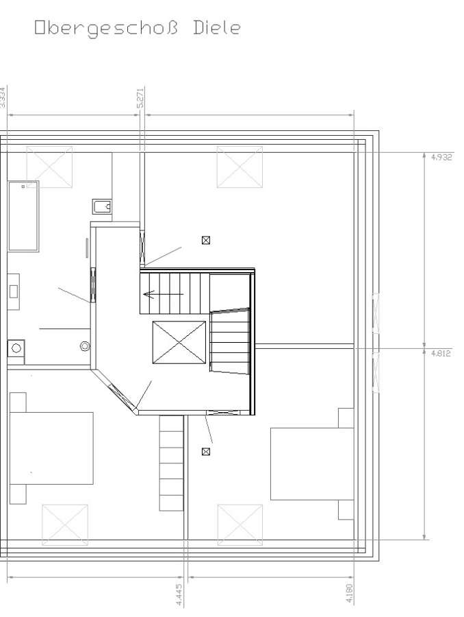
Der barrierearme Zugang zur oberen Etage wird durch einen eingebauten Lifton-Aufzug gewährleistet – eine Seltenheit, die den Komfort des Hauses zusätzlich unterstreicht. Im Obergeschoss erwarten Sie drei geräumige Schlafzimmer sowie ein geschmackvoll gestaltetes Badezimmer. Der ausgebaute Spitzboden bietet weitere wertvolle Wohnfläche und eignet sich ideal als Homeoffice, Atelier oder Rückzugsort.
Die Ausstattung mit Eiche-Vinylboden und dezent beigen Fliesen sorgt in allen Räumen für eine warme, stilvolle Atmosphäre. Auch technisch überzeugt das Haus: Eine Netzwerkverkabelung in allen Räumen ermöglicht reibungsloses Arbeiten und Streaming. Die 3-fach verglasten Fenster sorgen für hervorragenden Schallschutz und Energieeffizienz. Auch ein Kaminofen könnte seitens der Mieter im Wohnraum eingebaut werden, sodass auch im Winter für gemütliche Stunden gesorgt werden kann. Geheizt wird mittels Pellets bzw. durch eine Scheitholzanlage auf dem Hof. Die Warmwasseraufbereitung wird durch Solar unterstützt.
Im Außenbereich runden zwei Terrassen, ein Gartenhaus sowie ein nach vorne hin noch einzäunender Garten das Angebot ab. Für moderne Mobilität ist ebenfalls gesorgt – ein PKW-Stellplatz mit Stromanschluss für ein Elektroauto steht bereit. Die Wallbox müsste allerdings vom Mieter installiert werden.
Dieses Anwesen bietet ein besonderes Lebensgefühl für Menschen, die stilvolles Wohnen im Grünen mit zeitgemäßem Komfort verbinden möchten. Die vielen Tiere auf dem Hof versprechen ein besonders Flair. Ein Video zur Immobilie ist verfügbar – wir senden Ihnen gerne den Link oder laden Sie zu einer persönlichen Besichtigung ein.
Modernes Landleben - Aufzug vorhanden!
48308 Senden
Die vollständige Adresse der Immobilie erhalten Sie vom Anbieter.
Auf Karte anzeigen
Die vollständige Adresse der Immobilie erhalten Sie vom Anbieter.
Infos
| Haustyp | Doppelhaushaelfte |
|---|---|
| Wohnfläche ca. | 180 m2 |
| Grundstücksfläche | 250 m2 |
| Bezugsfrei ab | nach Vereinbarung |
| Zimmer | 7 |
| Schlafzimmer | 5 |
| Badezimmer | 2 |
| Garage/Stellplatz | Außenstellplatz |
| Anzahl Garage/Stellplatz | 2 |
Kosten
| Kaltmiete |
1.990 € |
|---|---|
| Nebenkosten | + 150 € |
| Heizkosten | + 300 € |
| Gesamtmiete | 2.440 € |
| Kaution o. Genossenschaftsanteile | 4.000,00 EUR |
Weiter mieten oder doch kaufen?
Wer in Miete wohnt, überweist dem Vermieter im Laufe der Jahre hohe Summen, die sich
auch in die eigenen vier Wände investieren lassen könnten.
Bausubstanz & Energieausweis
| Objektzustand | Neuwertig |
|---|---|
| Qualität der Austattung | Gehoben |
| Heizungsart | Zentralheizung |
| Wesentliche Energieträger | Pelletheizung, Holz |
| Energieausweis | liegt vor |
| Energieausweistyp | Bedarfsausweis |
| Energieverbrauchskennwert | 118,3 kWh/(m²*a) |
Beschreibung des Objekts
Ausstattung
- Video vorhanden
- Landleben Nähe Venner Moor
- komplett sanierter Altbau
- stilvolles Fachwerkhaus
- 4m hohe Decken im Erdgeschoss
- EG (Schlafzimmer, Wohnküche, Gäste-Bad)
- Kellerraum & Upkammer vorhanden
- Aufzug (Lifton) in die obere Etage
- 1.OG (3 Schlafzimmer + Bad)
- ausgebauter Spitzboden
- Garten nach vorne wird noch eingezäunt
- PKW-Stellplatz mit Strom für Elektrauto
- Gartenhaus + zwei Terrassen
- Eichevinylboden & Fliesen beige
- Energiestandard KfW 55
- Heizung über Pellet/Scheitholzanlage auf dem Hof
- Solaranlage für Warmwasser
- 3-fach Verglasung
- Netzwerkverkabelung in allen Räumen
Lage
Die Bauerschaft Venne liegt im westlichen Teil der Gemeinde Senden im Kreis Coesfeld, im Bundesland Nordrhein-Westfalen. Sie gehört zur münsterländischen Parklandschaft und ist geprägt von einer ländlichen Struktur mit landwirtschaftlicher Nutzung, weitläufigen Grünflächen und kleinen Siedlungsbereichen. Die Venne befindet sich zwischen den Ortsteilen Senden (Hauptort, ca. 4 km östlich) und Ottmarsbocholt (ca. 6 km südlich) sowie in der Nähe zur Stadt Münster (ca. 15 km nordöstlich). Durch ihre Lage im ländlichen Außenbereich zeichnet sich die Bauerschaft durch eine ruhige, naturnahe Umgebung aus, die besonders für die Landwirtschaft und Naherholung von Bedeutung ist. Die Verkehrsanbindung erfolgt über kleinere Kreis- und Landstraßen, insbesondere über die Venner Straße sowie die K20 (Lüdinghauser Straße). Die Autobahn A43 (Anschlussstelle Senden) ist in wenigen Minuten erreichbar und verbindet die Region mit Münster und dem Ruhrgebiet. Öffentliche Verkehrsmittel sind eingeschränkt verfügbar, sodass Individualverkehr die Hauptform der Mobilität darstellt. Infrastrukturell ist die Venne überwiegend durch Einzelhöfe, kleinere landwirtschaftliche Betriebe sowie vereinzelte Wohnhäuser geprägt. Schulen, Einkaufsmöglichkeiten und medizinische Versorgung befinden sich in den nahegelegenen Zentren von Senden und Ottmarsbocholt. Die Umgebung bietet vielfältige Möglichkeiten zur Freizeitgestaltung, darunter Rad- und Wanderwege entlang der Stever sowie durch das Venner Moor, ein bedeutendes Naturschutzgebiet in unmittelbarer Nähe.
Sonstige Angaben
Unterlagen für den Vermieter:
- letzten drei Gehaltsabrechnungen o.ä. Einkommensnachweise
- Schufa-Auskunft
- Kopien der Personalausweise
- Mieterselbstauskunft
- Mietschuldenfreiheitsbescheinigung
- Nachweis einer Haftpflichtversicherung
Diese Offerte ist freibleibend. Es gelten unsere Allgemeinen Geschäftsbedingungen. Flächen- und Maßangaben sind ca. - Werte. Alle Angaben beruhen auf Auskünften des Eigentümers. Für die Richtigkeit der Angaben können wir keine Haftung übernehmen.
Weitere Dokumente
SA + MSF.pdfGrundriss
Ansicht
>
>
Ansicht
>
>
Ansicht
>
>
Adresse
48308 Senden
Interessante Orte
Preis- und Lageinformationen
Preistrend für Bestandsimmobilien in Senden