Modernes Wohnen mit Stil – Neubau-Doppelhaushälfte in familienfreundlicher Lage von Geisenfeld
Geradliniges Design, moderne Architektur und eine durchdachte Raumaufteilung prägen dieses stilvolle Neubauprojekt.
Auf rund 175 m² Wohnfläche erwartet Sie ein Zuhause, das gleichermaßen durch Ästhetik, Komfort und Funktionalität überzeugt.
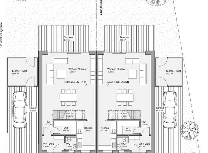
Im Erdgeschoss öffnet sich ein großzügiger Wohn-, Ess- und Kochbereich mit bodentiefen Panoramafenstern zur Terrasse und dem sonnigen Garten. Ergänzt wird diese Ebene durch einen praktischen Hauswirtschaftsraum sowie ein Gäste-WC.
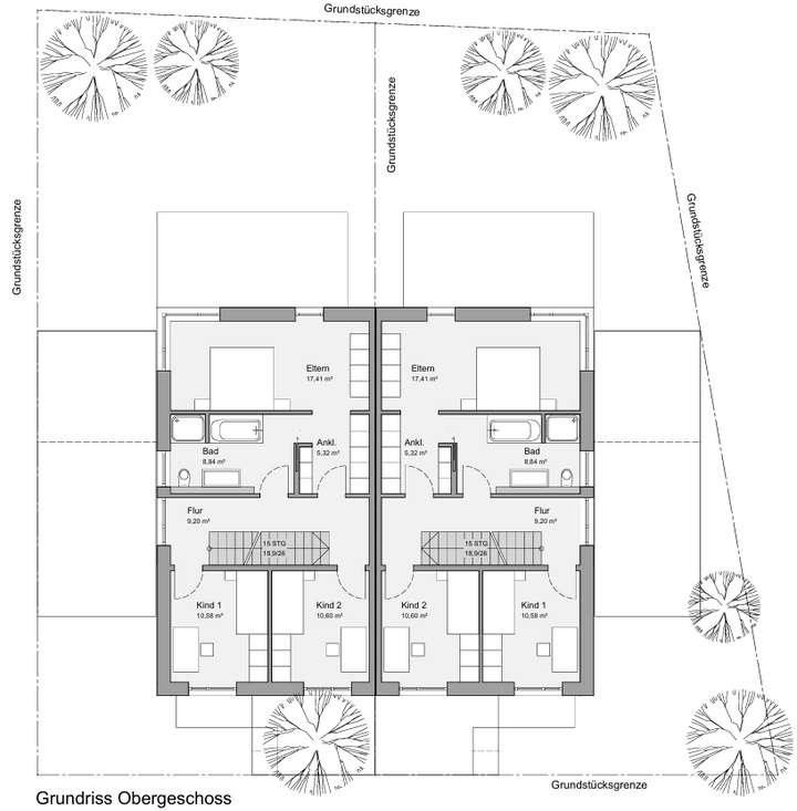
Über eine freitragende Betontreppe gelangen Sie ins Obergeschoss, das mit zwei flexibel nutzbaren Zimmern, einem Schlafzimmer mit begehbarer Ankleide sowie einem stilvollen Bad/WC begeistert.
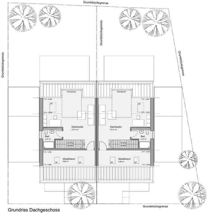
Ein echtes Highlight bildet das lichtdurchflutete Studio im Dachgeschoss mit eigenem Bad/WC und zusätzlichem Stauraum – ideal als Homeoffice, Gästebereich oder Rückzugsort.
Hochwertige Materialien wie Eichenparkett, großformatige Fliesen, Sichtbetonwände und dunkle Metallelemente schaffen eine Atmosphäre von moderner Eleganz. Eine Fußbodenheizung, ein puristisch-elegantes Baddesign, ein Carport mit abgeschlossenem Gartenraum sowie ein weiterer Stellplatz runden das Angebot ab.
Auch baubiologische und nachhaltige Aspekte wurden berücksichtigt – etwa durch den Einsatz einer energieeffizienten Luft-Wärmepumpe.
Die Lage überzeugt durch ihre Familienfreundlichkeit und hervorragende Infrastruktur: Einkaufsmöglichkeiten, Schulen und der öffentliche Nahverkehr sind fußläufig erreichbar.
Diese Doppelhaushälfte ist das ideale Zuhause für Paare oder Familien, die Stil, Qualität und Lebensfreude verbinden möchten.
Jetzt einziehen: Neubau-Doppelhaushälfte mit Garten in Geisenfeld & Energieeffizienzklasse A+
85290 Geisenfeld
Die vollständige Adresse der Immobilie erhalten Sie vom Anbieter.
Auf Karte anzeigen
Die vollständige Adresse der Immobilie erhalten Sie vom Anbieter.
Infos
| Haustyp | Doppelhaushaelfte |
|---|---|
| Etagenzahl | 3 |
| Wohnfläche ca. | 175 m2 |
| Nutzfläche | 185 m2 |
| Grundstücksfläche | 260 m2 |
| Bezugsfrei ab | 01.11.2025 |
| Zimmer | 5 |
| Schlafzimmer | 4 |
| Badezimmer | 2 |
| Garage/Stellplatz | Carport |
| Anzahl Garage/Stellplatz | 2 |
Kosten
| Kaltmiete |
2.400 € |
|---|---|
| Nebenkosten | + 150 € |
| Heizkosten | keine Angabe |
| Gesamtmiete | 2.550 € (zzgl. Heizkosten) |
| Miete für Garage/Stellplatz | 50 € |
Weiter mieten oder doch kaufen?
Wer in Miete wohnt, überweist dem Vermieter im Laufe der Jahre hohe Summen, die sich
auch in die eigenen vier Wände investieren lassen könnten.
Bausubstanz & Energieausweis
| Baujahr | 2025 |
|---|---|
| Objektzustand | Erstbezug |
| Qualität der Austattung | Gehoben |
| Heizungsart | Wärmepumpe |
| Energieausweis | liegt zur Besichtigung vor |
Beschreibung des Objekts
Ausstattung
• Ca. 175 m² Wohnfläche auf drei Ebenen
• Großzügiger Wohn-/Ess-/Kochbereich mit bodentiefen Panoramafenstern und Zugang zur Terrasse
• Sichtbetontreppen im gesamten Haus und Sichtbetonelemente im Erdgeschoss
• Hochwertige Holzböden in Wohn- und Schlafräumen mit weißen Sockelleisten
• Fußbodenheizung auf allen Geschossen, separat regulierbar über Raumthermostate
• Puristisch-elegantes Baddesign mit hochwertigen Materialien und Markenarmaturen
• Bad im Obergeschoss: moderne, großformatige graue Feinsteinfliesen, Wanne, bodengleiche Walk-in-Dusche, großes Waschbecken, WC
• Duschbad im Dachgeschoss: großformatige Feinsteinfliesen, bodengleiche Walk-in-Dusche, Waschbecken, Markenarmaturen, WC
• Begehbare Ankleide im Schlafzimmer
• Lichtdurchflutetes Studio im Dachgeschoss mit eigenem Bad und Stauraum
• Kunststofffenster, 3-fach isolierverglast, Panoramafenster im Wohn-/Essbereich
• Elektrische Rollläden an allen relevanten Fenstern
• Gegensprechanlage im Erd- und Obergeschoss
• Glasfaseranschluss vorhanden
• Eichenparkett, großformatige Fliesen, Sichtbeton und dunkle Metallelemente als architektonische Highlights
• Carport mit abgeschlossenem Gartenraum sowie zusätzlicher Stellplatz
• Sonnige Terrasse und Gartenbereich
• Heizung: Luft-Wärmepumpe – energieeffizient und nachhaltig
• Massive Bauweise mit Fokus auf Langlebigkeit und hoher Wohnqualität
Lage
Die Doppelhaushälfte liegt in einer ruhigen, familienfreundlichen Wohngegend von Geisenfeld. Das Umfeld ist geprägt von moderner Bebauung, gepflegten Grünflächen und einer Atmosphäre, die Lebensqualität und Wohlgefühl vereint.
In unmittelbarer Nähe befinden sich mehrere Kindergärten und eine Grundschule, die bequem zu Fuß oder in wenigen Minuten mit dem Fahrrad erreichbar sind. Einkaufsmöglichkeiten wie Supermärkte, Bäckereien und Metzgereien sowie Ärzte und Apotheken sind ebenfalls schnell erreichbar – die Versorgung des täglichen Bedarfs ist somit bestens gesichert.
Das Stadtzentrum von Geisenfeld bietet zudem ein vielfältiges Angebot an Geschäften, Restaurants, Cafés und einem Wochenmarkt. Für Freizeit und Erholung lädt die nahegelegene Ilm-Aue zu Spaziergängen, Fahrradtouren und sportlichen Aktivitäten in der Natur ein. Vereine und Sportanlagen im Ort ergänzen das attraktive Freizeitangebot.
Dank der verkehrsgünstigen Anbindung über die B300 und B16 sind Ingolstadt (ca. 20 Min.), Pfaffenhofen (ca. 25 Min.) und München (ca. 60 Min.) schnell erreichbar. Damit ist diese Lage ideal für Familien und Berufspendler, die ein ruhiges Wohnumfeld mit guter Infrastruktur und kurzen Wegen verbinden möchten.
Sonstige Angaben
NEUBAU ERSTBEZUG - JETZT EINZIEHEN UND WEIHNACHTEN IM NEUEN ZU HAUSE VERBRINGEN
Grundriss
Grundriss Erdgeschoss
>
>
Grundriss 1. Obergeschoss
>
>
Grundriss Dachgeschoss
>
>
Adresse
85290 Geisenfeld
Interessante Orte
Preis- und Lageinformationen
Preistrend für Bestandsimmobilien in Geisenfeld