Diese Doppelhaushälfte in Neustadt-Geinsheim bietet auf ca. 119m² Wohnfläche viel Raum für unterschiedliche Wohnkonzepte. Die Zimmer sind sinnvoll über zwei Etagen verteilt, sodass sich das Haus sowohl für Paare als auch für Familien oder Personen mit zusätzlichem Platzbedarf eignet. Die Aufteilung ermöglicht ein angenehmes, alltagsfreundliches Wohnen.
⸻
Raumaufteilung
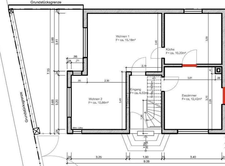
Erdgeschoss
• Funktionaler Eingangsbereich
• Offenes Wohn-Esszimmer
• Separate Küche inklusive Einbauküche
• Schlafzimmer, flexibel nutzbar z. B. als Gästezimmer, Büro oder Hobbyraum
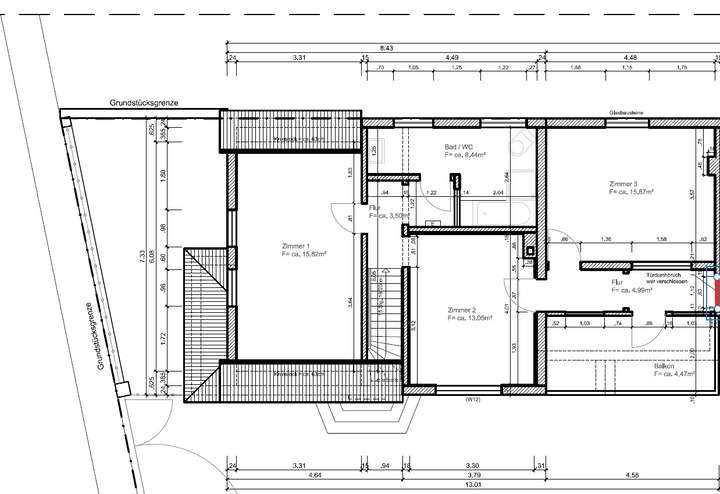
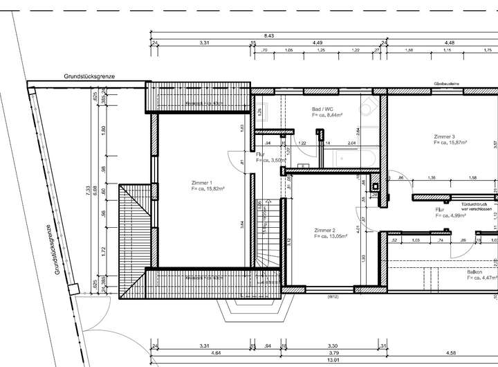
Obergeschoss
Vom Eingangsbereich führt eine Treppe ins Obergeschoss. Dort befinden sich:
• Schlafzimmer
• Tageslichtbad mit Dusche und Badewanne
• Durchgangszimmer, ideal nutzbar als Ankleide, Arbeitsbereich oder Spielzimmer
• Weiteres Zimmer mit kleiner Diele und Zugang zum überdachten Balkon, der an warmen Tagen ein angenehmer Platz zum Entspannen ist
Zusammenfassung der Miete:
Kaltmiete = 1.000,-€/M.
Nebenkosten Haus inkl. Gas, Wasser Strom 500,-€/M.
Warmmiete= 1.500,-/M.
Großzügige Doppelhaushälfte mit Balkon in Neustadt-Geinsheim
67435 Neustadt an der Weinstraße
Die vollständige Adresse der Immobilie erhalten Sie vom Anbieter.
Auf Karte anzeigen
Die vollständige Adresse der Immobilie erhalten Sie vom Anbieter.
Infos
| Haustyp | Doppelhaushaelfte |
|---|---|
| Etagenzahl | 2 |
| Wohnfläche ca. | 119 m2 |
| Grundstücksfläche | 0 m2 |
| Bezugsfrei ab | sofort |
| Zimmer | 5 |
| Schlafzimmer | 4 |
| Badezimmer | 1 |
| Haustiere | Nein |
Kosten
| Kaltmiete |
1.000 € |
|---|---|
| Nebenkosten | + 500 € |
| Heizkosten | in Nebenkosten enthalten |
| Gesamtmiete | 1.500 € |
| Kaution o. Genossenschaftsanteile | 3000 |
Weiter mieten oder doch kaufen?
Wer in Miete wohnt, überweist dem Vermieter im Laufe der Jahre hohe Summen, die sich
auch in die eigenen vier Wände investieren lassen könnten.
Bausubstanz & Energieausweis
| Baujahr | 1964 |
|---|---|
| Letzte Sanierung | 2024 |
| Qualität der Austattung | Normal |
| Heizungsart | Zentralheizung |
| Wesentliche Energieträger | Gas |
| Energieausweis | liegt vor |
| Energieausweistyp | Bedarfsausweis |
| Energieverbrauchskennwert | 196,5 kWh/(m²*a) |
| Energieeffizienzklasse | F |
196,5
kWh/(m²*a)
Energieeffizienzklasse F
- A+
- A
- B
- C
- D
- E
- F
- G
- H
- 0
- 25
- 50
- 75
- 100
- 125
- 150
- 175
- 200
- 225
- >250
Beschreibung des Objekts
Ausstattung
• Einbauküche
• Tageslichtbad mit Wanne und Dusche
• Überdachter Balkon im Obergeschoss
• Mehrere flexibel nutzbare Zimmer
• Gute Erreichbarkeit von Einkaufsmöglichkeiten, Schule, Kindergarten und ÖPNV
Lage
Geinsheim ist ein ruhiger Ortsteil von Neustadt an der Weinstraße in der Pfalz und liegt in der Rheinebene zwischen Feldern und Weinbergen. Das Dorf mit rund 1.900 Einwohnern bietet eine ländliche, familienfreundliche Atmosphäre und eine gute Anbindung über die B39 sowie Busverbindungen nach Neustadt und Speyer. Geinsheim wurde erstmals 774 erwähnt und ist geprägt von seiner Weinkultur sowie der katholischen Kirche St. Peter und Paul, die als „Gäu-Dom“ bekannt ist. Für Familien stehen eine Kindertagesstätte, eine nahegelegene Grundschule und ein aktives Vereinsleben zur Verfügung, das durch Feste wie die Wein- und Ludwigskerwe ergänzt wird. Die Umgebung lädt zu Spaziergängen und Radtouren ein und verbindet ruhiges Wohnen mit der Nähe zu städtischen Angeboten.
Sonstige Angaben
Das vorliegende Angebot ist
freibleibend und unverbindlich. Die Angaben zum Objekt stammen vom Eigentümer und dienen einer ersten Information. Für die Richtigkeit und Vollständigkeit wird keine Haftung übernommen.
Grundriss
Grundriss OG (1)
>
>
Adresse
67435 Neustadt an der Weinstraße
Interessante Orte
Preis- und Lageinformationen
Preistrend für Bestandsimmobilien in Geinsheim