Hierbei handelt es sich um eine ruhig gelegene 3-Zimmer-Wohnung im 2.Obergeschoss einer gepflegten Wohnungseigentumsanlage. Das Haus wurde 1999 in massiver Bauweise mit einem rot-braunen Verblendmauerwerk errichtet. Im Bereich der Dachterrassen wurden die Außenwände mit einem Wärmedämm-Verbundsystem versehen.
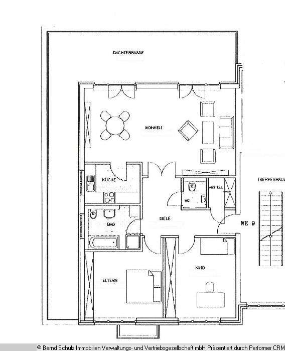
Über die Diele gehen im Uhrzeigersinn das erste Schlafzimmer, das zweite Schlafzimmer, das Bad mit Fenster, der Wohn- und Küchenbereich, das Gäste-WC und der Abstellraum ab. Die großzügige nach Norden und nach Osten ausgerichtete Dachterrasse ist über zwei Türen vom Wohnzimmer begehbar und bietet eine Grundfläche von ca. 40 m².
Die Wohnung verfügt über eine neuwertige Einbauküche aus dem Jahr 2023 mit Herd, Cerankochfeld, Kühlschrank, Ablufthaube sowie diversen Hänge- und Unterbauschränken. In den Wohn- und Schlafräumen sowie in der Küche sind neue Vinylböden ausgelegt. Flur, Gäste-WC und Bad sind mit anthrazitfarbenen Bodenfliesen versehen.
Das Bad wurde 2023 komplett erneuert und ist mit einer Dusche und einer Badewanne ausgestattet. Das Gäste-WC wurde dieses Jahr erneuert. Die Vinylböden in den Wohn- und Schlafräumen sowie die Anthrazit-Bodenfliesen wurden auch in diesem Jahr neu verlegt.
Ein separater Keller sowie ein Abtellraum im Flur bieten ausreichend Platz zum Verstauen. Im Badezimmer kann die Waschmaschine angeschlossen werden.
Sonstiges:
- Die Strom- und Wasserkosten rechnet der Mieter mit den jeweiligen Versorgungsunternehmen separat ab.
- Ein Fahrstuhl ist nicht vorhanden.
- Ein TG-Stellplatz kann optional mit angemietet werden.
- Die Wohnung kann auch teilmöbliert angemietet werden. Eine Abstandszahlung für vorhandene Möbel bzw. ein Aufschlag der Nettokaltmiete müsste dann mit dem Vermieter ausgehandelt werden.
Teilsanierte 3-Zimmer-Wohnung mit großer Dachterrasse im Penthouse-Stil
Puckholm 23,
22457 Hamburg
Auf Karte anzeigen
Infos
| Wohnungskategorie | Etagenwohnung |
|---|---|
| Etage | 2 von 3 |
| Wohnfläche ca. | 118 m2 |
| Zimmer | 3 |
| Schlafzimmer | 2 |
| Badezimmer | 1 |
| Haustiere | Nach Vereinbarung |
Kosten
| Kaltmiete |
1.900 € |
|---|---|
| Nebenkosten | + 290 € |
| Heizkosten | in Nebenkosten enthalten |
| Gesamtmiete | 2.190 € |
| Kaution o. Genossenschaftsanteile | 5.700,00 EUR |
Weiter mieten oder doch kaufen?
Wer in Miete wohnt, überweist dem Vermieter im Laufe der Jahre hohe Summen, die sich
auch in die eigenen vier Wände investieren lassen könnten.
Bausubstanz & Energieausweis
| Baujahr | 1999 |
|---|---|
| Letzte Sanierung | 2025 |
| Objektzustand | Erstbezug nach Sanierung |
| Heizungsart | Zentralheizung |
| Wesentliche Energieträger | Erdgas schwer |
| Energieausweis | liegt vor |
| Energieausweistyp | Verbrauchsausweis |
| Energieverbrauchskennwert | 80,0 kWh/(m²*a) |
Beschreibung des Objekts
Ausstattung
- gute Raumaufteilung
- großer Wohn- und Essbereich
- großzügige Dachterrasse (ca. 40 m²)
- Offene Küche mit neuwertiger EBK
- 2 großräumige Schlafzimmer
- Penthouse-Stil
- Neuwertiges Bad mit Badewanne, separater Dusche und Fenster
- Gäste-WC
- Keller
- Abstellraum
- Waschmaschinenanschluss im Bad
- in 30er Zone gelegen (mit div. Parkmöglichkeiten)
- TG-Stellplatz (optional)
Lage
Schnelsen ist ein beliebter Stadtteil im Nordwesten von Hamburg. Mit öffentlichen Verkehrsmitteln (AKN oder Bus) gelangt man innerhalb von ca. 25 Minuten in die Innenstadt. Die Bushaltestelle der Linien 184 und 384 befindet sich direkt vor dem Objekt. Mit diesen Buslinien gelangen Sie zur U- und S-Bahn sowie zur AKN. Die Autobahnen A7 und A23 sind in wenigen Minuten zu erreichen.
In der Umgebung finden sich Supermärkte, Schulen, Bäcker und Restaurants. Das Niendorfer Gehege als Freizeitgelegenheit ist ebenfalls schnell erreichbar. Auch der nahe gelegene Krupunder See bietet eine schöne Möglichkeit zur Entspannung bei einem Spaziergang.
Banken, Sparkassen, Ärzte und das Albertinen-Krankenhaus befinden sich nur wenige Fahrminuten vom Objekt enfernt.
Grundriss
Grundriss (2OG links)
>
>
Adresse
Puckholm 23, 22457 Hamburg
Interessante Orte
Preis- und Lageinformationen
Preistrend für Bestandsimmobilien in Schnelsen