Klassik trifft Moderne: Die Doppelhausvillen
Zwischen der Düsseldorfer Landstraße und dem Alten Angerbach, nur wenige Schritte von der neu errichteten Kindertagesstätte entfernt, entsteht eine moderne Villa, die durch ihre neoklassizistische Architektur sofort ins Auge fällt. Das klare, stilvolle Erscheinungsbild und die großzügige Raumplanung machen dieses Haus zu einem besonderen Wohnort für alle, die Wert auf Qualität und Freiraum legen.
Schon beim ersten Anblick beeindruckt die Villa mit ihrer zeitlosen Fassadengestaltung: Klassische Elemente wie feine Putzbänder, Faschen und dezente Säulen verleihen dem Gebäude eine elegante Note und erinnern an die Ästhetik traditioneller Gartenstadtarchitektur. Auch im Inneren setzt sich dieser Anspruch fort – jede Etage überzeugt durch eine durchdachte Raumaufteilung und ein Ambiente, das Komfort und Stil harmonisch verbindet.
Die Villa bietet ein repräsentatives Wohngefühl mit viel Platz für individuelle Lebensentwürfe. Im Erdgeschoss erwartet Sie ein offener, weitläufiger Wohnbereich, einen großzügigen Eingangsbereich und ein Gästeduschbad. Das Obergeschoss hält drei gut geschnittene Zimmer sowie ein großzügiges Bad bereit. Das Dachgeschoss präsentiert sich mit einem zusätzlichen Schlafzimmer inklusive en-suite Bad und Ankleidebereich – ideal für Gäste, das Homeoffice oder private Rückzugsorte. Ein vollwertiger Keller, eine große Terrasse, ein eigener Garten sowie eine Garage ergänzen das Wohnkonzept.
Im Mietpreis ist bereits eine hochwertige Einbauküche enthalten.
Sofort bezugsfrei! Komplett ausgestattete und exklusive XL-Doppelhausvilla an den Angerbachauen
Aenne-Brauksiepe-Straße 31,
47259 Duisburg
Auf Karte anzeigen
Infos
| Haustyp | Doppelhaushaelfte |
|---|---|
| Etagenzahl | 3 |
| Wohnfläche ca. | 172 m2 |
| Nutzfläche | 72,32 m2 |
| Grundstücksfläche | 283 m2 |
| Bezugsfrei ab | 01.12.2025 |
| Zimmer | 5 |
| Schlafzimmer | 4 |
| Badezimmer | 2 |
| Haustiere | Nein |
| Garage/Stellplatz | Garage |
| Anzahl Garage/Stellplatz | 1 |
Kosten
| Kaltmiete |
3.550 € |
|---|---|
| Nebenkosten | + 240 € |
| Heizkosten | keine Angabe |
| Gesamtmiete | 3.790 € (zzgl. Heizkosten) |
| Kaution o. Genossenschaftsanteile | 10650 |
Weiter mieten oder doch kaufen?
Wer in Miete wohnt, überweist dem Vermieter im Laufe der Jahre hohe Summen, die sich
auch in die eigenen vier Wände investieren lassen könnten.
Bausubstanz & Energieausweis
| Baujahr | 2025 |
|---|---|
| Objektzustand | Erstbezug |
| Qualität der Austattung | Luxus |
| Heizungsart | Blockheizkraftwerk |
| Wesentliche Energieträger | Nahwärme |
| Energieausweis | liegt vor |
| Energieausweistyp | Bedarfsausweis |
| Energieverbrauchskennwert | 63,7 kWh/(m²*a) |
| Energieeffizienzklasse | B |
63,7
kWh/(m²*a)
Energieeffizienzklasse B
- A+
- A
- B
- C
- D
- E
- F
- G
- H
- 0
- 25
- 50
- 75
- 100
- 125
- 150
- 175
- 200
- 225
- >250
Beschreibung des Objekts
Ausstattung
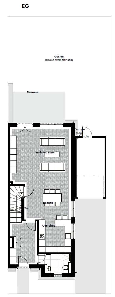
Erdgeschoss:
• großzügiges Entrée
• Gäste-Duschbad
• großer Wohn-/Essbereich mit offener und hochwertiger Einbauküche
• Terrasse in Südausrichtung
• Garten
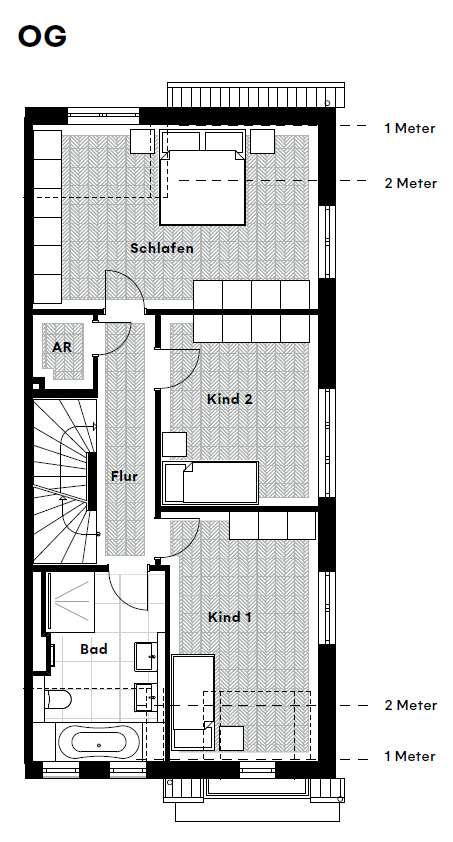
Obergeschoss:
• ca. 22 qm großes Elternschlafzimmer
• 2 Kinderzimmermit jeweils 14 qm Wohnfläche
• großes Badezimmer mit Badewanne und Dusche
• Abstellraum
Dachgeschoss:
• zusätzliches Schlafzimmer mit Ensuite-Bad und Ankleidezimmer.
Kellergeschoss:
• zwei Kellerräume
• Hauswirtschaftsraum für Waschmaschine und Trockner
• Haustechnikraum
Ausstattungsmerkmale:
• Energieeffiziente Bauweise als Effizienzhaus 55
• Massivbauweise Stein auf Stein gebaut, mineralisch gedämmt, verputzt und verziert
• tlw. bodentiefe Fenster, 3-fach verglast
• Elektrische Rollläden
• Fußbodenheizung
• Sanitärausstattung von Markenherstellern
• Merten-Schalterprogramm
• Glasfaseranschluss
• Video-Gegensprechanlage
• Garage
• Vorrüstung für E-Ladestation an der eigenen Villa
• Malervlies an den Wänden
• Hochwertiges Eichen-/Echtholzparkett in den Wohn- und Schlafräumen
• die hochwertige Einbauküche wird zum monatlichen Mietpreis von 250,--€ vermietet und ist in der Gesamtmiete enthalten
Lage
Eine Lage, die einfach überzeugt
Wer sich für ein Zuhause in den Doppelhausvillen des Fuchs&Hase entscheidet, trifft auch in puncto Standort eine hervorragende Wahl. Der begehrte Duisburger Süden verbindet angenehme Ruhe mit idealer Anbindung – und eröffnet so beste Perspektiven für Alltag, Freizeit und Mobilität. Die Umgebung zeigt sich abwechslungsreich und bietet zahlreiche Ziele, die Sie dank der optimalen Verkehrsanbindung sowohl mit dem Auto als auch mit der U-Bahn schnell erreichen.
Beispielhafte Entfernungen:
• ca. 15 Minuten mit dem Auto zur Königstraße in Duisburg
• ca. 20 Minuten mit der U-Bahn zum Duisburger Hauptbahnhof
• ca. 14 Minuten mit dem Auto zum Burghof-Biergarten in Kaiserswerth
• ca. 14 Minuten mit dem Auto zum Flughafen Düsseldorf
• ca. 28 U-Bahn-Minuten von der Haltestelle Kesselsberg zur Düsseldorfer Königsallee
Einkaufen & Nahversorgung
Kurze Wege, großer Komfort: Ein Lebensmittel- und Getränkemarkt liegt in direkter Nähe, weitere Alltagsangebote wie Bäckerei, Apotheke, Sparkasse oder Tankstelle befinden sich ebenfalls im Umfeld. Für größere Shoppingtouren bietet die U 79 eine schnelle Verbindung in die Duisburger Innenstadt oder nach Düsseldorf.
Gastronomie
Ob italienisch, deutsch, modern oder klassisch – rund um Ihr neues Zuhause erwartet Sie eine vielfältige und attraktive Auswahl an Restaurants, Cafés und Imbissen.
Medizinische Versorgung
Mit der Helios Klinik St. Anna befindet sich ein Krankenhaus mit breitem Fachbereichsspektrum in unmittelbarer Nähe. Ergänzend sorgen zahlreiche Haus- und Facharztpraxen im Stadtteil für eine zuverlässige medizinische Versorgung.
Sport & Freizeit
Golfen, Laufen, Fitness oder Tennis – die Auswahl ist groß. Der Golfclub nebenan, der Joggingweg entlang des Angerbachs sowie das nahegelegene XXL-Sportcenter bieten Ihnen viele Möglichkeiten für ein aktives Leben.
Kindertagesstätten & Schulen
Ob Kita, Grundschule oder weiterführende Schule: Im Umkreis von ein bis zwei Kilometern finden sich zahlreiche Einrichtungen, darunter auch die renommierte internationale Schule St. George’s.
Natur & Erholung
Die Angerbachauen beginnen direkt vor Ihrer Haustür. Weitere naturnahe Ausflugsziele wie der Rahmer und Remberger See, die Sechs-Seen-Platte sowie der Rhein bieten beeindruckende Naherholungsflächen und viel Raum zum Entspannen.
Weitere Dokumente
Exposé Fuchs & Hase59_12_ABA DHH Typ 3b rechts_En
3_DHV_Carlton VE XL
Grundriss
KG Grundriss
>
>
EG Grundriss
>
>
OG Grundriss
>
>
DG Grundriss
>
>
Adresse
Aenne-Brauksiepe-Straße 31, 47259 Duisburg
Interessante Orte
Preis- und Lageinformationen
Preistrend für Bestandsimmobilien in Huckingen