Grüne Aussichten mit Stadtnähe. - Leben im Herzen der Natur.
Das herrschaftliche "Gut Nauenhof" liegt rund 20 Fahrminuten außerhalb der Innenstadt von Düsseldorf und die äußerst attraktive Wohneinheit 1 ist als separates "Gutshaus" mit eigenem Eingang, eigenem Garten, Garagenplatz und Stellplatz gestaltet und rund 140 m2 groß.
In enger Abstimmung mit der Denkmalbehörde und dem Landschaftsverband Rheinland (LVR) entstand dieser historische, denkmalgeschützte Gutshof, nach neuesten Standards saniert, in neuer Blüte.
Die helle und offene Gestaltung und die perfekte Süd-Lage machen das Gutshaus zu einem echten Juwel.
Das rund 80 qm große EG mit direktem Ausgang in den eigenen Garten verfügt über einen offenen Koch-, Wohn-/Essbereich, eine Diele, einen Hauswirschaftsraum mit den erforderlichen Anschlüssen für Waschmaschine & Trockner, sowie ein Gäste-WC.
Das rund 60 qm große OG umfasst 2 Schlafräume, ein Ankleidezimmer und ein großes modernes Badezimmer mit Fenster.
Ein eigener Speicher sorgt für den benötigen Lagerplatz.
Fahrradständer, eigene Fahrradkeller und eine zusätzliche eigene Terrasse im Innenhof sind ebenso selbstverständlich für diese hochwertige Immobilie, wie die Ladevorrichtungen für Elektrofahrzeuge an den PKW-Plätzen und die genehmigte Verkehrsberuhigung der öffentlichen Straße.
Die perfekte Synergie historischer Wurzeln und moderner Formensprache macht eine erfolgreiche Architektur lebenswert und dieses Gutshaus ebenso einzigartig wie lebenswert.
Die alte Bausubstanz wird bei unseren Objekten gekonnt mit industriell wirkenden Trägern und konstruktivistischen Stahl-Glaselementen verbunden – dazwischen Akzente aus filigranem, satiniertem Edelstahl. Transparente Wände und begehbare Deckenelemente aus Glas sowie Lichthöfe schaffen ein luftiges Raumgefühl, während Holzböden in warmen Naturtönen erden.
Modernes "Loft-Gutshaus" Erstbezug sanierter Gutshof, 4 Zi., 2 SZ, Terrasse, Garten, 140 qm, Südlage
Streithöfe 6,
47877 Willich
Auf Karte anzeigen
Infos
| Wohnungskategorie | Loft |
|---|---|
| Etagenzahl | 2 |
| Wohnfläche ca. | 138 m2 |
| Bezugsfrei ab | Sofort |
| Zimmer | 4 |
| Schlafzimmer | 2 |
| Badezimmer | 1 |
| Haustiere | Ja |
| Garage/Stellplatz | Parkhaus |
| Anzahl Garage/Stellplatz | 1 |
Kosten
| Kaltmiete |
2.294 € |
|---|---|
| Nebenkosten | + 205 € |
| Heizkosten | in Nebenkosten enthalten |
| Gesamtmiete | 2.499 € |
| Kaution o. Genossenschaftsanteile | 4.588,00 |
Weiter mieten oder doch kaufen?
Wer in Miete wohnt, überweist dem Vermieter im Laufe der Jahre hohe Summen, die sich
auch in die eigenen vier Wände investieren lassen könnten.
Bausubstanz & Energieausweis
| Baujahr | 1900 |
|---|---|
| Objektzustand | Erstbezug nach Sanierung |
| Heizungsart | Zentralheizung |
| Wesentliche Energieträger | Erdwärme |
| Energieausweis | laut Gesetz nicht erforderlich |
Beschreibung des Objekts
Ausstattung
Gutshäuser mit attraktiver Loft-Architektur und einer Symbiose aus denkmalgeschützter Substanz und modernen Gestaltungselementen sind selten und für Käufer und Mieter gleichermaßen attraktiv. Dies war in der Vergangenheit so und wird auch in Zukunft so bleiben.
Unsere Architekturbüros haben sich seit langen Jahren vor allem in der Restaurierung von Baudenkmalen einen hervorragenden Namen gemacht. Mit der erfolgreichen Sanierung von über 30 historischen Gutshöfen habe unsere Architekturbüros ihre Leistungsfähigkeit in der nutzungsoptimierten Sanierung von historischen Gebäuden gleich mehrfach unter Beweis gestellt.
Im Umgang mit Baudenkmälern sind wir stets darauf bedacht, mit großer Sorgfalt bei den Objekten ihre Ausstrahlung, Originalität und Identität zu bewahren und sie mit neuem, modernem Leben zu füllen.
Hochwertige Holzdielen in den Wohnräumen, Massive Holzfenster, keramische Bodenbeläge in den Bädern und namhafte Bad-Installationen sichern den Erhalt Ihrer Investition auf Generationen. Dabei wird modernste Technik mit nachhaltigen Lösungen vereint.
Die Projektentwickler verfügen über Erfahrung bei der Sanierung von über 50 sogenannter "Rheinischer Vierkanthöfe" zu modernen Traumimmobilien.
Gerne ermöglichen wir Ihnen einen ersten, eindrucksvollen Besichtigungstermin. Überzeugen Sie sich in entspannter Atmosphäre von der Exklusivität und Einzigartigkeit dieses Anwesens und lassen Sie die Eindrücke vor Ort in aller Ruhe wirken. Das Bauprojekt wird 2026 final abgeschlossen, die ersten Wohnungen sind jedoch bereits bezugsfertig.
Bei der eigenen Gestaltung der Küche sind Ihnen keine Grenzen vorgegeben, alle Anschlüsse auch für eine Kochinsel sind bereits vorbereitet.
Die Wohnung ist fertig und kann sofort bezogen werden.
Lage
Stadtnähe und Wohnen in der Natur sind keine Gegensätze.
Ruhe in der Natur und Abends zum Essen in die Top-Restaurants der City. Die Wohnqualität des direkten Umfelds wird Sie nachhaltig überzeugen.
An einem sonnigen Tag entsteht sofort nach Betreten der Gärten der historischen Hofanlage eine totale Entspannung, man möchte gar nicht mehr weg, sofort eine Decke ausbreiten, Rotwein und Käse auspacken und das Verweilen genießen. Sie empfinden eine höchst angenehme Ruhe auf dem Land und sind dennoch unweit der Metropolen der Region.
Wohnqualität, die schon in wenigen Jahren unbezahlbar wird.
Genießen Sie täglich die Oase der Ruhe. Schöner kann man in unberührter Natur nicht wohnen, dafür werden sich bei Vermietung auch Ihre zukünftigen Mieter sicherlich leicht begeistern.
Der historische Gutshof, zwischen Wirtschaftskraft der Metropolregionen, dem schönen Rheintal und der Nähe zum Nachbarn Belgien und Niederlande.
Nur wenige Kilometer von Düsseldorf entfernt, liegt dieser einzigartige Gutshof in einer erstklassigen Lage mit schneller Autobahnanbindung und idealer Infrastruktur, nur rund 20 Minuten vom Zentrum Düsseldorfs entfernt.
Alle Geschäfte des täglichen Bedarfs befinden sich stets in unmittelbarer Umgebung. Hierzu sind keine langen Wege notwendig.
Sonstige Angaben
Enorme Steuervorteile durch Denkmalimmobilien. Die Hofanlagen sind Baudenkmäler im Sinne von § 2 Abs. 1 und 2 des Denkmalschutzgesetzes NRW.
Hieraus ergeben sich für Eigennutzer, als auch für Kapitalanleger (Vermietung) höchst interessante Steuervorteile durch die erhöhte Denkmalschutz-AFA, womit ein großer Teil der Kaufsumme im Laufe der Jahre durch den Staat mitfinanziert wird.
Kapitalanleger und Eigennutzer erhalten auf der Basis eines Bauträgervertrages ein schlüsselfertiges Objekt.
Zusätzlich zu den Steuervorteilen erhalten Sie zinsgünstige Darlehn der KFW und zudem oft noch eine nicht rückzahlbare finanzielle Förderung über die KFW.
Sprechen Sie uns hierauf gerne an und lassen Sie sich – in Ergänzung zu Ihrem Steuerberater – zu diesem Thema informieren. Gerne lassen wir Ihnen hierzu weiteres Material zukommen, oder erläutern Ihnen Ihre Vorteile in einem persönlichen Gespräch.
Denkmalimmobilien „rechnen“ sich damit gleich mehrfach, denn als Selbstnutzer bekommen Sie hohe Förderungen und durch das geringe Angebot und die hohe Begehrlichkeit haben Sie als Kapitalanleger in der Regel noch höhere Mieteinkünfte als in Vergleichsobjekten!
Bei Interesse erfragen Sie bitte unser ausführliches Exposé über unser Büro. Sie bevorzugen ein klassisches Print-Exposé? Sprechen Sie uns an!
Bitte beachten Sie, dass wir als Doppelmakler sowohl für den Verkäufer als auch für den Käufer provisionspflichtig tätig sind.
Selbstverständlich können Sie Ihr Immobiliengesuch in unserer Datenbank unverbindlich und kostenfrei dauerhaft hinterlegen. Somit würden Sie in Zukunft durch uns ganz automatisch über neue Objekte informiert werden.
Besuchen Sie hierzu unsere Website unter www.home4you.info, hier erhalten Sie auch weitere Informationen zu Förderungen und vergleichbaren Objekten, die bereits fertiggestellt wurden.
Grundriss
Grundriss EG
>
>
Grundriss OG
>
>
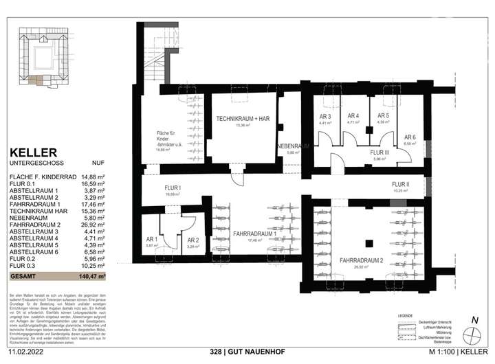
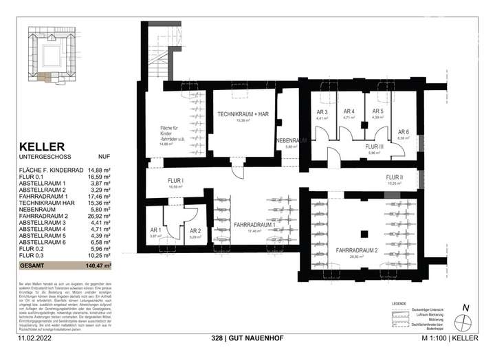
Grundriss Keller
>
>
Lageplan Gutshaus
>
>
Adresse
Streithöfe 6, 47877 Willich
Interessante Orte
Preis- und Lageinformationen
Preistrend für Bestandsimmobilien in Willich