Unsere Mission: Wohneigentum bezahlbar zu machen!
Das hier projektierte Haus hat alles was die moderne Familie sich wünscht. Moderne Grundrisse und moderne Ausstattung um modern zu leben!
Viele Mieter sind auf Grund Ihrer Umstände durchaus für den Kauf eines Hauses geeignet und können so ihren Traum vom Eigentum realisieren.
Lassen Sie uns gemeinsam mit meinem Expertenteam aufarbeiten, ob auch Sie mieten oder kaufen können. Kostenlos & unverbindlich!
Kommen Sie einfach auf mich zu. Gerne sprechen wir über weitere Details.
Investieren Sie Ihre Miete in Ihre Zukunft - Ihr Traumhaus!
71577 Großerlach
Die vollständige Adresse der Immobilie erhalten Sie vom Anbieter.
Auf Karte anzeigen
Die vollständige Adresse der Immobilie erhalten Sie vom Anbieter.
Infos
| Haustyp | Einfamilienhaus |
|---|---|
| Wohnfläche ca. | 141 m2 |
| Nutzfläche | 0 m2 |
| Grundstücksfläche | 410 m2 |
| Zimmer | 4 |
| Schlafzimmer | 3 |
| Badezimmer | 1 |
| Anzahl Garage/Stellplatz | 0 |
Kosten
| Kaltmiete |
1.985 € |
|---|---|
| Nebenkosten | keine Angabe |
| Heizkosten | keine Angabe |
| Gesamtmiete | 1.985 € |
Weiter mieten oder doch kaufen?
Wer in Miete wohnt, überweist dem Vermieter im Laufe der Jahre hohe Summen, die sich
auch in die eigenen vier Wände investieren lassen könnten.
Bausubstanz & Energieausweis
| Baujahr | 2026 |
|---|---|
| Qualität der Austattung | Gehoben |
| Heizungsart | Wärmepumpe |
Beschreibung des Objekts
Ausstattung
- 3 Schlafzimmer,
- Ein großzügiger Wohn-/Essbereich mit Zugang zur sonnigen Terrasse.
- Privater Garten – ideal für Familien oder Hobbygärtner.
- Gute Anbindung, Schulen und Einkaufsmöglichkeiten in der Nähe.
Lage
Idyllisch wohnen in Großerlach – Natur genießen, Ruhe finden, gut angebunden leben
Willkommen in Großerlach – einer charmanten Gemeinde am Rande des Naturparks Schwäbisch-Fränkischer Wald. Hier verbinden sich naturnahes Wohnen und hohe Lebensqualität mit einer familienfreundlichen Umgebung. Umgeben von Wiesen, Wäldern und sanften Hügeln bietet Großerlach den perfekten Rückzugsort für alle, die Ruhe schätzen – ohne auf eine gute Anbindung verzichten zu müssen.
Sonstige Angaben
Lassen Sie sich persönlich beraten – gerne informiere ich Sie über Deine finanziellen Möglichkeiten.
Bitte beachten: Abbildungen und Grundrisse dienen zur Veranschaulichung und können Sonderausstattungen zeigen, die nicht im Preis enthalten sind.
Details zum Grundstück geben wir ausschließlich im persönlichen Gespräch weiter. Wir bitten um Verständnis, dass nur vollständige Anfragen bearbeitet werden können.
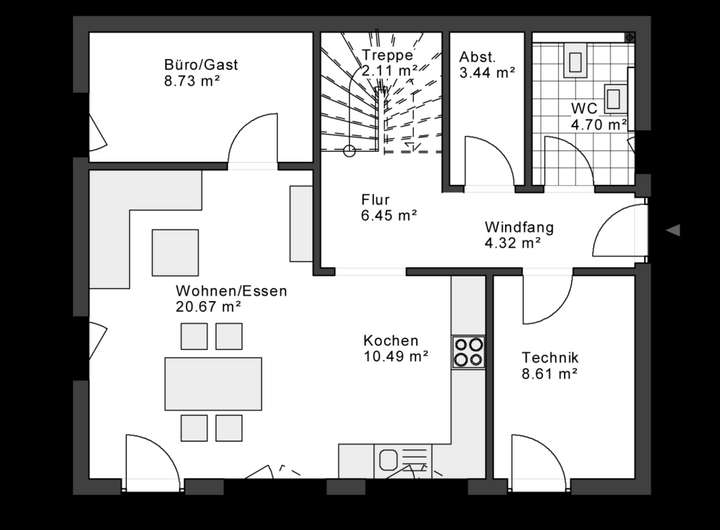
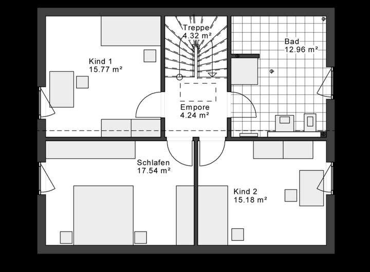
Grundriss
Grundriss EG
>
>
Grundriss OG
>
>
Adresse
71577 Großerlach
Interessante Orte
Preis- und Lageinformationen
Preistrend für Bestandsimmobilien in Großerlach