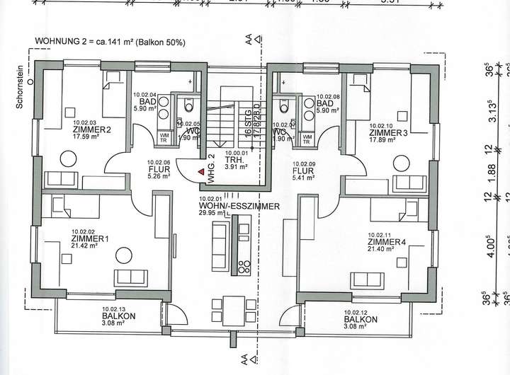
Diese exklusive 5-Zimmer-Wohnung mit ca. 140,68 m² Wohnfläche befindet sich im 1. Obergeschoss eines modernen Neubaus aus dem Jahr 2018 in Kusterdingen-Wankheim. Die Wohnung zeichnet sich durch eine hochwertige Ausstattung und einen durchdachten Grundriss aus. Sie verfügt über zwei Badezimmer mit jeweils einer Dusche und zwei separate WC. Eine Fußbodenheizung sorgt für wohlige Wärme. In Südrichtung befinden sich zwei Balkone. Die Wohnung ist für Wohngemeinschaften oder Praxis/Büro geeignet und beinhaltet zwei Parkplätze und zwei Kellerteile. Die rechte und die linke Seite der Wohnung sind spiegelgleich und eignet sich auch dazu sie zu zweit sich zu teilen und den Küche-Wohn-Essbereich gemeinschaftlich zu teilen. Die Verfügbarkeit ist ab dem 1. Januar 2026 gegeben.
Einen Aufzug gibt es nicht.
5-Zimmer Wohnung in Kusterdingen (Wankheim) - Zweitbezug 2018
Obere Straße 2,
72127 Kusterdingen
Auf Karte anzeigen
Infos
| Wohnungskategorie | Etagenwohnung |
|---|---|
| Etage | 1 von 1 |
| Wohnfläche ca. | 140 m2 |
| Nutzfläche | 140 m2 |
| Bezugsfrei ab | 1.1.2026 |
| Zimmer | 5 |
| Schlafzimmer | 4 |
| Badezimmer | 2 |
| Haustiere | Nein |
| Garage/Stellplatz | Außenstellplatz |
| Anzahl Garage/Stellplatz | 2 |
Kosten
| Kaltmiete |
1.700 € |
|---|---|
| Nebenkosten | + 150 € |
| Heizkosten | in Nebenkosten enthalten |
| Gesamtmiete | 1.850 € |
| Miete für Garage/Stellplatz | 1.700 € |
| Kaution o. Genossenschaftsanteile | 5.100,00 |
Weiter mieten oder doch kaufen?
Wer in Miete wohnt, überweist dem Vermieter im Laufe der Jahre hohe Summen, die sich
auch in die eigenen vier Wände investieren lassen könnten.
Bausubstanz & Energieausweis
| Baujahr | 2018 |
|---|---|
| Letzte Sanierung | 2018 |
| Objektzustand | Neuwertig |
| Qualität der Austattung | Gehoben |
| Heizungsart | Fußbodenheizung |
| Wesentliche Energieträger | Holz |
Beschreibung des Objekts
Ausstattung
Bodentiefe Fenster, überall Fliesen,
Lage
Kusterdingen-Wankheim ist eine attraktive Gemeinde mit guter Infrastruktur. Die Nahversorgung ist durch diverse Einkaufsmöglichkeiten und Dienstleister im Ort gesichert. Die Anbindung an den öffentlichen Nahverkehr ist gegeben und ermöglicht eine gute Erreichbarkeit umliegender Städte und des Stadtzentrums von Tübingen. Die Umgebung lädt zu Freizeitaktivitäten im Grünen ein und bietet eine hohe Lebensqualität.
Adresse
Obere Straße 2, 72127 Kusterdingen
Interessante Orte
Preis- und Lageinformationen
Preistrend für Bestandsimmobilien in Kusterdingen