Direkt vom Eigentümer – Keine Maklerkosten!
Dieses freistehende Einfamilienhaus bietet Ihnen und Ihrer Familie ein gemütliches Zuhause. Mit einer Wohnfläche von ca. 180 Quadratmetern bietet dieses familienfreundliche Haus ausreichend
Platz für gemeinsame Aktivitäten und Rückzugsmöglichkeiten. Das Haus liegt in einer verkehrsberuhigten 30-Zone.
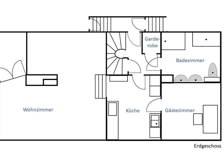
Das Objekt verfügt über einen zentralen kombinierten Küchen- und Wohnzimmerbereich, der einladend und hell gestaltet ist. Die Böden sind mit Pitchpine-Dielen gestaltet. Von der offenen Küche genießen Sie den Blick ins großzügige Wohnzimmer mit offenem Kamin und Zugang zur großen Süd-West-Terrasse sowie zum Gartenbereich mit altem Obstbaumbestand.
Im Erdgeschoss befindet sich auch ein großes Badezimmer mit einer extra großen Badewanne, separater Dusche und
zwei Waschbecken. Zusätzlich steht im Erdgeschoss ein praktischer Garderobenraum zur Verfügung, sowie ein
Gäste- bzw. Arbeitszimmer.
Über eine ansprechende Holztreppe ist das Obergeschoss zu erreichen. Hier sind ebenfalls Pitchpine-Dielen verlegt. Die hell gestalteten Räume teilen sich in ein Elternschlafzimmer mit Durchgangszimmer, 2 Kinderzimmer mit Blick in den Garten und mit großzügigem Vorraum auf. Ein weiteres Zimmer kann z.B. als Arbeitszimmer genutzt werden. Im Obergeschoss befindet sich zudem ein zweites Badezimmer mit Dusche. Das Dachgeschoss ist ausgebaut und bietet ausreichend Platz für zusätzliche Nutzungsmöglichkeiten.
Das Objekt verfügt über mehrere helle Kellerräume. Ein zusätzlicher separater Zugang direkt von außen aus dem Garten
in den Keller ist ebenfalls vorhanden.
Ein reizvolles Detail des Gartens ist ein massives Gartenhaus aus der Jahrhundertwende, das z.B. als Gerätehaus genutzt
werden kann. Um das Gartenhaus ranken sich Wein und Rosen, es ist ein echter Blickfang im Staudengarten. Das Dach des
Gartenhauses wurde 2022 neu eingedeckt.
Großes Einfamilienhaus zentrumsnah, zur Miete mit Garten und zwei eigenen Parkplätzen - ab sofort
Olewischtwiet 18,
22177 Hamburg
Auf Karte anzeigen
Infos
| Haustyp | Einfamilienhaus |
|---|---|
| Etagenzahl | 2 |
| Wohnfläche ca. | 180 m2 |
| Nutzfläche | 60 m2 |
| Grundstücksfläche | 658 m2 |
| Bezugsfrei ab | 16.11.2025 |
| Zimmer | 8 |
| Schlafzimmer | 2 |
| Badezimmer | 2 |
| Haustiere | Nein |
| Garage/Stellplatz | Außenstellplatz |
| Anzahl Garage/Stellplatz | 2 |
Kosten
| Kaltmiete |
2.990 € |
|---|---|
| Nebenkosten | + 300 € |
| Heizkosten | + 200 € |
| Gesamtmiete | 3.490 € (zzgl. Heizkosten) |
| Kaution o. Genossenschaftsanteile | 8.970,00 |
Weiter mieten oder doch kaufen?
Wer in Miete wohnt, überweist dem Vermieter im Laufe der Jahre hohe Summen, die sich
auch in die eigenen vier Wände investieren lassen könnten.
Bausubstanz & Energieausweis
| Baujahr | 1935 |
|---|---|
| Letzte Sanierung | 2025 |
| Objektzustand | Gepflegt |
| Qualität der Austattung | Gehoben |
| Heizungsart | Gas-Heizung |
| Wesentliche Energieträger | Gas |
| Energieausweis | liegt vor |
| Energieausweistyp | Bedarfsausweis |
| Energieverbrauchskennwert | 149,0 kWh/(m²*a) |
| Energieeffizienzklasse | E |
149,0
kWh/(m²*a)
Energieeffizienzklasse E
- A+
- A
- B
- C
- D
- E
- F
- G
- H
- 0
- 25
- 50
- 75
- 100
- 125
- 150
- 175
- 200
- 225
- >250
Beschreibung des Objekts
Ausstattung
Pitchpine-Dielen, offener Kamin, große Sud-West-Terrasse
Lage
Lage
Das Haus befindet sich in einer ruhigen und grünen Umgebung, perfekt für Familien und Naturliebhaber. Nur ca. 400 Meter
entfernt ist der malerische Appelhoffweiher, der zu entspannenden Spaziergängen und Freizeitaktivitäten einlädt.
Die Umgebung ist zudem hervorragend erschlossen: Einkaufsmöglichkeiten für den täglichen Bedarf sind in wenigen Gehminuten
erreichbar. Mehrere Bushaltestellen sind nur ca. 400 Meter entfernt. Sie bieten eine bequeme Anbindung an die öffentlichen
Verkehrsmittel. Familien mit Kindern profitieren von der Nähe zu Kitas und Schulen, die ebenfalls in wenigen Gehminuten
zu erreichen sind. Zudem stehen mehrere Kinderspielplätze in der fußläufigen Umgebung zur Verfügung.
Sonstige Angaben
Renovierungen
Das Wohnhaus wurde regelmäßig mit viel Liebe zum Detail renoviert, um modernen Wohnkomfort zu gewährleisten.
Zuletzt wurde 2022 das Dach neu eingedeckt und gedämmt. Dabei wurden hochwertige neue Velux-Fenster eingebaut.
Zudem wurde 2022 eine neue Gasheizung mit Brennwerttechnik installiert, die für Energieeffizienz (Klasse E) sorgt.
2025 wurden weitere Renovierungen vorgenommen.
Besonderheiten
Ein besonderes Merkmal dieses Einfamilienhauses ist der großzügige Garten mit mehreren Obstbäumen. Der Garten bietet viel Platz
für Kinder zum Spielen, zum Gärtnern oder einfach zum Entspannen unter freiem Himmel. Darüber hinaus stehen zwei eigene
PKW-Stellplätze direkt vor dem Haus zur Verfügung, was das Parken besonders bequem macht.
Dieses Haus ist optimal geeignet für Familien mit Kindern. Es vereint eine ruhige, naturnahe Umgebung mit den Vorzügen
einer zentrumsnahmen Lage mit sehr guter Anbindung an Einkaufsmöglichkeiten und öffentliche Verkehrsmittel.
Zögern Sie nicht und vereinbaren Sie gleich einen Besichtigungstermin!
Grundriss
Erdgeschoss
>
>
Obergeschoss
>
>
2 Obergeschoss
>
>
Keller
>
>
Adresse
Olewischtwiet 18, 22177 Hamburg
Interessante Orte
Preis- und Lageinformationen
Preistrend für Bestandsimmobilien in Bramfeld