Willkommen in Ihrem neuen Zuhause! Dieses wunderschöne Einfamilienhaus in einer familienfreundlichen Siedlung von Eiselfing bietet Ihnen und Ihrer Familie alles, was Sie sich wünschen.
Mit einer großzügigen Wohnfläche von ca. 224 m² und einem sonnigen Grundstück von ca. 613 m² ist dies der perfekte Ort für unvergessliche Familienmomente.
Besonderheiten:
- Massive Holzbauweise für ein einzigartiges Wohnklima
- Energieplushaus (KfW 40 Plus) – umweltfreundlich und kostensparend
- Ruhige Lage mit umlaufendem Garten und drei Terrassen, darunter eine überdachte Terrasse, die optional zum Wintergarten ausgebaut werden kann
Raumaufteilung:
- Erdgeschoss: Offener Wohn-Essbereich mit sensationeller Pfosten-Riegel-Fassade, die einen fantastischen Ausblick in die Natur bietet. Ein Kaminofen sorgt für wohlige Wärme. Gäste-Toilette sowie Einliegerwohnung.
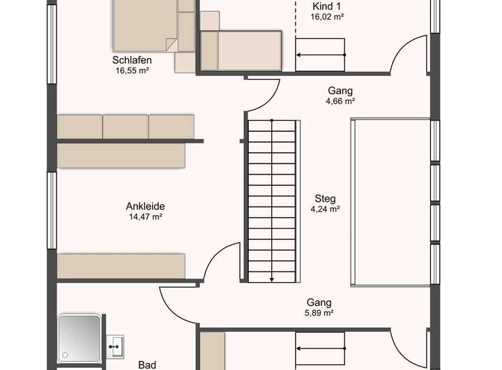
- Obergeschoss: Zwei Kinderzimmer mit Empore, ein Elternschlafzimmer mit Ankleidezimmer (optional abtrennbar), sowie ein Masterbad mit bodentiefer Dusche, Badewanne, Toilette und Doppelwaschtisch.
- Galerie: Zusätzlicher Raum für ein Büro oder andere Nutzungsmöglichkeiten.
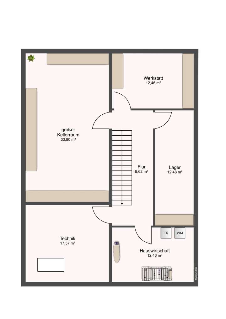
- Keller: Komplett unterkellert mit großem Hobbyraum, Heizungsraum, separater Waschküche und Werkstatt.
Zusätzliche Merkmale:
- Separate Einliegerwohnung (ca. 32 m²) mit eigenem Badezimmer, geräumigem Wohn-Essbereich und Terrassenzugang
Dieses Haus ist ein Familienparadies - genießen Sie die Ruhe, den Platz und die hervorragende Bauqualität in einer der besten Lagen der Region.
Das Haus ist voraussichtlich ab dem 01.02.2026 bezugsfrei. Es wird befristet zur Miete bis 31.05.2027 angeboten (ggf. optional mit Verlängerung).
Vereinbaren Sie noch heute einen Besichtigungstermin mit uns!
Miete auf Zeit: Hochwertiges Einfamilienhaus mit Einliegerwohnung und tollem Garten in Eiselfing
83549 Eiselfing
Die vollständige Adresse der Immobilie erhalten Sie vom Anbieter.
Auf Karte anzeigen
Die vollständige Adresse der Immobilie erhalten Sie vom Anbieter.
Infos
| Haustyp | Einfamilienhaus |
|---|---|
| Etagenzahl | 3 |
| Wohnfläche ca. | 224 m2 |
| Grundstücksfläche | 613 m2 |
| Bezugsfrei ab | 01.02.2026 |
| Zimmer | 8 |
| Schlafzimmer | 5 |
| Badezimmer | 2 |
| Anzahl Garage/Stellplatz | 5 |
Kosten
| Kaltmiete |
2.300 € |
|---|---|
| Nebenkosten | + 200 € |
| Heizkosten | in Nebenkosten enthalten |
| Gesamtmiete | 2.500 € |
| Kaution o. Genossenschaftsanteile | 6900,00 EUR |
Weiter mieten oder doch kaufen?
Wer in Miete wohnt, überweist dem Vermieter im Laufe der Jahre hohe Summen, die sich
auch in die eigenen vier Wände investieren lassen könnten.
Bausubstanz & Energieausweis
| Baujahr | 2018 |
|---|---|
| Objektzustand | Neuwertig |
| Heizungsart | Fußbodenheizung |
| Wesentliche Energieträger | Strom |
| Energieausweis | liegt vor |
| Energieausweistyp | Bedarfsausweis |
| Energieverbrauchskennwert | 6,0 kWh/(m²*a) |
| Energieeffizienzklasse | A+ |
6,0
kWh/(m²*a)
Energieeffizienzklasse A+
- A+
- A
- B
- C
- D
- E
- F
- G
- H
- 0
- 25
- 50
- 75
- 100
- 125
- 150
- 175
- 200
- 225
- >250
Beschreibung des Objekts
Ausstattung
- Holz-Massivbauweise
- Plusenergiehaus / KFW40 plus
- Einliegerwohnung
- offener Koch- und Essbereich im Erdgeschoss mit großer Panoramafront über drei Wohnebenen, Steg im Obergeschoss
- hochwertige Einbauküche mit Markengeräten und eine weitere Einbauküche in der Einliegerwohnung
- fantastische Fensterfront über drei Wohnebenen mit atemberaubenden Ausblick
- Wohnzimmer mit Kombiofen (7kW Nennleistung) mit Eckscheibe und integrierter Sitzbank, heizt über offene Galerie alle Wohnräume
- Obergeschoss mit Elternschlafzimmer, begehbare Ankleide und zwei Kinderzimmer mit offener Galerie
- Hauptbadezimmer mit Badewanne, Doppelwaschtisch mit Einbauten, bodentiefer Dusche und WC
- großer Kellerraum mit ca. 34 m²
- Heizungskeller bzw. Hauswirtschaftsraum zum Waschen und Trocknen
- Abstell- bzw. Lagerraum
- Fußbodenheizung in allen Wohn- und Schlafräumen sowie im Hauswirtschaftsraum und großem Kellerraum
- nachhaltige Luft-Wärmepumpe mit kontrollierter Wohnraumlüftung mit Wärmerückgewinnung, Enthalpiewärmetauscher und Sommerbypass
- E3DC Hauskraftwerk mit einer 9,9 kWp Photovoltaikanlage, 13,8 kWh Batteriespeicher, Notstromschalter (Inselbetrieb) für hohe Autarkie
- Verschiedene Bodenbeläge (u.a. Fliesen und Parkett)
- 3-fach verglaste Fenster mit Fliegengittern
- Verschattung über elektrische Rollläden und Raffstores
- Holztreppe mit Wangen und Setzstufen in Fichte, Stufen und Handlauf in massiver Eiche, Geländer mit Edelstahl- bzw. Glasfüllung
- Saunavorbereitung
- Enthärtungsanlage
- Medienverkabelung im gesamten Haus
- Glasfaseranschluss
- SAT-TV
- große, gedämmte Doppelgarage mit elektrischem Sektionaltor und E-Ladestation 11 kWh, erweiterbar auf 22 kWh, Umschaltung auf reinen Solarstrom möglich, Registrierung bis zu 5 Fahrzeuge, Laden 1- und 3-phasig
- drei Terrassen, optionale Erweiterung Wintergarten möglich
- Gartenzisterne mit Hauswasserwerk und separatem Gartenwasseranschluss
Lage
Eiselfing ist eine kleine, ländlich geprägte Gemeinde im oberbayerischen Landkreis Rosenheim, die sich durch eine gute Anbindung an größere Städte wie Wasserburg am Inn und Rosenheim auszeichnet.
Über einen Fußweg erreichen Sie die schöne Stadt Wasserburg am Inn in ca. 20 Minuten und mit dem Auto sind Sie bereits nach 5 Minuten vor Ort.
Die Umgebung bietet eine Mischung aus Wohngebieten, landwirtschaftlich genutzten Flächen und Natur.
Alle Einkaufsmöglichkeiten für den täglichen Bedarf sind in der nahen Umgebung vorhanden.
Infrastruktur: Die medizinische Versorgung ist mit Facharztpraxen gut abgedeckt , zum nächstliegenden Krankenhaus (Klinik Wasserburg) haben Sie nur ca. 12 Fahrminuten. Geschäfte des täglichen Bedarfs sind vor Ort. Hierzu gehören unter anderem eine Apotheke, Supermärkte, Tankstellen, Bäckereien und Restaurants. Im naheliegenden Wasserburg findet jeden Donnerstag und Samstag ein Wochenmarkt statt. In den umliegenden Weilern gibt es auch diverse Hofläden mit Direktvermarktung.
Kindergärten/Schulen: In Eiselfing gibt es zwei Kindergärten. Neben der katholischen Einrichtung Sankt Rupert existiert auch eine Waldgruppe unter freier Trägerschaft. Die nächste Grundschule mit angehängter Mittelschule befindet sich direkt in Eiselfing und ist über den Naturlehrpfad zu Fuß erreichbar (wenige hundert Meter). Weiterführende Schulen befinden Sie auch hier, der Ort Wasserburg verfügt über ein ideales Schulsystem von Grundschule bis zur Fachoberschule (FOS/BOS).
Verkehrsanbindung: Die Gemeinde verfügt über eine sehr gute Verkehrsanbindung. Eiselfing liegt etwa 3 km südlich der Bundesstraße 304, die über Ebersberg (26km) in die rund 60 km entfernte Landeshauptstadt München sowie in Gegenrichtung über Obing (15 km) nach Traunstein (40 km) verläuft. Sie erreichen aber auch in nur 27 km Waldkraiburg und Rosenheim. Eiselfing ist durch drei Buslinien an den Regionalverkehr Oberbayern angebunden und einen Bahnanschluss nach München haben Sie von Wasserburg-Bahnhof oder Bad Endorf. Beide Bahnhöfe sind nur ca. 15 Minuten entfernt. Der Bahnhof in Wasserburg verfügt über einen sehr gut ausgebauten Bahnanschluss nach München, Rosenheim und Mühldorf.
Natur und Freizeit: Der Ort besitzt aufgrund seiner großartigen Lage einen hohen Freizeitwert. Neben dem Turn- und Sportverein gibt es noch viele weitere Vereine, wie den Theaterverein, Frauenbund, Freiwillige Feuerwehr, Reit- und Fahrverein uvm. – hier ist für jeden etwas dabei. Auch das Umland hat einiges an Naherholung / Freizeitgestaltung zu bieten. Sie erreichen den Chiemsee mit dem Auto in nur 25 km und im näheren Umkreis liegen die Alpen, die zum Skifahren, Wandern, Mountainbiken einladen.
Grundriss
Grundriss Erdgeschoss
>
>
Grundriss Obergeschoss
>
>
Grundriss Dachgeschoss
>
>
Grundriss Kellergeschoss
>
>
Adresse
83549 Eiselfing
Interessante Orte
Preis- und Lageinformationen
Preistrend für Bestandsimmobilien in Eiselfing