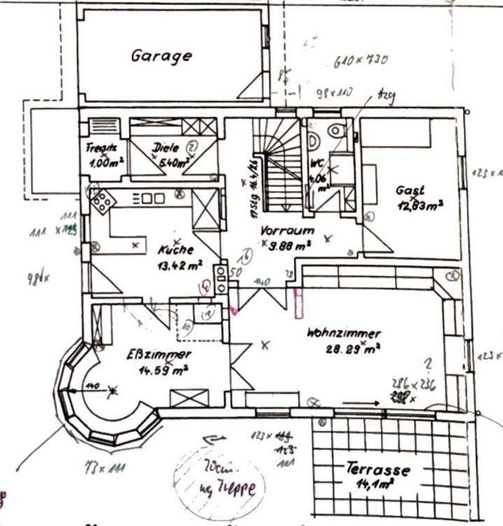
Das großzügige Einfamilienhaus ist nach Vereinbarung ab sofort bezugsfrei und überzeugt bereits im Erdgeschoss mit einer barrierefreien und komfortablen Raumgestaltung. Ein modernes, behindertengerechtes Badezimmer mit rollstuhlgerechter Dusche und Haltegriffen sorgt für besonderen Komfort. Alle Räume – einschließlich des Schlaf- bzw. Gästezimmers – sind ohne Hindernisse zugänglich. Der weitläufige Wohnbereich mit bodentiefen Türen bietet einen direkten Zugang zur Terrasse und schafft ein lichtdurchflutetes Ambiente. Der offene Übergang zum Esszimmer im Erker sorgt zusätzlich für Großzügigkeit und Wohnqualität, während der gemütliche Kachelofen das Wohnerlebnis harmonisch abrundet. Über Wohn- und Küchenbereich gelangt man jeweils auf die Terrasse, die ideal für entspannte Stunden im Freien ist.
Im Obergeschoss erwarten Sie drei gut geschnittene Schlafzimmer – zwei Kinderzimmer sowie ein Elternschlafzimmer mit direktem Zugang zum Ankleidezimmer und zum angrenzenden Badezimmer. Das Hauptbad befindet sich aktuell noch im Ausbau und wird in Kürze modern mit einer bodengleichen Dusche und Badewanne fertiggestellt. Zusätzlich steht im Obergeschoss ein weiteres Bad mit Dusche zur Verfügung. Abgerundet wird dieser Bereich durch zusätzlichen Stauraum im Speicher, der vielseitige Nutzungsmöglichkeiten bietet.
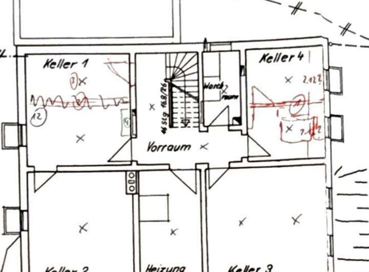
Im Kellergeschoss überzeugt das Haus mit einem hohen Nutzwert: Große Fenster und eine Fußbodenheizung schaffen hier helle und angenehme Räume, sodass sogar ein weiteres Schlafzimmer realisierbar wäre. Ein Hobbyraum, ein gemütlicher Partykeller sowie eine praktische Waschküche runden das Platzangebot ab und bieten vielfältige Nutzungsmöglichkeiten für Freizeit und Alltag.
MUTZHAS - Wohnen im Grünen - Nach Vereinbarung sofort bezugsfrei!
85653 Aying
Die vollständige Adresse der Immobilie erhalten Sie vom Anbieter.
Auf Karte anzeigen
Die vollständige Adresse der Immobilie erhalten Sie vom Anbieter.
Infos
| Haustyp | Einfamilienhaus |
|---|---|
| Etagenzahl | 3 |
| Wohnfläche ca. | 205 m2 |
| Nutzfläche | 85,61 m2 |
| Grundstücksfläche | 568 m2 |
| Bezugsfrei ab | 2.12.2025 |
| Zimmer | 6 |
| Schlafzimmer | 4 |
| Badezimmer | 3 |
| Garage/Stellplatz | Garage |
| Anzahl Garage/Stellplatz | 1 |
Kosten
| Kaltmiete |
3.800 € |
|---|---|
| Nebenkosten | + 130 € |
| Heizkosten | + 320 € |
| Gesamtmiete | 4.250 € (zzgl. Heizkosten) |
| Kaution o. Genossenschaftsanteile | 11.400,00 |
Weiter mieten oder doch kaufen?
Wer in Miete wohnt, überweist dem Vermieter im Laufe der Jahre hohe Summen, die sich
auch in die eigenen vier Wände investieren lassen könnten.
Bausubstanz & Energieausweis
| Baujahr | 1997 |
|---|---|
| Qualität der Austattung | Normal |
| Heizungsart | Fußbodenheizung |
| Wesentliche Energieträger | Gas |
| Energieausweis | liegt vor |
| Energieausweistyp | Verbrauchsausweis |
| Energieverbrauchskennwert | 85,3 kWh/(m²*a) |
| Energieeffizienzklasse | C |
85,3
kWh/(m²*a)
Energieeffizienzklasse C
- A+
- A
- B
- C
- D
- E
- F
- G
- H
- 0
- 25
- 50
- 75
- 100
- 125
- 150
- 175
- 200
- 225
- >250
Beschreibung des Objekts
Ausstattung
* Ein barrierefreies Badezimmer mit rollstuhlgerechter Dusche und Haltegriffen.
* Alle Räume im Erdgeschoss – inklusive des Schlaf- bzw. Gästezimmers – sind barrierefrei erreichbar.
* Der großzügige Wohnbereich verfügt über bodentiefe Türen, die einen direkten Zugang zur Terrasse ermöglichen.
* Offener Durchgang zum Esszimmer im Erker, wodurch ein heller und freundlicher Wohnbereich entsteht.
* Zwei Terrassenzugänge im Erdgeschoss
* Das Badezimmer im Obergeschoss befindet sich aktuell noch im Ausbau und wird in Kürze fertiggestellt. Es erhält eine moderne Ausstattung mit bodengleicher Dusche und Badewanne.
* Das Hauptschlafzimmer verfügt über einen separaten Zugang sowohl zum Ankleidezimmer als auch direkt zum Badezimmer.
* Drei Schlafzimmer im Obergeschoss
* Ein Badezimmer mit Dusche und Badewanne, sowie ein weiteres Badezimmer mit einer Dusche.
* Der Keller ist dank großer Fenster und Fußbodenheizung hervorragend nutzbar – auch ein weiteres Schlafzimmer wäre hier denkbar.
* Die Visualisierungen entsprechen nicht immer der genauen Bauausführung
Lage
Großhelfendorf, im südöstlichen Münchner Umland gelegen, vereint auf einzigartige Weise ländliche Idylle mit hervorragender Anbindung. Die Lage bietet die perfekte Balance für alle, die dem Großstadtrummel entfliehen möchten, ohne auf die Vorzüge einer erstklassigen Infrastruktur verzichten zu wollen.
Einer der größten Vorteile ist die schnelle und bequeme Anbindung an die bayerische Hauptstadt. Über die S-Bahn-Linie S5 erreichen Sie fußläufig in ca. 15 Minuten, das Münchner Stadtzentrum erreichen Sie mit der Bahn in ca. 45 Minuten. Dies macht Großhelfendorf zu einem idealen Wohnort für Pendler. Auch mit dem Auto ist die Infrastruktur dank der Nähe zur Autobahn A8 optimal. Über die Anschlussstellen sind sowohl München als auch die Region in Kürze erreichbar.
Die Nähe zu den bayerischen Alpen ist ein besonderes Highlight. Die Münchner Hausberge wie der Wendelstein, der Tegernsee oder das Mangfallgebirge sind für spontane Tagesausflüge oder Wochenend-Touren schnell zugänglich. Ob Wandern, Skifahren oder Bergsteigen – die Naturerlebnisse sind nur einen Katzensprung entfernt.
Auch direkt vor der Haustür bietet Großhelfendorf und seine Umgebung zahlreiche Möglichkeiten zur aktiven Freizeitgestaltung und Erholung. Der umliegende Hofoldinger Forst lädt zu ausgedehnten Spaziergängen, Joggingrunden oder Radtouren ein. Hier finden Sie Ruhe und Entspannung inmitten der Natur. Die Region ist durchzogen von malerischen Rad- und Wanderwegen, wie dem Mangfall Radweg. Für Familien ist die Nähe zu Attraktionen wie dem BergTierPark Blindham oder der Jochen Schweizer Arena (bei Taufkirchen) ein Pluspunkt. Lokale Tradition und Geselligkeit erleben Sie in den nahegelegenen Gasthäusern und Biergärten der Gemeinde Aying, deren Braukultur überregional bekannt ist.
Sonstige Angaben
Alle Angaben ca., freibleibend und ohne Gewähr. Irrtum, Änderungen und Zwischenverkauf / Zwischenvermietung bleiben vorbehalten.
Dieses Angebot ist für den Mieter provisionsfrei.
Sie haben das Recht, binnen vierzehn Tagen ohne Angabe von Gründen diesen Vertrag zu widerrufen. Um Ihr Widerrufsrecht auszuüben, genügt eine schriftliche Erklärung an Mutzhas Immobilien GmbH & Co. KG, Konradinstraße 5, 81543 München, eMail: info@mutzhas-immobilien.de. Haben Sie verlangt, dass die Dienstleistungen während der Widerrufsfrist beginnen sollen, so haben Sie uns einen angemessenen Betrag zu zahlen, der dem Anteil der bis zu dem Zeitpunkt, zu dem Sie uns von der Ausübung des Widerrufsrechts hinsichtlich dieses Vertrags unterrichten, bereits erbrachten Dienstleistungen im Vergleich zum Gesamtumfang der im Vertrag vorgesehenen Dienstleistungen entspricht. Ihr Widerrufsrecht erlischt vorzeitig, wenn wir auf Ihren ausdrücklichen Wunsch hin tätig geworden sind und der Vertrag vollständig erfüllt ist, bevor Sie Ihr Widerrufsrecht ausgeübt haben. Verpflichtungen zur Erstattung von Zahlungen müssen innerhalb von 30 Tagen erfüllt werden.
Die Frist beginnt für Sie mit der Absendung Ihrer Widerrufserklärung, für uns mit deren Empfang.
Angaben laut TMG: Michael Mutzhas, Mutzhas Immobilien GmbH & Co. KG, Konradinstraße 5, 81543 München, USt-Nr.: 143/550/70760, USt-IdNr.: DE313108605.
Gewerbeerlaubnis gemäß § 34c GewO erteilt durch: Kreisverwaltungsreferat München, Ruppertstr. 19, 80466 München. Aufsichtsbehörde gemäß § 34c GewO: Kreisverwaltungsreferat München, Ruppertstr. 19, 80466 München
Online-Streitbeilegung: http://ec.europa.eu/consumers/odr/.
https://www.immobilienscout24.de/anbieten/gewerbliche-anbieter/tipps/aktuelle-themen/widerrufsbelehrung.htmlAlle Angaben ca., freibleibend und ohne Gewähr. Irrtum, Änderungen und Zwischenverkauf / Zwischenvermiet
Grundriss
Obergeschoss
>
>
Erdgeschoss
>
>
Keller
>
>
Adresse
85653 Aying
Interessante Orte
Preis- und Lageinformationen
Preistrend für Bestandsimmobilien in Aying