Wohnen auf Zeit in Mammendorf:
Dieses hochwertig ausgestattete und modernisierte Einfamilienhaus liegt in ruhiger Wohnlage und bietet auf ca. 272 m² ein großzügiges Wohnambiente. Der helle Wohn- und Essbereich mit Kaminofen öffnet sich zu zwei sonnigen Terrassen mit Südwest-Ausrichtung. Der pflegeleicht angelegte Garten schafft ein angenehm naturnahes Umfeld. Eine beheizbare Doppelgarage mit zusätzlichem Stauraum gehört ebenfalls zum Haus.
Die moderne Einbauküche ist im Mietumfang enthalten. Insgesamt stehen neun flexibel nutzbare Zimmer zur Verfügung – ideal für Familien, Paare mit höherem Platzbedarf, Homeoffice oder Firmenmieter. Ein schallgedämmter Raum ermöglicht ruhiges Arbeiten; das ausgebaute Dachgeschoss und der isolierte Spitzboden bieten zusätzliche Nutzflächen.
Zwei Balkone im Obergeschoss eröffnen einen schönen Blick ins Grüne. Im Untergeschoss stehen ein privater Saunabereich, ein Weinkeller sowie mehrere wohnlich nutzbare Räume bereit. Ein separater Zugang ermöglicht zudem die Option einer Einliegerlösung.
Das Haus wird teilmöbliert vermietet.
Im Mietumfang enthalten sind:
– fest eingebaute Ausstattungen (Einbauküche, Sauna, Einbauten)
– zusätzlich frei stehende Möbelstücke, die Bestandteil der Vermietung sind
Aufgrund eines beabsichtigten Verkaufs der Immobilie erfolgt die Vermietung zeitlich befristet. Die Vertragskonditionen werden individuell abgestimmt. Ideal für Mieter, die ein großzügiges, hochwertiges und sofort bezugsfertiges Zuhause auf Zeit schätzen.
Einfamilienhaus mit großzügiger Wohnfläche, Sauna und Garten – Vermietung auf Zeit
82291 Mammendorf
Die vollständige Adresse der Immobilie erhalten Sie vom Anbieter.
Auf Karte anzeigen
Die vollständige Adresse der Immobilie erhalten Sie vom Anbieter.
Infos
| Etagenzahl | 3 |
|---|---|
| Wohnfläche ca. | 272 m2 |
| Nutzfläche | 127 m2 |
| Grundstücksfläche | 585 m2 |
| Zimmer | 9 |
| Schlafzimmer | 5 |
| Badezimmer | 3 |
| Garage/Stellplatz | Garage |
Kosten
| Kaltmiete |
3.490 € |
|---|---|
| Nebenkosten | + 330 € |
| Heizkosten | in Nebenkosten enthalten |
| Gesamtmiete | 3.820 € |
| Kaution o. Genossenschaftsanteile | 7980,00 |
Weiter mieten oder doch kaufen?
Wer in Miete wohnt, überweist dem Vermieter im Laufe der Jahre hohe Summen, die sich
auch in die eigenen vier Wände investieren lassen könnten.
Bausubstanz & Energieausweis
| Baujahr | 2002 |
|---|---|
| Objektzustand | Modernisiert |
| Qualität der Austattung | Gehoben |
| Heizungsart | Fußbodenheizung |
| Wesentliche Energieträger | Gas |
| Energieausweis | liegt vor |
| Energieausweistyp | Bedarfsausweis |
| Energieverbrauchskennwert | 87,0 kWh/(m²*a) |
| Energieeffizienzklasse | C |
87,0
kWh/(m²*a)
Energieeffizienzklasse C
- A+
- A
- B
- C
- D
- E
- F
- G
- H
- 0
- 25
- 50
- 75
- 100
- 125
- 150
- 175
- 200
- 225
- >250
Beschreibung des Objekts
Ausstattung
- offener Wohn- und Essbereich mit Kamin
- Einbauküche mit Markengeräten (im Kaufpreis enthalten)
- zwei modernisierte Bäder im Obergeschoss
- zusätzlich ein Bad im Untergeschoss und ein Gäste-WC
- zwei Balkone mit Blick ins Grüne
- Sauna im Untergeschoss
- Weinkeller, Technikraum, Waschraum mit Waschmaschine und Trockner
- Fußbodenheizung im Erdgeschoss; Heizkörper in den oberen Etagen
- Hochwertige Bodenbeläge: Granit im Erdgeschoss, Eichenparkett im Obergeschoss,
neue Bodenbeläge im Untergeschoss
- Ausbaureserve im isolierten Spitzboden
- separater Zugang für potenzielle Einliegerwohnung
- Gartenhaus
- Carport mit Glasdach
- beheizbare Doppelgarage
- Solaranlage zur Warmwasserbereitung
- Entkalkungsanlage vorhanden
Modernisierungen:
- 2016–2021: Renovierung der Bäder, neue Bodenbeläge, neue Terrasse, neue Einfahrt
- 2023: Markise, neue Beleuchtung, Renovierung des Büros
- 2025: Sanierung des Untergeschosses, neue Schmutzwasserpumpe, zusätzliche Abdichtung
Lage
Die Immobilie befindet sich in einem gewachsenen Wohngebiet am Ortsrand von Mammendorf. Die ruhige Sackgassenlage in einer Spielstraße bietet ein sicheres Umfeld mit guter Anbindung an die örtliche Infrastruktur.
Das Zentrum von Mammendorf sowie Einkaufsmöglichkeiten, Schulen, Kindergärten und der Bahnhof sind bequem erreichbar. Die Anbindung an den öffentlichen Nahverkehr (S-Bahn & Regionalbahn) ermöglicht eine gute Erreichbarkeit der Städte München und Augsburg.
Auch die Anbindung mit dem Pkw ist durch die Nähe zur B2, B471 und zur Autobahn A8 sehr gut. Freizeitmöglichkeiten bieten sich in der direkten Umgebung durch Sportanlagen, ein Freibad, kleinere Badeseen und ausgedehnte Rad- und Wanderwege.
Sonstige Angaben
Um eine schnelle Bearbeitung zu gewährleisten, übermitteln Sie uns bitte Ihre vollständigen Kontaktdaten mit Telefon-Nr. und E-Mail-Adresse.
Gerne vereinbaren wir einen Besichtigungstermin mit Ihnen und freuen uns über Ihre Kontaktaufnahme.
Wir vermitteln - mit Sicherheit.
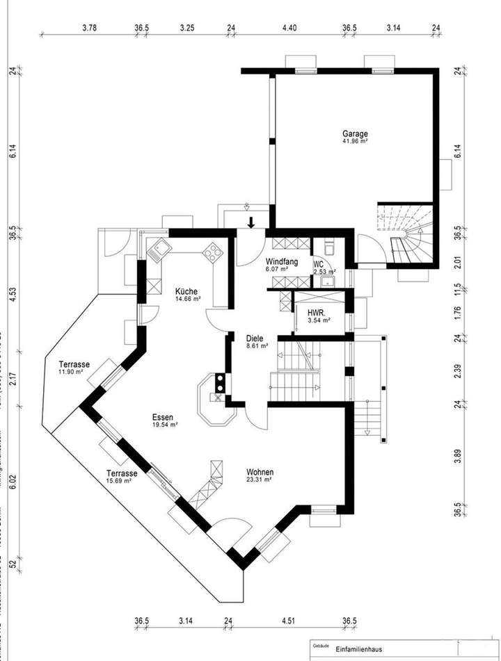
Grundriss
Erdgeschoss
>
>
Obergeschoss
>
>
Untergeschoss
>
>
ImmoScout24 Gold Partner
>
>
Top 10 Immobilienpreis
>
>
Immowelt Platin Partner
>
>
Adresse
82291 Mammendorf
Interessante Orte
Preis- und Lageinformationen
Preistrend für Bestandsimmobilien in Mammendorf