Dieses moderne Einfamilienhaus liegt in einer ruhigen Wohngegend und besticht durch eine intelligente Raumaufteilung, die Funktionalität und Wohnkomfort auf allen Ebenen vereint.
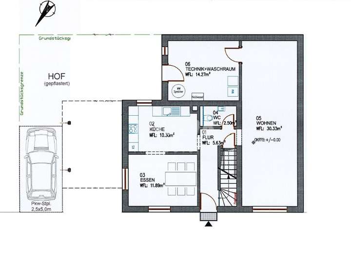
Im Erdgeschoss erwartet Sie ein großzügiges Wohnzimmer, das zum Verweilen einlädt. Der Essbereich ist angrenzend zur Küche gestaltet und schafft eine helle, kommunikative Wohnatmosphäre. Im Eingangsbereich befindet sich ein Gäste-WC.
Das Obergeschoss bietet zwei gut geschnittene Schlafzimmer, wobei eines den direkten Zugang zu einem großzügigen Balkon bietet – perfekt für entspannte Stunden im Freien. Das moderne Tageslichtbad ist mit Dusche, Badewanne und zwei Waschbecken komfortabel ausgestattet.
Abgerundet wird das Raumangebot durch einen ausgebauten Dachboden sowie einen Kellerraum im Untergeschoss, die zusätzlichen Stauraum bieten. Ein Stellplatz für einen PKW befindet sich im gepflasterten Hof neben dem Haus.
Stilvolles Einfamilienhaus auf dem Land
88483 Burgrieden
Die vollständige Adresse der Immobilie erhalten Sie vom Anbieter.
Auf Karte anzeigen
Die vollständige Adresse der Immobilie erhalten Sie vom Anbieter.
Infos
| Haustyp | Einfamilienhaus |
|---|---|
| Wohnfläche ca. | 144 m2 |
| Nutzfläche | 255,2 m2 |
| Grundstücksfläche | 195 m2 |
| Bezugsfrei ab | ab sofort |
| Zimmer | 4 |
| Schlafzimmer | 2 |
| Badezimmer | 1 |
| Haustiere | Nach Vereinbarung |
Kosten
| Kaltmiete |
1.390 € |
|---|---|
| Nebenkosten | + 150 € |
| Heizkosten | keine Angabe |
| Gesamtmiete | 1.540 € (zzgl. Heizkosten) |
| Kaution o. Genossenschaftsanteile | 2.780,00 |
Weiter mieten oder doch kaufen?
Wer in Miete wohnt, überweist dem Vermieter im Laufe der Jahre hohe Summen, die sich
auch in die eigenen vier Wände investieren lassen könnten.
Bausubstanz & Energieausweis
| Baujahr | 1956 |
|---|---|
| Objektzustand | Gepflegt |
| Heizungsart | Gas-Heizung |
| Wesentliche Energieträger | Flüssiggas |
| Energieausweis | liegt vor |
| Energieausweistyp | Bedarfsausweis |
| Energieverbrauchskennwert | 204,2 kWh/(m²*a) |
| Energieeffizienzklasse | G |
204,2
kWh/(m²*a)
Energieeffizienzklasse G
- A+
- A
- B
- C
- D
- E
- F
- G
- H
- 0
- 25
- 50
- 75
- 100
- 125
- 150
- 175
- 200
- 225
- >250
Beschreibung des Objekts
Ausstattung
Einfamilienhaus mit ca. 144 m² Wohnfläche
- pflegeleichter Vinylboden in Holzoptik in allen Wohnräumen
- separates Wohn- und Esszimmer
- Gäste-WC im Eingangsbereich
- zwei Schlafzimmer im Obergeschoss
- Tageslichtbadezimmer mit Dusche, Wanne, Doppelwaschbecken und WC
- Balkon (von einem Schlafzimmer aus zugänglich)
- Außenstellplatz im Hof
- Kellerraum
- Waschmaschinenanschluss im Technikraum im Erdgeschoss
- € 150,00 Nebenkostenvorauszahlung für Grundsteuer, Gebäudeversicherung und Schornsteinfeger
Die übrigen Nebenkosten (Wasser, Heizung, Strom, etc.) werden mit den jeweiligen Versorgern direkt über den Mieter abgerechnet
Lage
Das Haus befindet sich im ruhigen Ortsteil Bühl der Gemeinde Burgrieden im Landkreis Biberach. Die nächstgelegene Stadt, Laupheim, ist nur ca. 5 km entfernt. Bühl bietet eine ländliche Wohnlage mit guter Grundversorgung: Einkaufsmöglichkeiten, Bäckereien, Arztpraxen und Dienstleister sind in kurzer Entfernung erreichbar. Eine Busverbindung (z. B. Linie 240) verknüpft Bühl mit den Nachbarorten und dem Zentrum von Burgrieden. Dank der Nähe zur B30 ist eine schnelle Anbindung nach Ulm und Biberach gegeben – ideal auch für Pendler.
Die grüne Umgebung lädt zu Spaziergängen und Freizeitaktivitäten ein. Gleichzeitig bietet das Dorfleben ein aktives Miteinander durch Vereine und lokale Gemeinschaft.
Kindergärten und Grundschulen befinden sich in Burgrieden und Rot, weiterführende Schulen sind in Laupheim gut erreichbar.
Sonstige Angaben
Immobilienkauf und -verkauf sind Vertrauenssache!
Vertrauen daher auch Sie auf über 35 Jahre Erfahrung, weit über 6.000 zufriedene Käufer und Verkäufer sowie über 1.000 errichtete Neubauimmobilien in der Region Ulm/Neu-Ulm.
Sie möchten als einer der ersten von unseren neuen Angeboten erfahren? Dann folgen Sie uns bei Facebook und Instagram.
https://www.instagram.com/munk.immobilien/
https://www.facebook.com/MunkImmobilien/
Unser erfolgreiches Team erfahrener Immobilienspezialisten unterstützt Sie dabei in allen Immobilienfragen – ganz gleich, ob es sich um Immobilien aus zweiter Hand, Neubauprojekte oder Gewerbeimmobilien handelt.
Um Ihre Anfrage möglichst schnell bearbeiten zu können, bitten wir Sie im Kontaktformular Ihre Daten möglichst vollständig, inklusive Ihrer Adresse und Telefonnummer, anzugeben. Bitte haben Sie Verständnis dafür, dass wir ohne diese Daten keine Auskünfte erteilen bzw. weitere Unterlagen zusenden können. Herzlichen Dank!
Weitere Dokumente
EnergieausweisGrundriss
Grundriss EG
>
>
Grundriss OG
>
>
Grundriss UG
>
>
Adresse
88483 Burgrieden
Interessante Orte
Preis- und Lageinformationen
Preistrend für Bestandsimmobilien in Burgrieden