Attraktiv gelegenes Neubauquartier auf der ehemaligen Lagarde-Kaserne. Neubau mit top Verkehrsanbindung und Einkaufsmöglichkeiten zum günstigen Mietpreis, dank einkommensorientierter Förderung (EOF)! Voraussetzung für die Anmietung der geförderten Wohnungen ist die Vorlage eines Wohnberechtigungsscheines (WBS) mit der Einkommensstufe II. Bitte bewerben Sie sich ausschließlich auf unserem Vermietungsportal: https://bayernheim.de/bamberg-lagard/
Mietinteressenten mit dem Wohnberechtigungsschein der Einkommensstufe I müssen Sie sich an die Stadt Bamberg wenden: Stadt Bamberg Amt für soziale Angelegenheiten, Soziale Wohnraumförderung Promenadestr. 2a 96047 Bamberg E-Mail: wohnraumfoerderung@stadt.bamberg.de
Infos
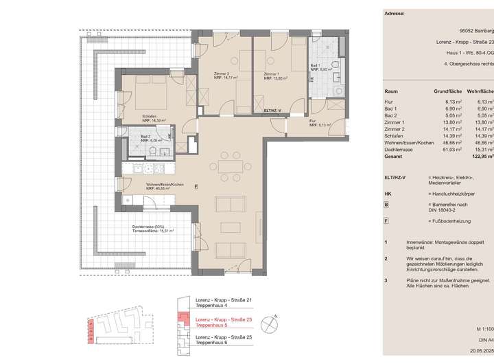
| Wohnungskategorie | Etagenwohnung |
|---|---|
| Etage | 4 von 4 |
| Wohnfläche ca. | 122 m2 |
| Bezugsfrei ab | 01.12.2026 |
| Zimmer | 4 |
| Garage/Stellplatz | Parkhaus |
Kosten
| Kaltmiete |
1.660 € |
|---|---|
| Nebenkosten | + 270 € |
| Heizkosten | + 159.84 € |
| Gesamtmiete | 2.090 € (zzgl. Heizkosten) |
| Miete für Garage/Stellplatz | 51 € |
| Kaution o. Genossenschaftsanteile | 3590 |
Weiter mieten oder doch kaufen?
Wer in Miete wohnt, überweist dem Vermieter im Laufe der Jahre hohe Summen, die sich
auch in die eigenen vier Wände investieren lassen könnten.
Bausubstanz & Energieausweis
| Baujahr | 2025 |
|---|---|
| Objektzustand | Erstbezug |
| Qualität der Austattung | Normal |
| Heizungsart | Fernwärme |
| Wesentliche Energieträger | Fernwärme |
| Energieausweis | liegt vor |
| Energieausweistyp | Bedarfsausweis |
| Energieverbrauchskennwert | 62,0 kWh/(m²*a) |
| Energieeffizienzklasse | B |
62,0
kWh/(m²*a)
Energieeffizienzklasse B
- A+
- A
- B
- C
- D
- E
- F
- G
- H
- 0
- 25
- 50
- 75
- 100
- 125
- 150
- 175
- 200
- 225
- >250
Beschreibung des Objekts
Ausstattung
Moderne Architektur, Helle und offene Grundrisse, Balkon oder Terrasse, Fußbodenbelag in Holzoptik, Fußbodenheizung, Helle, moderne Fliesen im Badezimmer/WC, Badezimmer mit Badewanne und/oder ebenerdiger Dusche, Barrierefreier Zugang und Aufzugsanlage von UG bis DG, PKW-Stellplatz (optional), Fahrradstellplätze
Lage
Das Areal der Lagarde-Kaserne befindet sich in zentraler Lage. Die Bamberger Altstadt, die Innenstadt mit Fußgängerzone sowie das Sandgebiet sind in wenigen Minuten bequem zu Fuß erreichbar. Die Anbindung an den öffentlichen Nahverkehr ist ausgezeichnet: Die Bushaltestelle „Bamberg Lagarde Kaserne“ liegt direkt vor Ort. Von dort gelangen Sie in etwa 8 Minuten zum Hauptbahnhof; zu Fuß beträgt der Weg rund 18 Minuten. Mit dem Auto erreichen Sie die nächste Auffahrt zur A73 in etwa 7 Minuten. In der unmittelbaren Umgebung ist eine sehr gute Nahversorgung gewährleistet. Einzelhandelsangebote, Kindertagesstätten, Schulen, Weiterbildungsstätten sowie ärztliche Versorgung unterschiedlicher Fachrichtungen und Einrichtungen zur Gesundheitsvorsorge sind vielfältig vorhanden. Bamberg mit seinen rund 77.150 Einwohnern liegt mitten in der Metropolregion Nürnberg und zählt zu Bayerns wichtigsten Wirtschaftsstandorten. Die UNESCO-Altstadt und rund 12.500 Studierende – etwa 16 % der Bevölkerung – verleihen der Stadt zugleich historisches Flair und junges, universitäres Leben.
Weitere Dokumente
Wohnung 80-1.2.29 4.OG (1)Adresse
Lorenz-Krapp-Straße 21-25, 96052 Bamberg
Interessante Orte
Preis- und Lageinformationen
Preistrend für Bestandsimmobilien in Ost