🛏 Exklusive 5-Zimmer-Maisonette Wohnung zur Miete:
Art der Immobilie: Großzügige Wohnung in einer neu erbauten Doppelhaushälfte zum Erstbezug. Die Maisonette Wohnung erstreckt sich über das Kellergeschoss mit Tageslicht und dem
gesamten Erdgeschoss.
📐 Grundriss & Raumaufteilung:
Wohn-/Nutzfläche (ohne Abstellraum und Eingangsbereich): ca. 131 m².
5 Zimmer (2x Wohnbereich, 2x Schlafzimmer, 1x Kinderzimmer) verteilt auf:
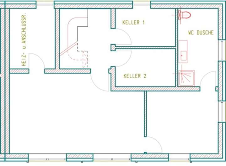
- Kellergeschoss:
o Vielseitig nutzbarer Hobbyraum mit großen Fenstern (z. B. Homeoffice, zusätzliches Wohnzimmer, weitere Anschlüsse vorhanden) 32,3 m²
o Schlafzimmer 13,9 m²
o Tageslichtbad mit bodentiefer Dusche (hochwertige Ausstattung) 9,8 m²
o Abstellraum 7,1 m²
o Zugang zum Garten
- Erdgeschoss:
o Großzügiger Wohn-/Essbereich mit offener Küche (Anschlüsse
vorbereitet, keine Küche verbaut) 31,9 m²
o Küchen Nische 9,5 m²
o Schlafzimmer 16,1 m²
o Kinderzimmer / Büro 12 m²
o Tageslichtbad mit bodentiefer Dusche (hochwertige Ausstattung) 5,7 m²
o Eingangsbereich mit Garderobe 6,1 m²
🌟 Besonderheiten – Exklusiver Baustil nach KfW-40-Standard
Diese Immobilie wurde mit höchsten Ansprüchen an Qualität, Energieeffizienz und Wohnkomfort erbaut. Sie entspricht dem KfW-Effizienzhaus 40 Standard, was bedeutet:
- Extrem niedriger Energiebedarf: Das Haus benötigt nur 40 % der Energie eines gesetzlich vorgeschriebenen Neubaus (Referenzgebäude nach GEG).
- Hohe Dämmqualität: Exzellente Wärmedämmung von Fassade, Dach und Bodenplatte.
- Zukunftssicher: Geringe Heizkosten, CO₂-arm, BIO-Baustoffe zur Errichtung des Hauses.
- Schallentkoppelte Treppen und Fußböden: Für einen besonderen und ruhigen Wohnkomfort
Exklusive 5-Zimmer Wohnung zum Erstbezug in einer Neubau DHH im KfW 40 Standard
86567 Hilgertshausen-Tandern
Die vollständige Adresse der Immobilie erhalten Sie vom Anbieter.
Auf Karte anzeigen
Die vollständige Adresse der Immobilie erhalten Sie vom Anbieter.
Infos
| Haustyp | Doppelhaushaelfte |
|---|---|
| Etagenzahl | 2 |
| Wohnfläche ca. | 131 m2 |
| Nutzfläche | 145 m2 |
| Grundstücksfläche | 393 m2 |
| Bezugsfrei ab | 1.2.2026 |
| Zimmer | 5 |
| Schlafzimmer | 2 |
| Badezimmer | 2 |
| Haustiere | Nach Vereinbarung |
| Garage/Stellplatz | Außenstellplatz |
| Anzahl Garage/Stellplatz | 2 |
Kosten
| Kaltmiete |
1.800 € |
|---|---|
| Nebenkosten | + 190 € |
| Heizkosten | in Nebenkosten enthalten |
| Gesamtmiete | 1.990 € |
| Kaution o. Genossenschaftsanteile | 5.400,00 |
Weiter mieten oder doch kaufen?
Wer in Miete wohnt, überweist dem Vermieter im Laufe der Jahre hohe Summen, die sich
auch in die eigenen vier Wände investieren lassen könnten.
Bausubstanz & Energieausweis
| Baujahr | 2026 |
|---|---|
| Objektzustand | Erstbezug |
| Qualität der Austattung | Gehoben |
| Heizungsart | Wärmepumpe |
| Wesentliche Energieträger | Strom |
| Energieausweis | liegt vor |
| Energieausweistyp | Bedarfsausweis |
| Energieverbrauchskennwert | 4,7 kWh/(m²*a) |
| Energieeffizienzklasse | A+ |
4,7
kWh/(m²*a)
Energieeffizienzklasse A+
- A+
- A
- B
- C
- D
- E
- F
- G
- H
- 0
- 25
- 50
- 75
- 100
- 125
- 150
- 175
- 200
- 225
- >250
Beschreibung des Objekts
Ausstattung
- Effiziente Luft-Wasser-Wärmepumpe – für Heizung & Kühlung.
- Dezentrale Lüftungsanlage mit Wärmerückgewinnung.
- Fußbodenheizung in allen Wohnräumen.
- Echtholz-Parkett (Eiche) & Natursteinböden.
- Luxuriöse Bäder mit Tageslicht und großformatigen Fliesen.
- Wasserenthärtungsanlage.
- Garten zur gemeinsamen Nutzung.
Lage
Hilgertshausen-Tandern ist eine Gemeinde im oberbayerischen Landkreis Dachau. Die Lage bietet eine ruhige Wohnatmosphäre im ländlichen Raum, mit guter Anbindung an die umliegenden Städte und Infrastruktur. Einkaufsmöglichkeiten für den täglichen Bedarf sowie Ärzte und Schulen sind in der näheren Umgebung vorhanden. Die Natur lädt zu Freizeitaktivitäten wie Spaziergängen und Radtouren ein.
Weitere Dokumente
Energiebedarfsausweis_DHH TandSommerlicher Wärmeschutznachwe
Grundriss
Grundriss EG
>
>
Grundriss KG
>
>
Adresse
86567 Hilgertshausen-Tandern
Interessante Orte
Preis- und Lageinformationen
Preistrend für Bestandsimmobilien in Hilgertshausen-Tandern