Besichtigung des Musterhauses – jeden Mittwoch von 17:00 bis 18:00 Uhr und jeden Samstag von 14:00 bis 15:00 Uhr.
In der Von-Werth-Straße in Pulheim-Brauweiler entsteht ein neues Wohnquartier mit insgesamt 34 Doppelhaushälften in drei unterschiedlichen Varianten. Alle Häuser erstrecken sich über vier Etagen und zeichnet sich durch eine klare, moderne Architektur aus. Große Fensterflächen lassen viel Tageslicht in die Räume, während Holzfußböden eine warme Grundatmosphäre schaffen.
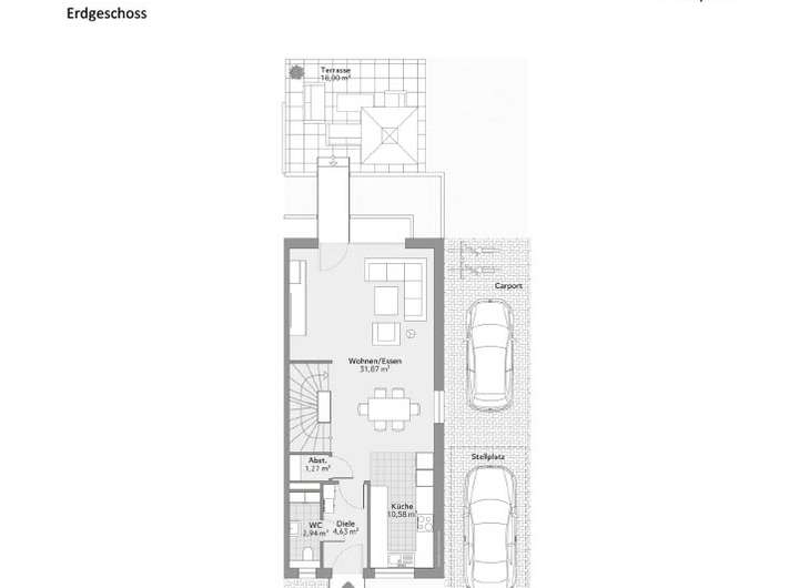
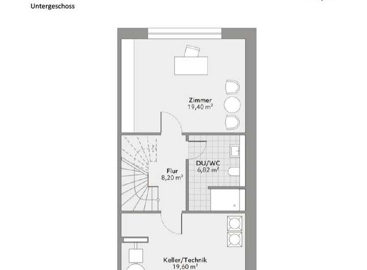
Im Erdgeschoss befinden sich Wohn- und Essbereich mit offener Küche. Bitte beachten Sie: Nur einige Häuser sind mit einer Einbauküche ausgestattet. Diese erhöhen die Kaltmiete jeweils um 70 €. Durch die großzügige Aufteilung entsteht ein fließender Übergang, der viel Platz für das tägliche Familienleben bietet. In den oberen Geschossen stehen mehrere Schlafzimmer und flexibel nutzbare Räume zur Verfügung, die sich gut als Kinderzimmer, Arbeits- oder Rückzugsbereiche einrichten lassen. Die Badezimmer sind modern ausgestattet – unter anderem mit wandhängenden Sanitärelementen, teilweise Doppelwaschtischen sowie großen Spiegeln. Ein separater Kellerraum sorgt für praktische Abläufe im Alltag.
Auch technisch erfüllen die Häuser hohe Standards. Alle Räume sind mit einer Fußbodenheizung ausgestattet, in den Badezimmern stehen zusätzlich Handtuchwärmer zur Verfügung. Die Wärmeversorgung des gesamten Quartiers erfolgt über eine zentrale Wärmepumpe. Gebaut wird nach dem KfW-40-NH-Standard. Jedes Haus erhält eine Photovoltaikanlage mit bis zu 4 kWp Leistung sowie einen Wechselrichter und eine Batterie mit ca. 5 kWh Speicherkapazität.
Kunststofffenster mit Isolierverglasung und elektrische Rollläden tragen zur Energieeffizienz und zum Wohnkomfort bei. In allen Wohnbereichen wird massives Eichenparkett als Mosaikparkett verlegt, geflieste Flächen sind entsprechend funktional gestaltet.
Damit entsteht ein zeitgemäßes Wohnumfeld, das Familien großzügigen Raum, eine klare Struktur und eine nachhaltige technische Ausstattung bietet. Weitere Informationen zu den unterschiedlichen Haustypen finden Sie auf unserer Website.
Besichtigung des Musterhauses – jeden Mittwoch 17–18 Uhr und Samstag 14–15 Uhr
Von-Werth-Straße 226 A,
50259 Pulheim
Auf Karte anzeigen
Infos
| Haustyp | Doppelhaushaelfte |
|---|---|
| Wohnfläche ca. | 184 m2 |
| Grundstücksfläche | 291 m2 |
| Bezugsfrei ab | 17.11.2025 |
| Zimmer | 5 |
| Garage/Stellplatz | Carport |
| Anzahl Garage/Stellplatz | 1 |
Kosten
| Kaltmiete |
2.410 € |
|---|---|
| Nebenkosten | + 410 € |
| Heizkosten | in Nebenkosten enthalten |
| Gesamtmiete | 2.820 € |
| Kaution o. Genossenschaftsanteile | 7.230,00 |
Weiter mieten oder doch kaufen?
Wer in Miete wohnt, überweist dem Vermieter im Laufe der Jahre hohe Summen, die sich
auch in die eigenen vier Wände investieren lassen könnten.
Bausubstanz & Energieausweis
| Baujahr | 2025 |
|---|---|
| Objektzustand | Erstbezug |
| Heizungsart | Wärmepumpe |
| Energieausweis | liegt vor |
| Energieausweistyp | Bedarfsausweis |
| Energieverbrauchskennwert | 25,2 kWh/(m²*a) |
| Energieeffizienzklasse | A+ |
25,2
kWh/(m²*a)
Energieeffizienzklasse A+
- A+
- A
- B
- C
- D
- E
- F
- G
- H
- 0
- 25
- 50
- 75
- 100
- 125
- 150
- 175
- 200
- 225
- >250
Beschreibung des Objekts
Ausstattung
• Neues Wohnquartier mit insgesamt 34 Doppelhaushälften in drei unterschiedlichen Varianten
• Vier Etagen
• Großzügiger Wohn- und Essbereich mit offener Küche
• Moderne Badezimmer mit wandhängenden Sanitärelementen, teilweise Doppelwaschtischen und großen Spiegeln
• Separater Kellerraum
• Handtuchwärmer in den Bädern
• Fußbodenheizung in allen Räumen
• Wärmeversorgung über zentrale Wärmepumpe
• Bauweise nach KfW-40-NH-Standard
• Photovoltaikanlage bis 4 kWp mit Wechselrichter und ca. 5 kWh Speicherbatterie
• Glasfaseranschluss
• Kunststofffenster mit Isolierverglasung und elektrischen Rollläden
• Eichen-Mosaikparkett in allen Wohnbereichen
• Fliesen in Funktionsräumen
• Eigener Garten mit Terrasse
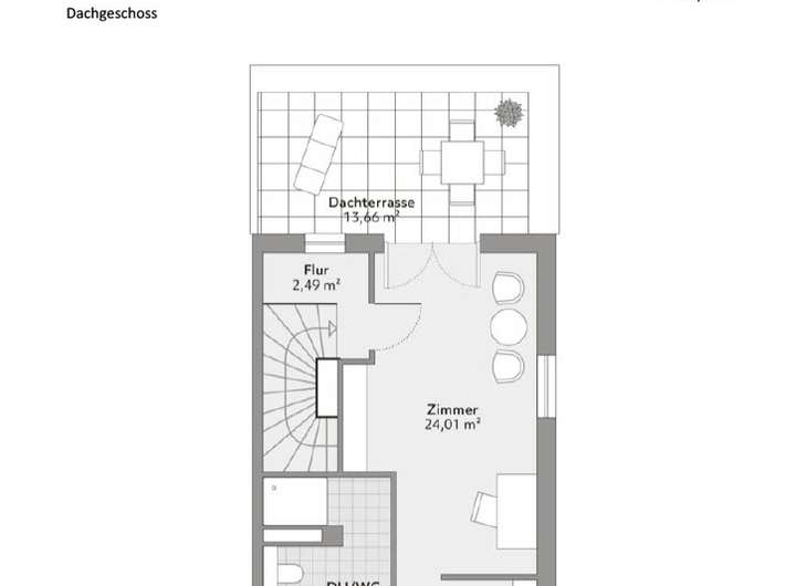
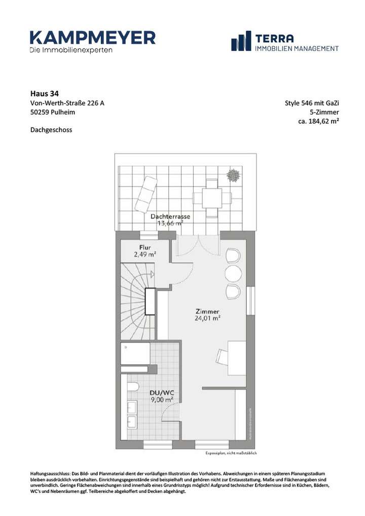
• Dachterrasse
• Carport und Außenstellplatz
Lage
Anfahrt:
Folgen Sie der Bonnstraße, ganz gleich, ob Sie aus nördlicher oder südlicher Richtung anfahren. Aus dem Norden kommend biegen Sie links in die Von-Werth-Straße ein, aus dem Süden kommend entsprechend nach rechts.
Kurz darauf nehmen Sie die erste Stichstraße auf der rechten Seite und folgen dieser wenige Meter. Parkmöglichkeiten finden Sie entlang der Straße.
Der Treffpunkt befindet sich am Ende links in der Stichstraße bei der Hausnummer 226 B.
Lage:
Pulheim-Brauweiler zählt zu den gefragten Wohnlagen unmittelbar an der Kölner Stadtgrenze. In der Von-Werth-Straße wohnen Sie in einem ruhigen, organisch gewachsenen Quartier mit überwiegend Einfamilienhäusern und viel Grün. Wer stadtnah wohnen und zugleich ein familienfreundliches Umfeld mit kurzen Wegen schätzt, findet hier ideale Bedingungen.
Für die Betreuung der Jüngsten steht ein dichtes Netz an Kindertagesstätten bereit, viele davon fußläufig oder per Rad erreichbar. Die örtlichen Grundschulen sowie das renommierte Abtei-Gymnasium Brauweiler sichern eine durchgängige schulische Versorgung; weitere weiterführende Schulen in Pulheim, Köln-Weiden und den umliegenden Stadtteilen sind gut angebunden. Musik- und Sportschulen, Vereine, Reitställe und Tennisplätze erweitern das Angebot und erleichtern die Freizeitorganisation mit Kindern und Jugendlichen.
Einkaufsmöglichkeiten sind vielfältig: Im nahen Ortskern decken Supermärkte, Bäcker, Wochenmarkt und Bio-Anbieter den täglichen Bedarf. Für größere Besorgungen, Mode und Technik bietet das Rhein-Center in Köln-Weiden sowie das Angebot im Kölner Westen eine breite Auswahl. Ärztliche Versorgung mit Haus- und Fachärzten sowie Apotheken befindet sich vor Ort; Kliniken und spezialisierte Zentren sind in Köln in kurzer Zeit erreichbar.
Besonders hervorzuheben ist die hervorragende Verkehrsanbindung: Über die nahen Autobahnen A1, A57 und A4 gelangen Sie in rund 20 Minuten nach Köln-Zentrum und in etwa 30 bis 35 Minuten nach Düsseldorf. Auch der Flughafen Köln/Bonn ist schnell erreichbar, ebenso die Rheinmetropole Düsseldorf mit ihrem internationalen Flughafen. Damit profitieren Sie von einer exzellenten Anbindung an zwei bedeutende Wirtschaftsräume, während Sie zugleich die Ruhe und Wohnqualität einer gewachsenen Gemeinde genießen
Sonstige Angaben
Die Kaution beträgt 3 Nettokaltmieten
Wir verkaufen oder vermieten auch Ihre Immobilie!
Sprechen Sie uns an 0221 / 92 16 42 - 0
Weitere Angebote finden Sie auf
www.kampmeyer.com
Grundriss
Erdgeschoss
>
>
Obergeschoss
>
>
Dachgeschoss
>
>
Kellergeschoss
>
>
Adresse
Von-Werth-Straße 226 A, 50259 Pulheim
Interessante Orte
Preis- und Lageinformationen
Preistrend für Bestandsimmobilien in Pulheim