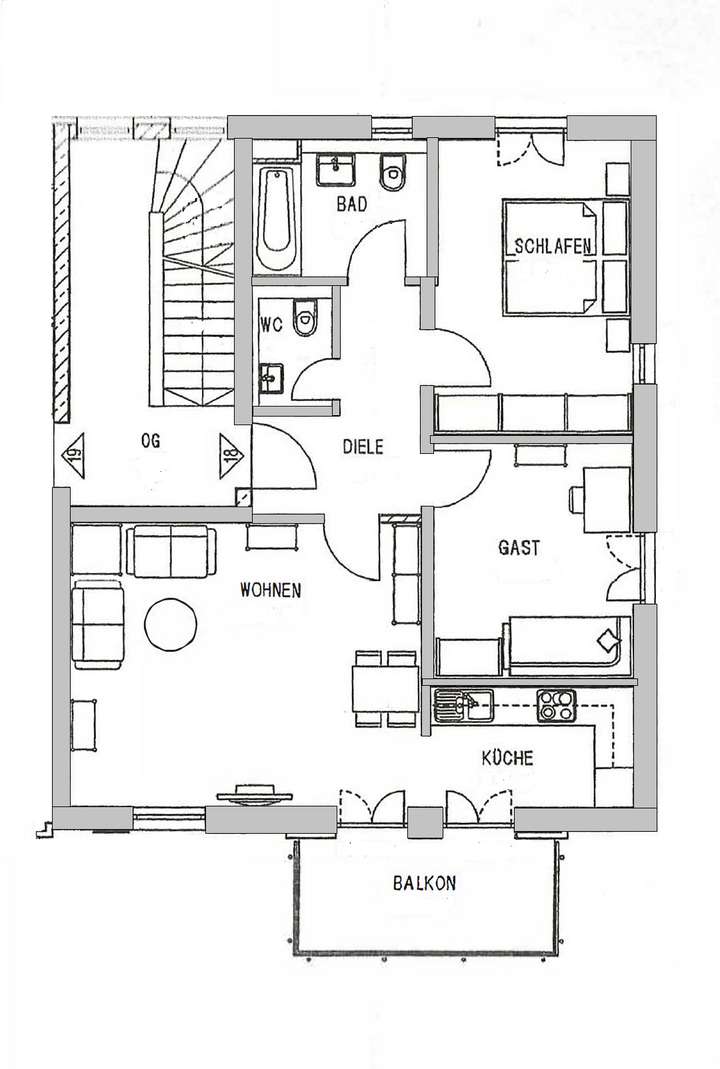
In einer ländlich ruhig geprägten Wohnanlage im Münchner Osten steht die Vermietung einer gemütlichen, gehobenen 3-Zimmer--Wohnung in einem Mehrfamilienhaus an. Die Wohnung verfügt über ein großes lichtdurchflutetes Wohnzimmer mit Essbereich, einem Schlaf- sowie Gästezimmer, Bad und separatem Gäste-WC und einem geräumigen Eingangsbereich. Vom Wohnzimmer gelangen Sie auf Ihren großangelegten Balkon und blicken in südwestlicher Richtung in die Grünanlagen. Der wunderschöne Ausblick ins Grüne lädt zum Entspannen ein. Über die Tiefgarage (kein Duplex) gelangen Sie zu Ihrer Wohnung, die sich im 1. Obergeschoss befindet. Zur Wohnung gehört ein Kellerabteil. Die Waschküche für das Aufstellen einer Waschmaschine u. Trockner befindet sich im Untergeschoss und ein Fahrradraum kann gemeinschaftlich mit den übrigen Mietern im Haus genutzt werden. Ein gepflegter Spielplatz für kleinere Kinder steht in der Wohnanlage zur Verfügung.
Neu - gemütliche, moderne 3- Zimmer-Wohnung im Münchner Osten zu vermieten.
85640 Putzbrunn
Die vollständige Adresse der Immobilie erhalten Sie vom Anbieter.
Auf Karte anzeigen
Die vollständige Adresse der Immobilie erhalten Sie vom Anbieter.
Infos
| Etage | 2 von 3 |
|---|---|
| Wohnfläche ca. | 71 m2 |
| Nutzfläche | 71 m2 |
| Bezugsfrei ab | 01.02.2026 |
| Zimmer | 3 |
| Schlafzimmer | 1 |
| Badezimmer | 1 |
| Garage/Stellplatz | Tiefgarage |
| Anzahl Garage/Stellplatz | 1 |
Kosten
| Kaltmiete |
1.300 € |
|---|---|
| Nebenkosten | + 250 € |
| Heizkosten | in Nebenkosten enthalten |
| Gesamtmiete | 1.610 € |
| Miete für Garage/Stellplatz | 60 € |
| Kaution o. Genossenschaftsanteile | 4.080,00 |
Weiter mieten oder doch kaufen?
Wer in Miete wohnt, überweist dem Vermieter im Laufe der Jahre hohe Summen, die sich
auch in die eigenen vier Wände investieren lassen könnten.
Bausubstanz & Energieausweis
| Baujahr | 2013 |
|---|---|
| Objektzustand | Neuwertig |
| Qualität der Austattung | Gehoben |
| Heizungsart | Wärmepumpe |
| Wesentliche Energieträger | Strom |
| Energieausweis | liegt vor |
| Energieausweistyp | Verbrauchsausweis |
|
Energieverbrauchskennwert
Energieverbrauch für Warmwasser enthalten |
56,0 kWh/(m²*a) |
Beschreibung des Objekts
Ausstattung
Die Wohn- und Schlafräume sind mit einem gehobenen Parkettboden ausgestattet. Das Bad erhielt moderne Fliesenbeläge und Sanitäreinrichtungen mit Handtuchheizkörper. Der Flurboden ist ebenfalls gefliest. Alle Räume verfügen über Lüftung und Fußbodenheizung, die jeweils über Raumthermostate regulierbar sind. Eine Kücheneinrichtung wird von der Vermieterin nicht zur Verfügung gestellt, sodass Sie in der Lage sind, diese nach Ihren Wünschen einzurichten. Alternativ kann die vorhandene Küche von der Vormieterin abgelöst werden.
Lage
Die Wohnung befindet sich in einem Ortsteil von Putzbrunn. Die Buslinien 211, 211W und 55 sind fußläufig erreichbar und befördern Sie z.B. in ca. 17 Minuten zur U-Bahnhaltestelle Neuperlach-Zentrum. Von dort erreichen Sie z.B. den Hauptbahnhof in ca. 15 Minuten. Die Fahrzeit zum Münchner Flughafen mittel Pkw beträgt ca. 33 Minuten.
Kinderkrippen, Kindergärten und die Grundschule sind im Ort vertreten. Weiterführende Schulen sind im Ort im Bau als auch in der Umgebung gut erreichbar.
In der Nähe finden Sie alle Einzelhandelgeschäfte für den täglichen Bedarf (Supermärkte, Getränkemarkt, DM-Markt, Tierbedarf sowie eine Tankstelle) und sind sehr schnell erreichbar.
Die idyllische Umgebung mit Waldbestand bietet für alle sportlichen Interessenten ein sehr gutes Freizeitangebot.
Sonstige Angaben
Besichtigungstermine können in Abstimmung mit dem Mieter vereinbart werden.
Die Mieterselbstauskunft finden Sie unter "Dokumente". in dieser Anzeige. Neben der Mieterselbstauskunft sind Einkommensnachweise (letzten 3 Gehaltsnachweise, BWA etc.) u. die Schufa-Auskunft vorzulegen. Bitte haben Sie Verständnis, dass wir nur vollständige Unterlagen an die Vermieterin weiterleiten.
Die Wohnung kann auch früher in Abstimmung mit der jetzigen Mieterin angemietet werden.
Weitere Dokumente
Mieterselbstauskunft_WohnungGrundriss
Grundriss
>
>
Adresse
85640 Putzbrunn
Interessante Orte
Preis- und Lageinformationen
Preistrend für Bestandsimmobilien in Putzbrunn