Diese 5-Zimmer-Wohnung liegt im Hochparterre eines charmanten Mehrfamilienhauses aus dem Jahr 1964.
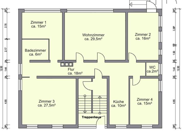
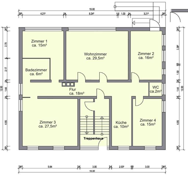
Insgesamt bietet die Wohnung eine Wohnfläche von ca. 139 m². Der Grundriss ist praktisch und gut durchdacht: Vom Flur aus erreichen Sie das geräumige Wohnzimmer, vier weitere Zimmer, die Küche, das Badezimmer sowie ein separates WC.
Die Räume sind hell und großzügig geschnitten. Die Wohnung eignet sich gut für Familien oder Paare, die viel Platz und eine klare Raumaufteilung wünschen.
5-Zimmer-Wohnung im Hochparterre in der Gartenstraße 15
Gartenstraße 15,
23795 Bad Segeberg
Auf Karte anzeigen
Infos
| Wohnungskategorie | Etagenwohnung |
|---|---|
| Etage | 0 von 3 |
| Wohnfläche ca. | 139 m2 |
| Bezugsfrei ab | nach Absprache |
| Zimmer | 4 |
Kosten
| Kaltmiete |
1.330 € |
|---|---|
| Nebenkosten | + 660 € |
| Heizkosten | in Nebenkosten enthalten |
| Gesamtmiete | 1.990 € |
| Kaution o. Genossenschaftsanteile | 3990 EUR |
Weiter mieten oder doch kaufen?
Wer in Miete wohnt, überweist dem Vermieter im Laufe der Jahre hohe Summen, die sich
auch in die eigenen vier Wände investieren lassen könnten.
Bausubstanz & Energieausweis
| Baujahr | 1964 |
|---|---|
| Objektzustand | Gepflegt |
| Heizungsart | Zentralheizung |
| Wesentliche Energieträger | Gas |
| Energieausweis | liegt vor |
| Energieausweistyp | Verbrauchsausweis |
| Energieverbrauchskennwert | 257,0 kWh/(m²*a) |
| Energieeffizienzklasse | G |
257,0
kWh/(m²*a)
Energieeffizienzklasse G
- A+
- A
- B
- C
- D
- E
- F
- G
- H
- 0
- 25
- 50
- 75
- 100
- 125
- 150
- 175
- 200
- 225
- >250
Beschreibung des Objekts
Ausstattung
Die Wohnung ist insgesamt in einem guten Zustand. Die Wände sind weiß gestrichen und die Böden bestehen überwiegend aus pflegeleichtem Laminat. In der Küche und im Bad sind Fliesen verlegt. Die Küche ist komfortabel über den Flur zu erreichen. Große Fenster sorgen für viel Tageslicht. Die Heizungsanlage und Warmwasseranlage des Hauses wurde erst 2025 erneuert.
Lage
Das Wohnhaus liegt zentral in absoluter Toplage von Bad Segeberg. Von der sehr ruhig gelegenen Gartenstraße, ist es nur einen Katzensprung in die belebte Fußgängerzone mit abwechslungsreicher Gastronomie und umfangreichen Einkaufsmöglichkeiten. So lässt sich die Kurhausstraße zu Fuß in weniger als 5 Minuten, die beliebte Kirchstraße bzw. der Wochenmarkt in unter 10 Minuten erreichen. Ebenfalls in fußläufiger Nähe befinden sich verschiedene Ärzte, die Segeberger Kliniken sowie verschiedene Schulen und Kindergärten. Der nur wenige Minuten entfernte große Segeberger See lädt zu Spaziergängen ein und verfügt über einen Tretbootverleih, ein Freibad und einen eigenen Segelklub.
Bad Segeberg ist mit seinen über 16.000 Einwohnern die drittgrößte Stadt des Kreises Segeberg. Sie liegt bei hervorragender Autobahnanbindung im Dreieck zwischen Kiel (A21), Lübeck (A20) und Hamburg (A21). Nach Neumünster gelangt man mit dem Auto in einer halben Stunde über die B 205. Über Bad Oldesloe lassen sich Hamburg und Lübeck bequem und schnell per Bahn erreichen. Die Bahnanbindung nach Neumünster erfolgt sogar ohne Umsteigen.
Aber nicht nur die Lage macht Bad Segeberg so attraktiv. Über die Stadtgrenzen hinaus ist Bad Segeberg bekannt für die jährlich stattfindenden Karl-May-Festspiele am 91 Meter hohen Kalkberg. Besucher wie Bewohner können sich neben den guten Einkaufsmöglichkeiten zudem an einem umfangreichen Kultur- und Freizeitangebot erfreuen. Die Fledermaus Erlebnisausstellung, das Museum Alt-Segeberger Bürgerhaus, Kalkberghöhlen und Marienkirche sind nur einige zu nennende Beispiele. Über das Jahr verteilt finden verschiedene Feste und Aktivitäten statt: etwa der Segeberger Kultursommer oder die sommerlichen Konzerte in der Freilichtbühne.
Die deutschlandweit bekannte Möbel-Kraft AG hat hier ebenso ihren Hauptsitz, wie die Kassenärztliche Vereinigung und die Ärztekammer Schleswig-Holsteins. Die Stadt verfügt über verschiedene Schulen inkl. einer Volkshochschule.
Sonstige Angaben
Heizungsart: Zentralheizung
Energieträger: Gas
Die Wohnung ist aktuell noch an einen Pflegedienst vermietet und kann frühestens ab dem 01.01.2026 übernommen werden. Das vorhandene Badezimmer wird vor Einzug noch saniert und eine vollständig neue Küche eingebaut - im auf dem Grundriss eingezeichneten Raum (Küche 10m²). Die auf den Bildern abgebildete Küche ist nur eine provisorische "Büroküche" des aktuellen Mieters.
Die Mindestmietdauer beträgt 12 Monate. Bei Fragen und zur Terminvereinbarung kommen Sie jederzeit gerne auf uns zu. Gerne können Sie uns bei Ihrer Anfragen die wichtigsten Informationen mit angeben (Einkommen, Anzahl der Bewohner, gewünschter Einzugstermin etc.), damit wir Ihre Anfrage gut bearbeiten können.
Makleranfragen nicht erwünscht. Nach § 7 UWG sind unaufgeforderte Kontaktaufnahmen durch Makler ohne ausdrückliche Einwilligung des Empfängers verboten!
ohne-makler (OM) ist weder Anbieter noch Vermittler der Immobilie. OM betreibt eine Plattform für Immobilieneigentümer, die unter anderem die gleichzeitige Veröffentlichung einzelner Inserate auf mehreren Immobilienportalen ermöglicht. Die Inhalte dieser Inserate werden ausschließlich von Dritten verantwortet. Für die Richtigkeit, Vollständigkeit oder Rechtmäßigkeit der Angaben übernimmt OM keine Haftung. Hinweise auf mögliche Rechtsverstöße können jederzeit gemeldet werden und werden nach Prüfung umgehend bearbeitet.
Grundriss
Grundriss
>
>
Adresse
Gartenstraße 15, 23795 Bad Segeberg
Interessante Orte
Preis- und Lageinformationen
Preistrend für Bestandsimmobilien in Bad Segeberg