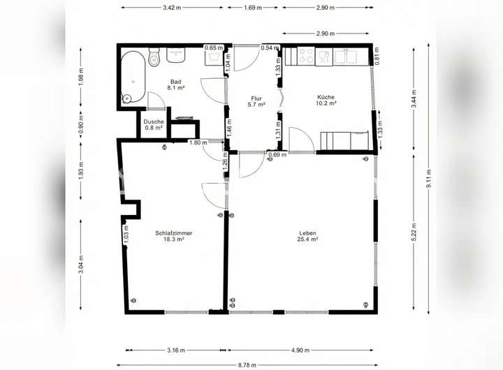
Wir bieten unsere charmante und helle 2-Zimmer-Altbauwohnung in der Altstadt zum Tausch an. Die Wohnung liegt im zweiten Stock (ohne Aufzug) und hat etwa 70 m². Sie ist aufgeteilt in eine Küche, ein Wohn- und Esszimmer, ein Schlafzimmer, ein Bad sowie einen Flur. Besonders praktisch: Man kann von jedem Zimmer in jedes andere gelangen, was die Wohnung besonders ideal für Paare macht.
Die Wohnung verfügt über eine neue, moderne Einbauküche, die gerne übernommen werden kann. Ein eigenes Kellerabteil gehört ebenfalls zur Wohnung. Das Bad hat eine Dusche und eine Badewanne. Dank der vielen Fenster und dem Parkettboden ist die Wohnung sehr hell und hat typischen Altbaucharme.
In unmittelbarer Nähe befinden sich der Neupfarrplatz, Supermärkte, Drogerien, etc. und eine Bäckerei und Metzgerei sind direkt am Haus, was den Alltag besonders angenehm macht. Die Warmmiete beträgt 920 €.
Gesucht wird eine Wohnung mit mindestens 3 Zimmern und mindestens 75 m², gerne im Altbau, bevorzugt in der Altstadt, maximal Altstadtrand. Wichtig ist uns eine ruhige Umgebung und idealerweise ein Balkon oder ein Garten.
PS: Bitte stellt nach Möglichkeit auch Fotos in Eure Anzeigen rein, das hilft sehr für einen ersten Eindruck und bei der Entscheidungsfindung :)
Tauschwohnung: Schöne helle Innenstadtwohnung
Weiße-Lilien-Straße 1,
93047 Regensburg
Auf Karte anzeigen
Infos
| Etage | 2 von |
|---|---|
| Wohnfläche ca. | 70 m2 |
| Zimmer | 2,5 |
Kosten
| Kaltmiete |
670 € |
|---|---|
| Nebenkosten | + 250 € |
| Heizkosten | keine Angabe |
| Gesamtmiete | 920 € (zzgl. Heizkosten) |
Weiter mieten oder doch kaufen?
Wer in Miete wohnt, überweist dem Vermieter im Laufe der Jahre hohe Summen, die sich
auch in die eigenen vier Wände investieren lassen könnten.
Beschreibung des Objekts
Sonstige Angaben
Wichtig
Diese Wohnung auf Tauschwohnung.com ist nur für Personen geeignet, die eine passende Wohnung zum Tauschen haben. Die Registrierung ist 100 % kostenfrei und ermöglicht es dir, mit unserem Matching Algorithmus diese Wohnung oder viele andere auf unserer Plattform zu entdecken.
Vorteile mit Tauschwohnung:
✅ Keine Massenbesichtigungen
✅ Direkter Kontakt zum Tauschpartner
✅ Günstige Mietpreise
✅ Nr. 1 Wohnungstauschplattform in Deutschland.
Adresse
Weiße-Lilien-Straße 1, 93047 Regensburg
Interessante Orte
Preis- und Lageinformationen
Preistrend für Bestandsimmobilien in Innenstadt