Diese großzügige und sehr schöne Wohnung befindet sich im Dachgeschoss eines Zweifamilienhauses. Ein eigener Zugang, nur für diese Wohnung gewährleistet ruhiges und angenehmes Wohnen.
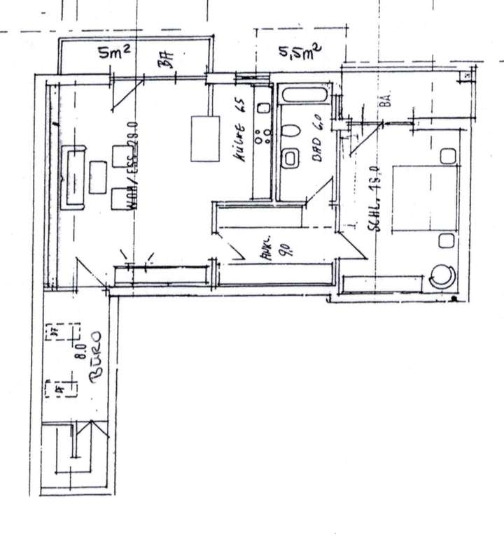
Gleich nach dem Hauseingang befindet sich die Wohnungseingangstüre und innerhalb dem Wohnbereich gibt es ein eigenes Treppenhaus, welches in den Keller führt und in den Wohnbereich im Dachgeschoss. In der Diele kann auch gleich die Garderobe platziert werden.
Kommt man die Treppe hoch, ist der Galeriebereich der Wohnung ideal um z.B. ein Büro unterzubringen. Durch zwei Dachflächenfenster absolut hell und freundlich.
Die Wohnung wurde hochwertig renoviert, ein moderner Vinylboden garantiert gemütliches Wohnen, ist pflegeleicht und sehr angenehm.
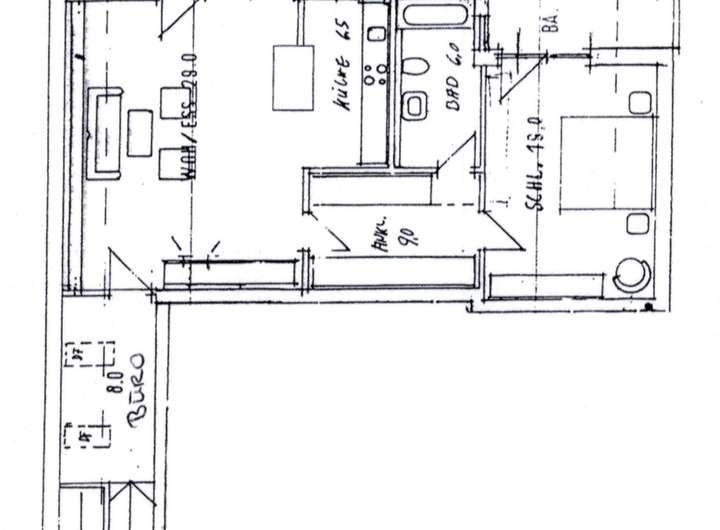
Das Highlight dieser außergewöhnlichen 2,5 Zimmer-Wohnung ist der großzügige Wohn-Eß-Kochbereich auf ca. 35 qm Wohnfläche.
Eine hochwertige Einbauküche ist inklusive und wertet diese schöne Wohnung zusätzlich auf.
Vom schönen Balkon hat man einen herrlichen Blick auf die angrenzenden Wiesen.
Im geräumigen Durchgangsflur zum Bad und schönen Schlafzimmer ist ein Einbauschrank die optimale Lösung als Kleiderschrank und um Besen, Staubsauger & Co. verschwinden zu lassen.
Vom Schlafzimmer geht´s zur kleinen Loggia, hier kann man die Sommerabende ausklingen lassen.
Das Bad mit Badewanne, Dusche mit neuer Glaswand und natürlich einem Fenster zur Belüftung rundet diese tolle Wohnung ab.
Ein eigenes, großes Kellerabteil sowie eine eigene Waschküche mit Waschmaschine und Trockner sind die praktischen Ergänzungen.
Alles in Allem - eine besondere Gelegenheit für eine besondere Wohnung!
TRAUMwohnung im DG eines 2-Fam.Hauses - WOHLFÜHLWOHNUNG - TOP-renoviert - EBK- ZWEI Balkone!
Schwabmünchener Straße 2,
86807 Buchloe
Auf Karte anzeigen
Infos
| Wohnungskategorie | Dachgeschoss |
|---|---|
| Etage | 1 von 1 |
| Wohnfläche ca. | 87 m2 |
| Nutzfläche | 15 m2 |
| Bezugsfrei ab | sofort |
| Zimmer | 2,5 |
| Schlafzimmer | 1 |
| Badezimmer | 1 |
| Haustiere | Nein |
Kosten
| Kaltmiete |
870 € |
|---|---|
| Nebenkosten | + 280 € |
| Heizkosten | in Nebenkosten enthalten |
| Gesamtmiete | 1.200 € |
| Kaution o. Genossenschaftsanteile | 3 Monatskaltmieten |
Weiter mieten oder doch kaufen?
Wer in Miete wohnt, überweist dem Vermieter im Laufe der Jahre hohe Summen, die sich
auch in die eigenen vier Wände investieren lassen könnten.
Bausubstanz & Energieausweis
| Baujahr | 1987 |
|---|---|
| Letzte Sanierung | 2019 |
| Objektzustand | Modernisiert |
| Qualität der Austattung | Gehoben |
| Heizungsart | Zentralheizung |
| Wesentliche Energieträger | Gas |
| Energieausweis | liegt zur Besichtigung vor |
Beschreibung des Objekts
Ausstattung
neuer Vinylboden
hochwertige, neue Einbauküche mit Elektrogeräten Kaltmiete Euro 50,--
Waschmaschine und Trockner
2 Balkone
großes Kellerabteil
Lage
Die Wohnung befindet sich in einem 2-Familienhaus in ruhiger und angenehmer Wohnlage von Buchloe.
In wenigen Minuten erreichen Sie die A 96 sowie die B 12 als wichtige Verkehrsadern in alle Richtungen.
Buchloe ist mit über 11.900 Einwohnern (incl. der Ortsteile), die drittgrößte kreisangehörige Stadt im Landkreis Ostallgäu. Dank ihrer verkehrsgünstigen Lage (Bahnknotenpunkt, zwei Autobahnanschlüsse), den vielfältigen Einkaufsmöglichkeiten, ihrem regen Vereinsleben, einem umfassenden kulturellen Angebot und ihrer liebenswürdigen Atmosphäre, bietet Buchloe alles, was man von einer modernen und leistungsfähigen Kleinstadt erwarten kann. Kindergärten, Grund-, Haupt- und Realschulen sowie ein Gymansium sind vor Ort.
Sonstige Angaben
Kaltmiete Wohnung Euro 870,-- zuzügl. Euro 50,-- für die Einbauküche, zuzügl. Euro 280,-- als NK-Vorauszahlung.
Es ist ein Staffelmietvertrag vorgesehen, eine Erhöhung um Euro 40,-- alle zwei Jahre auf vier Staffelungen.
Grundriss
Grundriss
>
>
Adresse
Schwabmünchener Straße 2, 86807 Buchloe
Interessante Orte
Preis- und Lageinformationen
Preistrend für Bestandsimmobilien in Buchloe