Das großzügige Monteurhaus in Marklkofen bietet eine funktionale und solide Lösung für Unternehmen, Projektteams und Handwerksbetriebe, die eine verlässliche und gut angebundene Unterkunft suchen. Das Gebäude aus dem Jahr 1966 erstreckt sich über zwei Etagen und wird aktuell renoviert, sodass die Räumlichkeiten bei Einzug in einem gepflegten, zeitgemäßen Zustand übergeben werden. Auf einer Grundstücksfläche von über 1.000 m² stehen insgesamt 13 Betten zur Verfügung - Aufgeteilt in drei Zimmer mit je drei Betten sowie zwei weitere Zimmer mit je zwei Betten. Die Ausstattung ist bewusst einfach und robust gehalten: Pflegeleichte Fliesen, Parkett und Teppichböden, massive Ziegelbauweise, moderne Kunststofffenster mit Dreifachverglasung sowie eine zentrale Heizungsanlage sorgen für ein zuverlässiges, langlebiges Wohnumfeld, das speziell für Monteure und zeitweise Mitarbeiterunterbringung ausgelegt ist.
Ergänzend zu den Schlafräumen bietet das Haus mehrere Gemeinschafts- und Abstellräume, die flexibel für Aufenthalte, Besprechungen oder zur Lagerung genutzt werden können. Ein Balkon, eine Terrasse sowie der weitläufige Garten schaffen zusätzlichen Nutzen und ermöglichen erholsame Pausen nach langen Arbeitstagen. Technisch überzeugt das Objekt zudem durch eine PV-Anlage mit Pufferspeicher, die einen nachhaltigen und kosteneffizienten Energieeinsatz unterstützt.
Die Lage in Marklkofen ist für Monteure besonders attraktiv. Dank der Nähe zu Dingolfing, Landau an der Isar und Reisbach sind zahlreiche Industrie-, Gewerbe- und Produktionsbetriebe in kurzer Fahrzeit erreichbar - Darunter auch der BMW-Standort Dingolfing. Über die B20 und die schnell erreichbare A92 besteht eine verlässliche Verbindung in alle relevanten Richtungen. Einkaufsmöglichkeiten, Gastronomie, Ärzte und tägliche Versorgungseinrichtungen befinden sich direkt im Ort. Damit verbindet das Objekt ruhiges Wohnen, starke Infrastruktur und optimale Erreichbarkeit für tägliche Einsätze.
Funktionales Monteurhaus mit 13 Betten - Frisch renoviert in optimaler Lage
84163 Marklkofen
Die vollständige Adresse der Immobilie erhalten Sie vom Anbieter.
Auf Karte anzeigen
Die vollständige Adresse der Immobilie erhalten Sie vom Anbieter.
Infos
| Haustyp | Einfamilienhaus |
|---|---|
| Etagenzahl | 3 |
| Wohnfläche ca. | 190 m2 |
| Grundstücksfläche | 1.034 m2 |
| Bezugsfrei ab | nach Absprache |
| Zimmer | 5 |
| Schlafzimmer | 5 |
| Badezimmer | 3 |
| Haustiere | Nein |
| Garage/Stellplatz | Außenstellplatz |
| Anzahl Garage/Stellplatz | 5 |
Kosten
| Kaltmiete |
3.150 € |
|---|---|
| Nebenkosten | + 1.350 € |
| Heizkosten | in Nebenkosten enthalten |
| Gesamtmiete | 4.500 € |
Weiter mieten oder doch kaufen?
Wer in Miete wohnt, überweist dem Vermieter im Laufe der Jahre hohe Summen, die sich
auch in die eigenen vier Wände investieren lassen könnten.
Bausubstanz & Energieausweis
| Baujahr | 1966 |
|---|---|
| Letzte Sanierung | 2025 |
| Objektzustand | Gepflegt |
| Qualität der Austattung | Normal |
| Energieausweis | liegt zur Besichtigung vor |
Beschreibung des Objekts
Ausstattung
* Zwei Etagen, massive Ziegelbauweise
* Insgesamt 13 Betten
* Zimmeraufteilung: 3× Drei-Bett-Zimmer, 2× Zwei-Bett-Zimmer
* Einfache, robuste und pflegeleichte Ausstattung
* Aktuell renoviert / Übergabe im gepflegten Zustand
* Balkon, Terrasse und großer Garten
* Gemeinschaftsräume und Abstellräume vorhanden
* PV-Anlage mit Pufferspeicher
* Zentralheizung Öl
* Fenster: Moderne Kunststofffenster mit Dreifachverglasung
* Bodenbeläge: Fliesen, Parkett und Teppich
* Anzahl der WC;s: Vier
* Anzahl der Duschen: Drei & eine zusätzliche Badewanne
Lage
* Attraktive Lage im Landkreis Dingolfing-Landau - Ideal für Firmen,
Handwerker und Projektteams
* Nähe zu wichtigen Arbeitgebern: BMW Dingolfing, Zulieferer,
Logistik- und Produktionsbetriebe
* Schnelle Verbindung über B20 und kurze Wege zur A92 (München-
Deggendorf)
* Gute Erreichbarkeit umliegender Industrie- und Gewerbestandorte:
Dingolfing, Landau, Reisbach
* Vollständige Infrastruktur vor Ort: Einkaufsmöglichkeiten,
Gastronomie, Ärzte, Apotheke
* Ruhige, sichere Wohnlage - Trotzdem zentral genug für tägliche
Fahrten zu Einsatzorten
* Freizeitmöglichkeiten für Feierabend und Wochenenden: Badesee,
Radwege, Sportvereine
Sonstige Angaben
*** Bei der ausgewiesenen Miete handelt es sich um eine Miete zzgl. Nebenkosten. Die gesetzliche Mehrwertsteuer in der jeweils gültigen Höhe wird hier nicht erhoben. ***
*** Hiermit wird festgehalten, dass die Rolle des Immobilienmaklers der GARANT im Rahmen des Vermietungsprozesses dieser Immobilie ausschließlich auf die Vermittlung zwischen dem Eigentümer/Vermieter und potenziellen Mietern beschränkt ist. Zu keinem Zeitpunkt wurden durch den Immobilienmakler steuerliche oder rechtliche Beratungen bezüglich der Vermietung der Immobilie oder damit verbundener Vorgänge angeboten, durchgeführt oder impliziert. Potenzielle Mieter werden aufgefordert, alle relevanten Aspekte der Immobilie durch eigene Prüfungen oder durch Beauftragung geeigneter Fachberater zu verifizieren, um sicherzustellen, dass alle Informationen ihren Anforderungen und Erwartungen entsprechen. ***
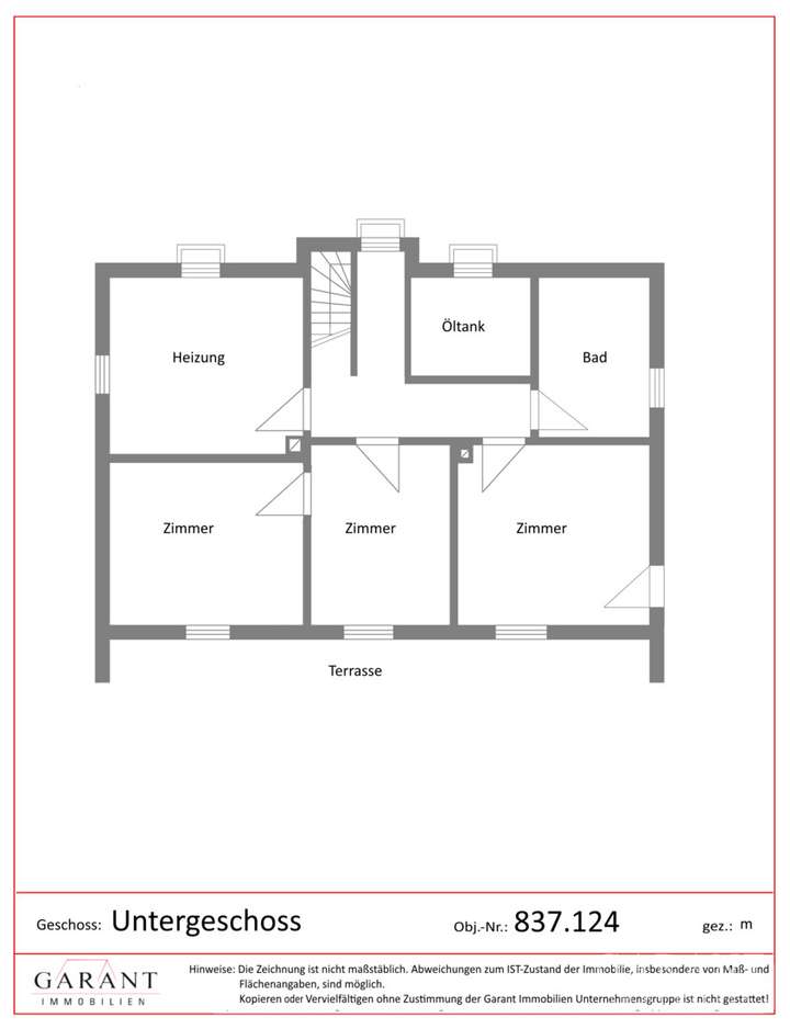
Grundriss
837124 UG
>
>
837124 EG
>
>
Adresse
84163 Marklkofen
Interessante Orte
Preis- und Lageinformationen
Preistrend für Bestandsimmobilien in Marklkofen