Hier sind Sie in guten Wänden - Die hier angebotenen zwei exklusiven Doppelhaushälften überzeugen mit ihrem KfW 40 EE -Standard, vielen exklusiven Ausstattungsdetails und ihrem modernen Grundriss. Die Vorteile einer Immobilie mit diesem Energieeffizienz-Standard sind klar: energiesparend, umweltschonend, kostensenkend und eine moderne Bauweise mit gewissem Wohnkomfort. KfW 40 EE bedeutet, dass ein Gebäude den Effizienzhaus-40-Standard erfüllt und mindestens 65 % des Energiebedarfs für Wärme und Kälte durch erneuerbare Energien deckt.
Objektbeschreibung je DHH:
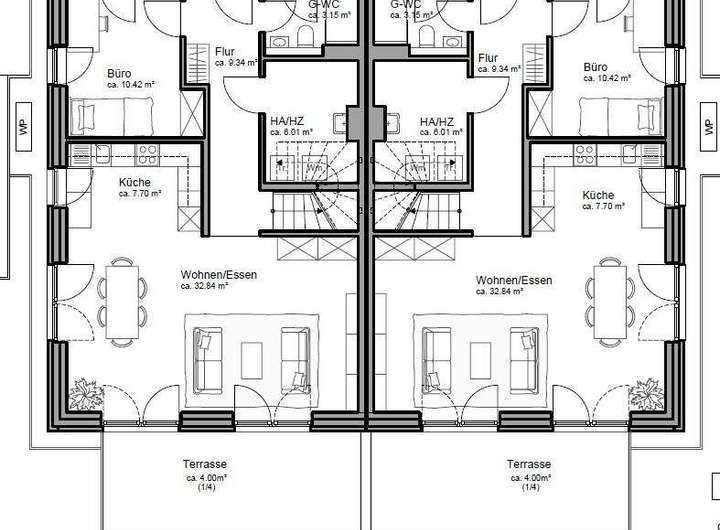
Über den Flur gelangen Sie direkt in den offenen und hellen Wohn-/Essbereich. Dieser präsentiert sich mit einer hochwertigen Einbauküche, sowie dem direkten Zugang auf die sonnige Terrasse und den schön angelegten Garten. Abgerundet wird das modern geschnittene Erdgeschoss mit einem weiteren Zimmer, welches ideal als Gäste- oder Arbeitszimmer genutzt werden kann, dem Hauswirtschaftsraum sowie dem exklusiv ausgestatteten Gästebad inklusive bodentiefer Dusche.
Über die geflieste Treppe gelangen Sie in das Obergeschoss des Hauses. Hier erwarten Sie drei gut geschnittene Zimmer, die nach Ihren individuellen Wünschen gestaltet werden können und das geräumige Vollbad mit Fenster. Vom Flur aus, gelangen Sie direkt auf den Dachboden, der Ihnen und Ihrer Familie jede Menge Stauraum bietet.
Abgerundet wird jede Doppelhaushälfte mit einem Carport sowie einem Kfz-Außenstellplatz, inklusive Vorrüstung für E-Mobilität und persönlichen Abstellraum.
Nehmen Sie noch heute Kontakt mit uns auf und sichern Sie sich Ihren persönlichen und exklusiven Neubau-Wohntraum im schönen HH-Poppenbüttel. Wir freuen uns schon jetzt auf Ihre Kontaktaufnahme.
Ihr exklusiver Neubau-Wohntraum im schönen HH-Poppenbüttel.
Am Bronzehügel 59,
22399 Hamburg
Auf Karte anzeigen
Infos
| Haustyp | Doppelhaushaelfte |
|---|---|
| Wohnfläche ca. | 136 m2 |
| Nutzfläche | 6,38 m2 |
| Grundstücksfläche | 0 m2 |
| Bezugsfrei ab | 01.02.2026 |
| Zimmer | 5 |
| Schlafzimmer | 3 |
| Badezimmer | 2 |
| Garage/Stellplatz | Carport |
| Anzahl Garage/Stellplatz | 2 |
Kosten
| Kaltmiete |
2.750 € |
|---|---|
| Nebenkosten | + 150 € |
| Heizkosten | + 75 € |
| Gesamtmiete | 2.975 € |
| Kaution o. Genossenschaftsanteile | 8.250,00 |
Weiter mieten oder doch kaufen?
Wer in Miete wohnt, überweist dem Vermieter im Laufe der Jahre hohe Summen, die sich
auch in die eigenen vier Wände investieren lassen könnten.
Bausubstanz & Energieausweis
| Baujahr | 2025 |
|---|---|
| Objektzustand | Erstbezug |
| Qualität der Austattung | Gehoben |
| Heizungsart | Wärmepumpe |
| Wesentliche Energieträger | Strom |
| Energieausweis | liegt vor |
| Energieausweistyp | Bedarfsausweis |
| Energieverbrauchskennwert | 16,3 kWh/(m²*a) |
| Energieeffizienzklasse | A+ |
16,3
kWh/(m²*a)
Energieeffizienzklasse A+
- A+
- A
- B
- C
- D
- E
- F
- G
- H
- 0
- 25
- 50
- 75
- 100
- 125
- 150
- 175
- 200
- 225
- >250
Beschreibung des Objekts
Ausstattung
- Ihre Vorteile eines KfW- Effizienshaus 40 EE: energiesparend, umweltschonend, kostensenkend und moderner Wohnkomfort
- Heizungsart: Luft-Wärmepumpe mit Photovoltaikanlage
- Hochwertige und moderne Einbauküche mit hellgrauen Fronten
- EBK inkl. Kühl-/Gefrierkombination, Geschirrspüler, Ceranherd mit Dunstabzugshaube, Backofen
- Vollbad mit bodentiefer Dusche, Glasduschtrennwand, Spiegel & Handtuchheizkörper und Fenster (Lage: OG)
- Gäste-Bad mit bodentiefer Dusche, Glasduschtrennwand, Spiegel & Handtuchheizkörper und Fenster (Lage: EG)
- Großzügige Raumhöhen
- Fußbodenheizung
- Designfußboden in Holzoptik in allen Wohn-/Schlafzimmern
- Beiger Fliesenboden in den Bädern, sowie im Flur und HWR
- Kunststofffenster
- Fenster 3-Fach-Verglasung, Schallschutzfenster
- Regel-Air im Fenster
- Umfangreiche Ausstattung an Steckdosen und Multimediadosen
- HWR/Heizungsraum (Lage: EG)
- Dachbodenraum
- Sonnige Terrasse vom Wohnbereich begehbar
- Wohlfühl-Garten
- Außenwasserhahn
- 1 Carport mit Wallbox, 1 Kfz-Außenstellplatz
- Abstellraum
Folgen Sie uns auf instagram.com/carolin.gerken.immobilien und erhalten bereits vorab unsere neuesten Mietangebote.
Lage
Das Neubau-Doppelhaus befindet sich in attraktiver Wohnlage von HH-Poppenbüttel, in der Straße Am Bronzehügel. Die Umgebung zeichnet sich durch eine gewachsene Nachbarschaft, moderne Architektur sowie naturnahe Freizeitmöglichkeiten aus – ideal für Familien und Paare.
Die Straße liegt in einem verkehrsberuhigten Bereich mit angenehmer Wohnatmosphäre. Gleichzeitig profitieren Sie von einer hervorragenden Infrastruktur: Einkaufsmöglichkeiten, Kitas, Schulen, medizinische Versorgung sowie Restaurants und Cafés sind schnell erreichbar. Öffentliche Verkehrsmittel sowie die Anbindung an überregionale Verkehrswege sorgen für eine gute Erreichbarkeit – sowohl mit dem Auto als auch mit Bus und Bahn.
In unmittelbarer Nähe laden Grünflächen, Felder und eventuell angrenzende Waldstücke zu Spaziergängen, Jogging oder Fahrradtouren ein. Der nahegelegene Bronzehügel verleiht der Lage nicht nur ihren Namen, sondern bietet auch einen besonderen landschaftlichen Reiz.
Sonstige Angaben
- Die Kosten für Strom rechnen Sie individuell nach Verbrauch mit den Versorgungswerken ab
- Es wird ein Staffelmietvertrag abgeschlossen
- Mindestmietdauer von einem Jahr
- Grundrisse/Maßangaben sowie Flächenberechnungen sind ca. Angaben und wurden nicht überprüft
- Alle hier gemachten Angaben beruhen auf den Auskünften des Auftraggebers
- Für die Richtigkeit und Vollständigkeit der Angaben und der Vereinbarkeit mit geltenden Vorschriften können wir keine Haftung übernehmen
- Änderungen, Zwischenvermietung und Irrtum bleiben vorbehalten
- Folgen Sie uns auf instagram.com/carolin.gerken.immobilien und erhalten bereits vorab unsere neuesten Mietangebote
Grundriss
Grundriss EG
>
>
Grundriss DG
>
>
Grundriss Dachboden
>
>
Adresse
Am Bronzehügel 59, 22399 Hamburg
Interessante Orte
Preis- und Lageinformationen
Preistrend für Bestandsimmobilien in Poppenbüttel