Diese ca. 120 m² große, attraktive Doppelhaushälfte(auf dem Bild rechts) befindet sich in besonders attraktiver Lage und bietet Ihnen und Ihrer Familie viel Platz zum Wohlfühlen.
Die Raumaufteilung der rechten Doppelhaushälfte beträgt ca. 120 m².
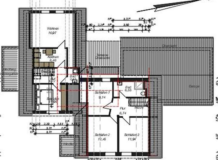
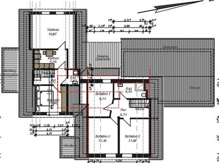
Erdgeschoss:
Eingangsbereich, Küche, Flur, Wohn- u. Esszimmer mit Zugang zur Terrasse, Schlafzimmer 1, HWR und Badezimmer.
Dachgeschoss:
Flur, Schlafzimmer 2, Kinderzimmer 1, Kinderzimmer 2 und Duschbad mit WC.
Zu den DHH gehören eine praktische große Garage sowie ein großzügiges Grundstück ca. 1600 qm, das Ihnen vielfältige Gestaltungsmöglichkeiten im Außenbereich eröffnet.
Absolut idyllische ruhige Lage, schönes großes Grundstück und Blick ins freie machen das Haus besonders anziehend.
Dort wohnen, wo andere Urlaub machen! Doppelhaushälfte in wunderschöner Lage zu vermieten
26215 Wiefelstede
Die vollständige Adresse der Immobilie erhalten Sie vom Anbieter.
Auf Karte anzeigen
Die vollständige Adresse der Immobilie erhalten Sie vom Anbieter.
Infos
| Haustyp | Doppelhaushaelfte |
|---|---|
| Etagenzahl | 2 |
| Wohnfläche ca. | 120 m2 |
| Nutzfläche | 40 m2 |
| Grundstücksfläche | 1.300 m2 |
| Bezugsfrei ab | sofort |
| Zimmer | 5 |
| Schlafzimmer | 4 |
| Badezimmer | 2 |
| Garage/Stellplatz | Garage |
| Anzahl Garage/Stellplatz | 1 |
Kosten
| Kaltmiete |
980 € |
|---|---|
| Nebenkosten | + 70 € |
| Heizkosten | + 150 € |
| Gesamtmiete | 1.200 € |
| Kaution o. Genossenschaftsanteile | 1960 EUR |
Weiter mieten oder doch kaufen?
Wer in Miete wohnt, überweist dem Vermieter im Laufe der Jahre hohe Summen, die sich
auch in die eigenen vier Wände investieren lassen könnten.
Bausubstanz & Energieausweis
| Baujahr | 1988 |
|---|---|
| Objektzustand | Vollständig Renoviert |
| Heizungsart | Zentralheizung |
| Wesentliche Energieträger | Gas |
| Energieausweis | liegt vor |
| Energieausweistyp | Verbrauchsausweis |
| Energieverbrauchskennwert | 160,0 kWh/(m²*a) |
| Energieeffizienzklasse | F |
160,0
kWh/(m²*a)
Energieeffizienzklasse F
- A+
- A
- B
- C
- D
- E
- F
- G
- H
- 0
- 25
- 50
- 75
- 100
- 125
- 150
- 175
- 200
- 225
- >250
Beschreibung des Objekts
Ausstattung
Terrasse, Garten, Vollbad, Duschbad, Gäste-WC, Laminat, Fliesen
Bemerkungen:
Hier haben Sie eine einzigartige Möglichkeit dort zu wohnen, wo andere Urlaub machen!
Das Haus wurde im 11/2025 renoviert.
Lage
Die Lage dieser Immobilie überzeugt durch seine wunderschöne ländliche Umgebung, die Ruhe und Erholungsmöglichkeit verschafft. Gleichzeitig sind die Nachbarorten wie Rastede, sowie der beliebte Kurort Bad Zwischenahn schnell erreichbar.
Die Umgebung von Conneforde (Wiefelstede) bietet eine Mischung aus Ruhe, Erholung, Natur, und auch Freizeitaktivitäten und kulturelle Aktivitäten. Zentral sind der Bernsteinsee mit Wasserspaß und der benachbarte Activity Park mit Kletterwald, Fußballgolf und Moorhuhnjagd. Radfahrer profitieren von vielen Themenrouten, und für Kulturliebhaber gibt es das Heimatmuseum, die St. Johannes Kirche und das Heinrich-Kunst-Haus in Wiefelstede. Ca. 15 min entfernt befindet sich Jadepark Tier-und Freizeitpark an der Nordsee.
Die idyllische Nordseeküste und anerkannter Luftkurort am süd-westlichen Zipfel der Jadebusen bitten die sauerstoffhaltige, allergenarme saubere Luft und ist nur 15 km vom Conneforde entfernt.
Die bekannte Universitätsstadt Oldenburg, eine der größten Städte Niedersachsens, ist über die Autobahnanbindung A28 in ungefähr 15 Minuten zu erreichen.
Infrastruktur (im Umkreis von 5 km):
Apotheke, Lebensmittel-Discount, Allgemeinmediziner, Kindergarten, Grundschule, Öffentliche Verkehrsmittel
Sonstige Angaben
Heizungsart: Zentralheizung
Energieträger: Gas
Makleranfragen nicht erwünscht. Nach § 7 UWG sind unaufgeforderte Kontaktaufnahmen durch Makler ohne ausdrückliche Einwilligung des Empfängers verboten!
ohne-makler (OM) ist weder Anbieter noch Vermittler der Immobilie. OM betreibt eine Plattform für Immobilieneigentümer, die unter anderem die gleichzeitige Veröffentlichung einzelner Inserate auf mehreren Immobilienportalen ermöglicht. Die Inhalte dieser Inserate werden ausschließlich von Dritten verantwortet. Für die Richtigkeit, Vollständigkeit oder Rechtmäßigkeit der Angaben übernimmt OM keine Haftung. Hinweise auf mögliche Rechtsverstöße können jederzeit gemeldet werden und werden nach Prüfung umgehend bearbeitet.
Grundriss
Grundriss EG( s. Haus re.)
>
>
Grundriss OG(s. Haus re.)
>
>
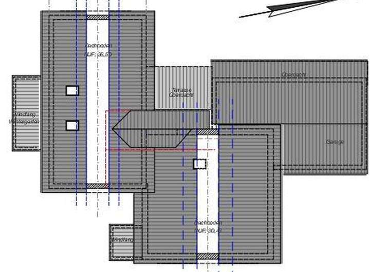
Dachboden(s. Haus re.)
>
>
Lageplan
>
>
Lagepaln
>
>
Adresse
26215 Wiefelstede
Interessante Orte
Preis- und Lageinformationen
Preistrend für Bestandsimmobilien in Wiefelstede