Die Doppelhaushälfte auf einen Blick:
• 4 Zimmer auf ca. 100 m² Wohnfläche - alles auf einer Ebene
• Fußbodenheizung in allen Wohnräumen für angenehme Wärme
• Hochwertiger Designbelag im Wohnbereich (aktuell vier Designs zur Auswahl)
• Fliesen im Bad und im Hauswirtschaftsraum
• Modernes Bad mit großer Walk-in-Dusche
• Offener Wohn-/Essbereich mit Zugang zur eigenen Terrasse und zum eigenen Garten
• Elektrische Rollläden an allen Fenstern
• Glasfaseranschluss bis ins Haus
• Jedes Haus mit eigener Wärmepumpe
• Jede Einheit erhält eine eigene Photovoltaikanlage mit Speicher
• Großer Dachboden als zusätzlicher Stauraum
• Zwei PKW-Stellplätze je Wohneinheit – davon einer als Carport mit integriertem Abstellraum und Anschlussmöglichkeit für eine Wallbox
Miete: 1.400, - Euro Kaltmiete
Doppelhaushälfte mit 4 Zimmern in der Schäferwiese in Ilsenburg.
Schäferwiese 36,
38871 Ilsenburg (Harz)
Auf Karte anzeigen
Infos
| Haustyp | Doppelhaushaelfte |
|---|---|
| Etagenzahl | 1 |
| Wohnfläche ca. | 100 m2 |
| Nutzfläche | 100 m2 |
| Grundstücksfläche | 400 m2 |
| Bezugsfrei ab | 1.2.2026 |
| Zimmer | 4 |
| Schlafzimmer | 3 |
| Badezimmer | 1 |
| Haustiere | Ja |
| Anzahl Garage/Stellplatz | 2 |
Kosten
| Kaltmiete |
1.400 € |
|---|---|
| Nebenkosten | + 100 € |
| Heizkosten | keine Angabe |
| Gesamtmiete | 1.500 € (zzgl. Heizkosten) |
| Kaution o. Genossenschaftsanteile | 2800,00 |
Weiter mieten oder doch kaufen?
Wer in Miete wohnt, überweist dem Vermieter im Laufe der Jahre hohe Summen, die sich
auch in die eigenen vier Wände investieren lassen könnten.
Bausubstanz & Energieausweis
| Baujahr | 2025 |
|---|---|
| Objektzustand | Erstbezug |
| Qualität der Austattung | Gehoben |
| Heizungsart | Wärmepumpe |
| Wesentliche Energieträger | Solarheizung |
Beschreibung des Objekts
Lage
Ilsenburg (Harz) ist eine charmante Stadt am Fuße des Harzes, die eine hohe Lebensqualität durch die Nähe zur Natur bietet. Die Umgebung lädt zu vielfältigen Freizeitaktivitäten wie Wandern und Radfahren ein. Die städtische Infrastruktur mit Einkaufsmöglichkeiten, Ärzten und Schulen ist gut ausgebaut und sorgt für eine angenehme Versorgung im täglichen Leben. Die Verkehrsanbindung ermöglicht auch Ausflüge in die umliegenden Regionen.
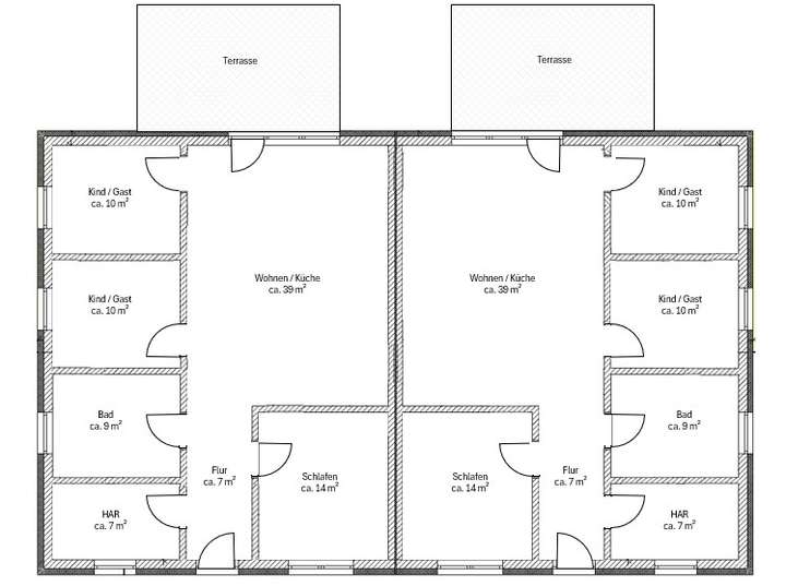
Grundriss
Grundriss
>
>
Adresse
Schäferwiese 36, 38871 Ilsenburg (Harz)
Interessante Orte
Preis- und Lageinformationen
Preistrend für Bestandsimmobilien in Ilsenburg (Harz)