Dieses helle und geräumige zweistöckige Haus bietet alles, was Sie sich von einem modernen Haus wünschen können.
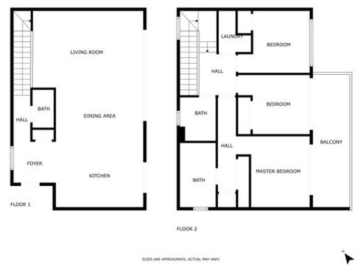
Die helle erste Etage verfügt über eine wunderbar gestaltete offene Küche mit Insel, die nahtlos an das geräumige Wohnzimmer anschließt. Das große Wohnzimmer öffnet sich durch Glasschiebetüren, die sich über die gesamte Breite der Wand erstrecken, zum eigenen, großen Garten und bringt Innen- und Außenbereich perfekt zusammen. Im Erdgeschoss befindet sich auch eine Toilette.
Im Obergeschoss befinden sich drei geräumige Schlafzimmer, von denen zwei einen direkten Zugang zu Ihrer eigenen Terrasse haben. Das Hauptschlafzimmer hat ein eigenes Bad, während die beiden anderen Schlafzimmer sich ein Bad teilen. Die Wohnung verfügt außerdem über einen Hauswirtschaftsraum mit Waschmaschine und Trockner.
Das Eckapartment verfügt über ein intelligentes System, das Sie bequem mit Ihrem Telefon steuern können, um z.B. die Klimaanlage auf Ihren eigenen Komfort einzustellen, auch aus der Ferne. Der pflegeleichte Hof ist mit Kunstrasen und einer spektakulären gefliesten Terrasse ausgestattet, die den Außenbereich perfekt zum Entspannen und Genießen der Sonne macht.
Zur Wohnung gehören auch ein eigener Parkplatz und ein Abstellraum, die den Wohnkomfort erhöhen. Die Hausgemeinschaft Eden bietet luxuriöse Dienstleistungen wie einen eigenen Tennisplatz, einen Fitnessraum, eine Sauna, ein Dampfbad, Aufenthaltsräume und ein Außenschwimmbad. Darüber hinaus steht Ihnen eine Gemeinschaftsküche zur Verfügung, die die Organisation großer Veranstaltungen mühelos ermöglicht.
Ihre Sicherheit in der bewachten Wohnanlage wird durch einen 24/7-Sicherheitsdienst und einen Portier gewährleistet, so dass Sie das Leben in Ruhe genießen können. Das Gebiet verfügt über umfassende Dienstleistungen, und der Golfplatz befindet sich direkt nebenan. Der Strand ist nicht weit entfernt, und der Flughafen ist in nur 20 Minuten zu erreichen.
Dieses Reihenhaus ist die perfekte Wahl für alle, die modernen Komfort und ein ruhiges Leben genießen möchten.
Atemberaubende moderne Doppelhaushälfte in El Chaparral
Calle Dingo, portal 42, puerta 54-1 ,
29649 Mijas
Auf Karte anzeigen
Infos
| Haustyp | Doppelhaushaelfte |
|---|---|
| Wohnfläche ca. | 230 m2 |
| Grundstücksfläche | 100 m2 |
| Zimmer | 3 |
| Schlafzimmer | 3 |
| Badezimmer | 2 |
| Anzahl Garage/Stellplatz | 1 |
Kosten
| Kaltmiete |
3.500 € |
|---|---|
| Nebenkosten | keine Angabe |
| Heizkosten | keine Angabe |
| Gesamtmiete | 3.500 € |
Weiter mieten oder doch kaufen?
Wer in Miete wohnt, überweist dem Vermieter im Laufe der Jahre hohe Summen, die sich
auch in die eigenen vier Wände investieren lassen könnten.
Bausubstanz & Energieausweis
| Baujahr | 2023 |
|---|
Beschreibung des Objekts
Sonstige Angaben
24h Service, Covered Terrace, Double Glazing, Fitted Wardrobes, Lift, Near Transport, Private Terrace, Storage Room, Solarium, Gym, Sauna, Tennis Court, Ensuite Bathroom, Disabled Access, 24h Security Service, Community Pool, Central Heating, Terrace, Pool, Dining Room, Telephone, Guest Toilet, Living Room, Laundry Room, Electric Blinds, Steam Room, Balcony, Spa, Turkish Bath, Amenities Near, Air Conditioning, Security Entrance, Security Shutters, Home Automation System, Gated Community, Garden View, Panoramic View, Street View, Doorman, Close to Children Playground, Close to Sea/Beach, Close to Golf, Glass Doors, Open Plan Kitchen, Handicap Accessible, Close to Shops, Close to Town, Close to Schools, Surveillance Cameras, Partial Sea Views, Toilets, Parking Spaces, Fully fitted kitchen, Uncovered terrace