Entdecken Sie Ihr neues Zuhause in diesem außergewöhnlichen Neubau Reihenmittelhaus in Katzenelnbogen! Dieses moderne, hochwertig ausgestattete Haus bietet Ihnen und Ihrer Familie ein komfortables Wohnerlebnis von der ersten Minute an.
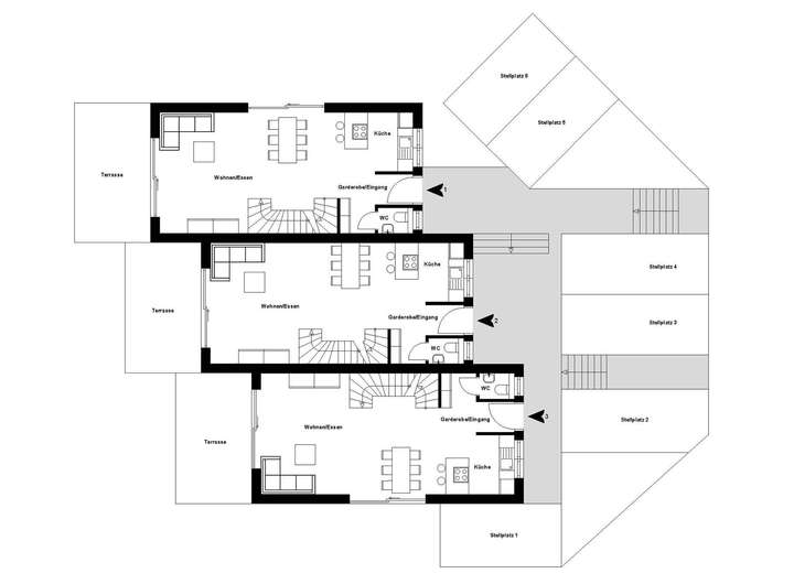
Mit einer Wohnfläche von 120 m² erstreckt sich dieses charmante Haus über 3 Etagen und bietet Ihnen 5 großzügige Zimmer, 3 Schlafzimmer, 2 stilvolle Bäder und ein separates Gäste-WC. Die hochwertige Ausstattung mit edlen Fliesen und warmem Parkett sorgt für eine angenehme Wohnatmosphäre.
Das Haus liegt auf einem großzügigen Grundstück von 237 m² und bietet Ihnen einen privaten Garten, der zur Entspannung und für sonnige Grillabende einlädt.
Ein besonderes Highlight sie die zwei Außenstellplätze. Für nur 50 € pro Stellplatz monatlich können Sie Ihre PKWs sicher und bequem direkt am Haus abstellen.
Dieses Reihenmittelhaus in Katzenelnbogen überzeugt nicht nur durch seine moderne Architektur und hochwertige Ausstattung, sondern auch durch seine erstklassige Lage. Genießen Sie die Ruhe und Idylle dieser charmanten Kleinstadt, während Sie gleichzeitig eine hervorragende Anbindung an die umliegenden Städte und die Natur der Region haben.
Erleben Sie gehobenes Wohnen in einem neuwertigen Zuhause – Ihr Erstbezug wartet auf Sie!
Neubau-Reihenmittelhaus wartet auf seine neuen Mieter
56368 Katzenelnbogen
Die vollständige Adresse der Immobilie erhalten Sie vom Anbieter.
Auf Karte anzeigen
Die vollständige Adresse der Immobilie erhalten Sie vom Anbieter.
Infos
| Haustyp | Reihenmittelhaus |
|---|---|
| Etagenzahl | 3 |
| Wohnfläche ca. | 120 m2 |
| Grundstücksfläche | 237 m2 |
| Bezugsfrei ab | 15.12.2025 |
| Zimmer | 5 |
| Schlafzimmer | 3 |
| Badezimmer | 2 |
| Haustiere | Nach Vereinbarung |
| Anzahl Garage/Stellplatz | 2 |
Kosten
| Kaltmiete |
1.200 € |
|---|---|
| Nebenkosten | keine Angabe |
| Heizkosten | in Nebenkosten enthalten |
| Gesamtmiete | 1.500 € (zzgl. Nebenkosten) |
| Miete für Garage/Stellplatz | 100 € |
| Kaution o. Genossenschaftsanteile | 2800 |
Weiter mieten oder doch kaufen?
Wer in Miete wohnt, überweist dem Vermieter im Laufe der Jahre hohe Summen, die sich
auch in die eigenen vier Wände investieren lassen könnten.
Bausubstanz & Energieausweis
| Objektzustand | Erstbezug |
|---|---|
| Qualität der Austattung | Gehoben |
Beschreibung des Objekts
Ausstattung
HIGHLIGHTS:
| Wohnflächen von rund 120 m2
| Pkw-Stellplätze auf dem Grundstück
| dreifach verglaste ISO-Kunststofffenster mit elektr. Rollläden
| bodentiefe Fensterelemente, teilweise mit Schiebetüren
| Satteldach ohne Dachüberstände
| Hochwertige Bäder mit bodengleichen Duschen
| separates Gäste-WC
| klimabewusste, ressourcenschonende Bauweise
| Fußbodenheizung
| Wärmepumpe
Lage
Entdecken Sie Ihr neues Zuhause in der charmanten Kleinstadt Katzenelnbogen, einer historischen Ortschaft im Herzen des Rhein-Lahn-Kreises. Diese Immobilie befindet sich in einer ruhigen Wohngegend, die sowohl die Ruhe des Landlebens als auch die Annehmlichkeiten der Stadt bietet.
- Zentrale Lage: Nur wenige Gehminuten vom Stadtzentrum entfernt, genießen Sie bequemen Zugang zu allen notwendigen Einrichtungen, einschließlich Supermärkten, Bäckereien, Restaurants und Cafés.
- Hervorragende Verkehrsanbindung: Die Bundesstraße B260 ist nur wenige Minuten entfernt und bietet eine schnelle Verbindung zu den größeren Städten Wiesbaden und Frankfurt. Der nächste Bahnhof befindet sich in Niedernhausen, etwa 25 Autominuten entfernt.
- Nahe gelegene Schulen und Kindergärten: Ideal für Familien, da mehrere Bildungseinrichtungen in unmittelbarer Nähe liegen.
- Grüne Umgebung: Genießen Sie die Nähe zu Parks und Wanderwegen. Der nahe gelegene Taunus lädt zu ausgiebigen Spaziergängen und Outdoor-Aktivitäten ein.
- Historisches Flair: Katzenelnbogen ist bekannt für seine gut erhaltene mittelalterliche Burg und die historische Altstadt, die einen reizvollen Kontrast zur modernen Wohnatmosphäre bietet.
Diese Lage vereint Komfort, Sicherheit und eine idyllische Umgebung, perfekt für jeden, der eine neue Mietimmobilie sucht.
Adresse
56368 Katzenelnbogen
Interessante Orte
Preis- und Lageinformationen
Preistrend für Bestandsimmobilien in Katzenelnbogen