Willkommen in Ihrem neuen Zuhause! Diese exklusive 4-Zimmer-Wohnung im 3. Obergeschoss eines modernen Neubaus aus dem Jahr 2022 vereint elegantes Design, durchdachte Architektur und ein unvergleichliches Wohngefühl. Auf ca. 135 m² erwartet Sie ein Ambiente zum Ankommen und Wohlfühlen.
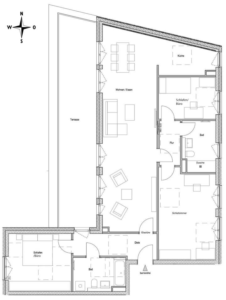
Das Herzstück der Wohnung ist der Wohn- und Essbereich mit ca. 45 m², der durch seine Offenheit und Helligkeit begeistert. Von hier aus gelangen Sie direkt auf die großzügige Dachterrasse mit rund 32 m² in sonniger Westausrichtung – ein idealer Ort für entspannte Abende, gesellige Runden mit Freunden oder einfach Momente der Ruhe über den Dächern der Stadt.
Der offene Küchenbereich fügt sich harmonisch in das Raumkonzept ein und ist mit einer hochwertigen Einbauküche mit viel Stauraum ausgestattet – perfekt für alle, die gerne kochen und genießen.
Drei freundliche Schlafzimmer bieten Platz für die Familie, Gäste oder ein Homeoffice. Zwei geschmackvoll gestaltete Bäder (eines mit Badewanne und Waschmaschinenanschluss, eines mit Dusche) sorgen für zusätzlichen Komfort im Alltag. Zwei Dielenbereiche schaffen Struktur und Stauraum.
Edle Materialien unterstreichen den gehobenen Charakter dieser Wohnung: Eichenparkett in den Wohnräumen (im Wohnzimmer Fischgrätenmuster), hochwertige Fliesen in Bädern und Küche sowie eine Fußbodenheizung für behagliche Wärme in allen Räumen.
Dank der bodentiefen Fenster mit französischen Balkonen ist die Wohnung besonders hell und freundlich. Elektrische Rollläden sorgen für zusätzlichen Komfort.
Die ruhige Lage im geschützten Rückgebäude bietet eine Oase der Ruhe.
Ein Kellerabteil mit Stromanschluss und Beleuchtung gehört selbstverständlich zur Wohnung. Im liebevoll gestalteten Innenhof laden Sitzgelegenheiten, Fahrradstellplätze und Kinderspielgeräte zum Verweilen ein.
Ein Tiefgarageneinzelstellplatzstellplatz rundet das Angebot ab.
Der Mietvertrag ist unbefristet und ohne Index- oder Staffelmiete gestaltet. Perspektivisch besteht die Option, dass die Eigentümerin im Ruhestand selbst wieder nach München zurückkehren möchte.
Helle 4-Zimmer-Wohnung mit 32 m² Dachterrasse, hochwertiger Ausstattung & Tiefgarage
81241 München
Die vollständige Adresse der Immobilie erhalten Sie vom Anbieter.
Auf Karte anzeigen
Die vollständige Adresse der Immobilie erhalten Sie vom Anbieter.
Infos
| Wohnungskategorie | Dachgeschoss |
|---|---|
| Etage | 3 von |
| Wohnfläche ca. | 135 m2 |
| Bezugsfrei ab | 01.01.2026 |
| Zimmer | 4 |
| Schlafzimmer | 3 |
| Badezimmer | 2 |
| Haustiere | Nein |
| Garage/Stellplatz | Tiefgarage |
| Anzahl Garage/Stellplatz | 1 |
Kosten
| Kaltmiete |
2.900 € |
|---|---|
| Nebenkosten | + 470 € |
| Heizkosten | keine Angabe |
| Gesamtmiete | 3.470 € (zzgl. Heizkosten) |
| Miete für Garage/Stellplatz | 100 € |
| Kaution o. Genossenschaftsanteile | 9000 |
Weiter mieten oder doch kaufen?
Wer in Miete wohnt, überweist dem Vermieter im Laufe der Jahre hohe Summen, die sich
auch in die eigenen vier Wände investieren lassen könnten.
Bausubstanz & Energieausweis
| Baujahr | 2022 |
|---|---|
| Objektzustand | Neuwertig |
| Heizungsart | Fußbodenheizung |
| Wesentliche Energieträger | Fernwärme |
| Energieausweis | liegt vor |
| Energieausweistyp | Bedarfsausweis |
| Energieverbrauchskennwert | 53,1 kWh/(m²*a) |
| Energieeffizienzklasse | B |
53,1
kWh/(m²*a)
Energieeffizienzklasse B
- A+
- A
- B
- C
- D
- E
- F
- G
- H
- 0
- 25
- 50
- 75
- 100
- 125
- 150
- 175
- 200
- 225
- >250
Beschreibung des Objekts
Ausstattung
* Eichenparkett
* Fußbodenheizung in allen Räumen
* Raumhöhe ca. 2,50 m
* Bodentiefe Fenster mit französischen Balkonen
* Elektrische Rollläden
* Moderne Einbauküche (Oberschränke bis direkt unter die Decke) inkl. Elektrogroßgeräten
* 2 Bäder mit Platz für Waschmaschine und Trockner
* TG-Einzelstellplatz
* Kellerabteil
Lage
Die Wohnung befindet sich in München-Pasing, einer der begehrtesten Wohnlagen im Münchner Westen – nur wenige Schritte von der idyllischen Würm entfernt. Hier verbinden sich städtisches Leben und naturnahe Ruhe auf ideale Weise.
Der Pasinger Bahnhof mit S-Bahn-, Regional- und Fernverkehr, zahlreichen Buslinien und der Straßenbahn ist in nur 8 Gehminuten erreichbar. Von dort aus gelangen Sie in rund 10 Minuten direkt in die Münchner Innenstadt – schnell, bequem und flexibel.
Im direkten Umfeld finden Sie alle Einkaufsmöglichkeiten des täglichen Bedarfs, darunter die beliebten Pasing Arcaden mit vielfältigen Shops, Restaurants und Cafés (ebenfalls nur etwa 10 Gehminuten entfernt). Zudem bietet das Viertel ein breites Angebot an Sport- und Freizeitmöglichkeiten – ob Joggen entlang der Würm, Yoga im Park oder ein Cafébesuch am Wochenende.
Auch Autofahrer profitieren von der optimalen Verkehrsanbindung: Die Autobahnen A8 und A96 sind in wenigen Minuten erreichbar und verbinden Sie mit dem Umland und den bayerischen Seen.
Hier wohnen Sie ruhig, grün und dennoch mitten im Leben – ein Standort, der Lebensqualität und urbanen Komfort perfekt vereint.
Grundriss
Grundriss
>
>
Adresse
81241 München
Interessante Orte
Preis- und Lageinformationen
Preistrend für Bestandsimmobilien in Pasing