Dieses freistehende Einfamilienhaus aus dem Jahr 1968 überzeugt durch seine außergewöhnliche Lage mit unverbaubarem Panoramablick über Weinheim, die Burgen Windeck und Wachenburg sowie weit in die Rheinebene hinein. Auf einem ca. 842 m² großen Grundstück gelegen, bietet das modernisierte und einzugsbereite Haus mit rund 208 m² Wohnfläche ein großzügiges Zuhause mit viel Licht, Raum und Wohnqualität.
Der großzügige Wohn- und Essbereich mit Kamin bildet das Herzstück des Hauses. Bodentiefe Fenster und eine Deckenhöhe von ca. 2,50 m schaffen ein offenes, helles Ambiente. Die angrenzende Einbauküche fügt sich harmonisch in das Wohnkonzept ein und bietet direkten Zugang zu den beiden großen Balkonen – mit spektakulärer Aussicht über die Stadt und die umliegende Landschaft.
Im Obergeschoss und Untergeschoss befinden sich mehrere Schlaf- und Arbeitszimmer, die sich flexibel an individuelle Bedürfnisse anpassen lassen.
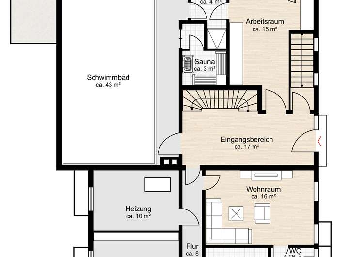
Zusätzlich stehen weitere Nutzräume zur Verfügung, darunter ein ca. 13 m² großer Kellerraum im Untergeschoss und ein geräumiger Hausanschlussraum mit ca. 37 m² auf einer Zwischenebene zwischen Garage und Untergeschoss. Im Untergeschoss befindet sich ein stillgelegtes Hallenschwimmbad mit Sauna, welches jedoch nicht als Nutzfläche zur Verfügung steht. Die Eigentümer bitten von Anfragen bezüglich der Reaktivierung und Nutzung abzusehen. Der gepflegte Garten mit Weinreben, alten Mauern und hoher Privatsphäre lädt zum Entspannen ein und spiegelt den besonderen Charakter dieses Anwesens wider.
Technisch und energetisch ist das Haus solide ausgestattet: Eine Gaszentralheizung (Baujahr 2008), doppeltverglaste Fenster sowie eine Sprechanlage gehören ebenso zur Ausstattung wie eine massive Doppelgarage, die durch ein komfortables Innentreppenhaus zu erreichen ist.
Dieses Haus verbindet klassische Architektur mit modernem Wohnkomfort, ruhige Lage mit Nähe zur Stadt (Grundschule, Kindergarten und Lebensmittelgeschäfte sind fußläufig erreichbar) und unvergleichliche Aussicht mit hohem Freizeitwert – ideal für Familien, die ein Zuhause mit Charakter und Weitblick suchen.
Großes Einfamilienhaus mit bester Aussicht
69469 Weinheim
Die vollständige Adresse der Immobilie erhalten Sie vom Anbieter.
Auf Karte anzeigen
Die vollständige Adresse der Immobilie erhalten Sie vom Anbieter.
Infos
| Haustyp | Einfamilienhaus |
|---|---|
| Etagenzahl | 1 |
| Wohnfläche ca. | 208 m2 |
| Nutzfläche | 89 m2 |
| Grundstücksfläche | 842 m2 |
| Bezugsfrei ab | ab sofort |
| Zimmer | 6 |
| Schlafzimmer | 4 |
| Badezimmer | 3 |
| Haustiere | Nach Vereinbarung |
| Garage/Stellplatz | Garage |
| Anzahl Garage/Stellplatz | 2 |
Kosten
| Kaltmiete |
2.550 € |
|---|---|
| Nebenkosten | + 450 € |
| Heizkosten | keine Angabe |
| Gesamtmiete | 3.000 € (zzgl. Heizkosten) |
| Kaution o. Genossenschaftsanteile | 7650 |
Weiter mieten oder doch kaufen?
Wer in Miete wohnt, überweist dem Vermieter im Laufe der Jahre hohe Summen, die sich
auch in die eigenen vier Wände investieren lassen könnten.
Bausubstanz & Energieausweis
| Baujahr | 1968 |
|---|---|
| Objektzustand | Vollständig Renoviert |
| Qualität der Austattung | Normal |
| Heizungsart | Zentralheizung |
| Wesentliche Energieträger | Gas |
| Energieausweis | liegt vor |
| Energieausweistyp | Bedarfsausweis |
| Energieverbrauchskennwert | 221,7 kWh/(m²*a) |
| Energieeffizienzklasse | G |
221,7
kWh/(m²*a)
Energieeffizienzklasse G
- A+
- A
- B
- C
- D
- E
- F
- G
- H
- 0
- 25
- 50
- 75
- 100
- 125
- 150
- 175
- 200
- 225
- >250
Beschreibung des Objekts
Lage
Die exklusive Immobilie befindet sich in der charmanten Stadt
Weinheim, einer Perle in der Metropolregion Rhein-Neckar. Diese
Gegend ist bekannt für ihre malerische Altstadt, die mit ihren
historischen Gebäuden und Kopfsteinpflasterstraßen ein
unvergleichliches Flair bietet. Weinheim zieht anspruchsvolle
Käufer mit seiner Kombination aus ländlichem Charme und
städtischem Komfort an.
Die Infrastruktur ist hervorragend: Der Bahnhof Weinheim ist nur 5
Minuten mit dem Auto entfernt und bietet schnelle Verbindungen
nach Mannheim und Heidelberg, die jeweils in weniger als 30
Minuten mit dem Zug erreichbar sind. Die Autobahn A5 ist ebenfalls
in der Nähe und ermöglicht eine bequeme Anbindung an Frankfurt
am Main, das in etwa einer Stunde zu erreichen ist.
Für Freizeitaktivitäten bietet Weinheim zahlreiche Möglichkeiten.
Der Exotenwald und der Hermannshof sind perfekte Orte für
entspannte Spaziergänge in der Natur. Kulturinteressierte können
das Schloss Weinheim oder die nahegelegene Wachenburg
besuchen. Die Stadt ist auch bekannt für ihre ausgezeichneten
Restaurants und Weingüter, die kulinarische Erlebnisse auf
höchstem Niveau versprechen.
Besondere Merkmale der Umgebung sind der Marktplatz mit seinen
lebhaften Cafés und der malerische Blick auf die beiden Burgen, die
Weinheim zu einem wahrhaft exklusiven Wohnort machen. Diese
Lage verbindet auf einzigartige Weise historische Eleganz mit
modernem Komfort und verspricht ein unvergleichliches
Lebensgefühl.
Grundriss
>
>
Adresse
69469 Weinheim
Interessante Orte
Preis- und Lageinformationen
Preistrend für Bestandsimmobilien in Weinheim