Inmitten einer ruhigen und grünen Wohnlage von Wedel befindet sich dieses gepflegte Mehrfamilienhaus aus dem Jahr 1961. Mit insgesamt 67 Wohneinheiten bietet das Objekt einen ausgewogenen Wohnkomfort.
Die Immobilie ist Teil einer großzügigen Wohnanlage mit weitläufigen Grünflächen. Ein besonderes Highlight sind die Balkone, die vielen Wohnungen angegliedert sind – sie eröffnen einen weiten, unverbaubaren Blick über Wedel und laden zum Entspannen im Freien ein.
Geräumige Wohnung mit traumhaftem Ausblick zur Miete in Wedel - Wentzel Dr.
Autal 20,
22880 Wedel
Auf Karte anzeigen
Infos
| Wohnungskategorie | Etagenwohnung |
|---|---|
| Etage | 9 von |
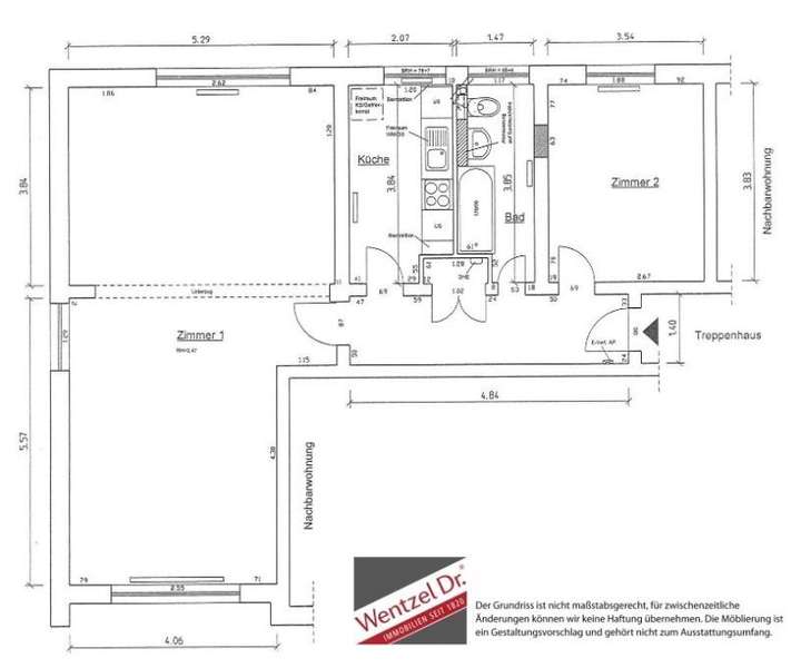
| Wohnfläche ca. | 79 m2 |
| Bezugsfrei ab | 15.11.2025 |
| Zimmer | 2 |
| Anzahl Garage/Stellplatz | 1 |
Kosten
| Kaltmiete |
990 € |
|---|---|
| Nebenkosten | + 250 € |
| Heizkosten | in Nebenkosten enthalten |
| Gesamtmiete | 1.240 € |
| Miete für Garage/Stellplatz | 60 € |
| Kaution o. Genossenschaftsanteile | 2.970,00 € |
Weiter mieten oder doch kaufen?
Wer in Miete wohnt, überweist dem Vermieter im Laufe der Jahre hohe Summen, die sich
auch in die eigenen vier Wände investieren lassen könnten.
Bausubstanz & Energieausweis
| Baujahr | 1961 |
|---|---|
| Heizungsart | Öl-Heizung |
| Wesentliche Energieträger | Öl |
| Energieausweis | liegt vor |
| Energieausweistyp | Verbrauchsausweis |
| Energieverbrauchskennwert | 108,0 kWh/(m²*a) |
| Energieeffizienzklasse | D |
108,0
kWh/(m²*a)
Energieeffizienzklasse D
- A+
- A
- B
- C
- D
- E
- F
- G
- H
- 0
- 25
- 50
- 75
- 100
- 125
- 150
- 175
- 200
- 225
- >250
Beschreibung des Objekts
Ausstattung
Die lichtdurchflutete Wohnung ist mit einer Küchenzeile ausgestattet, welche Platz für einen Kühlschrank, Oberschränke und eine Wasch- oder Geschirrspülmaschine lässt. Das Vollbad ist mit weißen Wand- und dunklen Bodenfliesen versehen und verfügt über ein Fenster.
Die Wohnräume sind mit einem hellen Linoleum-Boden ausgelegt.
Zu der Wohnung gehört ein Bodenraum, welcher zusätzliche Abstellfläche bietet. Zudem kann die gemeinschaftliche Waschküche und der Trockenboden mit benutzt werden.
Lage
Zuhause in Wedel: Die Stadt liegt westlich von Hamburg an der Unterelbe. Umgeben von Städten wie Schenefeld, Pinneberg oder Holm zählt Wedel zum Landkreis Pinneberg. Bekannt ist die Stadt unter anderem für sein Viehhandel, der noch heute über den Wedeler Ochsen- und Frühjahrsmarkt erhalten blieb.
Die städtebauliche Struktur zeichnet sich besonders durch Ein- und Zweifamilienhäuser sowie Miet- und Eigentumswohnungen und Reihenhäuser aus. Der Wohnungsneubau der letzten Jahre hat das familien- wie seniorenfreundliche Wedel zu einem Magneten für Wohnungssuchende werden lassen. Kein Wunder bei diesem idyllischen Wohnort zwischen Weiden und Wiesen!
Wedel ist perfekt vernetzt: Dafür sorgt neben der Anbindung an die B431 und sämtliche Buslinien des VHH innerhalb des HVV, vor allem der Anschluss an die S1 Richtung Hamburg-Altona und Poppenbüttel. So ist Hamburg in nur 30 Minuten erreicht. Einkäufe für den täglichen Bedarf sowie Post, Banken, Cafés und Freizeiteinrichtungen befinden sich in Laufentfernung. Der Wochenmarkt Wedel bietet das klassische Lebensmittelsortiment und besticht u.A. mit regional frischen Obst- und Gemüse-Ständen. Die Einkaufsstraße bietet eine Vielfalt verschiedener Mode- und Bekleidungsläden, während weitere Geschäfte des Ortes wie Baumärkte, Reisebüros oder Lebensmittelläden für ein rundes Einkaufserlebnis sorgen. Die Welau Arcaden Wedel ist nur eines von vielen Anlaufstellen.
Nahe gelegene Kindergärten, Grund- und weiterführende Schulen, wie die Moorwegschule oder die Gebrüder-Humboldt-Schule Wedel, sowie Ärzte und Apotheken erleichtern den Alltag enorm. Die Badebucht Wedel ist wohl eine der beliebtesten im Süden Schleswig-Holsteins. Der Klövensteen ist nicht weit gelegen und beherbergt mit seinem malerischen Wald das Wildgehege und das Schnaakenmoor. Naturliebhaber zieht es ebenfalls in die Wedeler Marsch zur NABU Vogelstation. Die Holmer Sandberge sind ebenfalls nicht weit, in nur 20 Minuten ist das Naturschutzgebiet erreicht und lädt zu ausgiebigen Spaziergängen durch die Dünenlandschaft ein. Unsere Empfehlung: Das NEUE Schlauer Fährhaus und die Schiffsbegrüßungsanlage Willkomm-Höft mit seinem mediterranen Restaurant und Blick auf die berühmte Schiffbegrüßungsanlage der Elbe.
Die Stadt Wedel gehört zum Kreis Pinneberg im südlichen Schleswig-Holstein und hat etwa 32.000 Einwohner. Sie liegt westlich von Hamburg an der Unterelbe.
Wedel bietet zahlreiche touristische Anziehungspunkte, wie die Schiffsbegrüßungsanlage Willkomm-Höft, den Hamburger Yachthafen (Norddeutschlands größten Yachthafen, der derzeit 1950 Liegeplätze umfasst), den Roland (Wahrzeichen Wedels) und die Wedeler Marsch (ein Naturschutz- und Feuchtgebiet).
Die Stadt wird in nordost-südwestlicher Richtung von der Wedeler Au durchquert, die teilweise zu einem Mühlenteich aufgestaut ist.
Wedel liegt vollständig im Bereich des Hamburger Verkehrsverbundes (HVV).
Eine regelmäßige Personenfährverbindung über die Elbe wird von der Lühe-Schulau-Fähre GmbH (LSF) betrieben. Vom Frühjahr bis zum Herbst ist Wedel Haltepunkt einer Expressfähre von und nach Helgoland, die am Willkomm-Höft anlegt. Während der Sommersaison bestehen über die HADAG Verbindungen zu den Hamburger St.-Pauli-Landungsbrücken.
Sonstige Angaben
Bei Mietvertragsabschluss wird ein Kündigungsausschluss von einem Jahr und eine Indexmiete vereinbart.
Weitere Dokumente
EnergieausweisGrundriss
Grundriss
>
>
Adresse
Autal 20, 22880 Wedel
Interessante Orte
Preis- und Lageinformationen
Preistrend für Bestandsimmobilien in Wedel