Neubauwohnungen die keine Wünsche offen lassen in schöner/ruhiger Lage!
Mietbeginn: 01.06.2026
Alle Wohnungen im neugebauten Haus 1 und Haus 2 verfügen über folgende Ausstattung:
* einzigartige Grundrisse mit beeindruckender Atmosphäre
* große, lichtdurchflutete Fenster
* hochwertige Design-Fußböden
* Fußbodenheizung (über eine sehr ökologische / ökonomische Pellet-Heizung zzgl. einer Gastherme als "Backup")
* Bad und Gäste-WC mit eingebauten LED-Spots
* Badezimmer (Tageslicht) mit Badewanne und ebenerdiger Dusche, teilw. zzgl. Gästebad bzw. WC
* großzügige Handtuchheizkörper
* Glasfaser-Highspeed-Internet (Download bis zu 1000 Mbit/s), WLAN in Netzwerkverteilung (Wand) integriert
* großzügige Balkone, Terrassen mit Gartennutzung
* 1 x Keller-Bereich pro Wohnung
Neubau, schöne Lage, Aufzug, FBH, Garagen, Stellplätze! Haus 2, 1C, WE15
Egghalde 1,
08371 Glauchau
Auf Karte anzeigen
Infos
| Wohnungskategorie | Etagenwohnung |
|---|---|
| Wohnfläche ca. | 83 m2 |
| Bezugsfrei ab | 01.06.2026 |
| Zimmer | 3 |
Kosten
| Kaltmiete |
867 € |
|---|---|
| Nebenkosten | + 229 € |
| Heizkosten | in Nebenkosten enthalten |
| Gesamtmiete | 1.096 € |
Weiter mieten oder doch kaufen?
Wer in Miete wohnt, überweist dem Vermieter im Laufe der Jahre hohe Summen, die sich
auch in die eigenen vier Wände investieren lassen könnten.
Bausubstanz & Energieausweis
| Baujahr | 2026 |
|---|---|
| Objektzustand | Erstbezug |
| Qualität der Austattung | Luxus |
| Heizungsart | Zentralheizung |
| Wesentliche Energieträger | Pelletheizung |
| Energieausweis | liegt vor |
| Energieausweistyp | Bedarfsausweis |
| Energieverbrauchskennwert | 99,7 kWh/(m²*a) |
| Energieeffizienzklasse | D |
99,7
kWh/(m²*a)
Energieeffizienzklasse D
- A+
- A
- B
- C
- D
- E
- F
- G
- H
- 0
- 25
- 50
- 75
- 100
- 125
- 150
- 175
- 200
- 225
- >250
Beschreibung des Objekts
Ausstattung
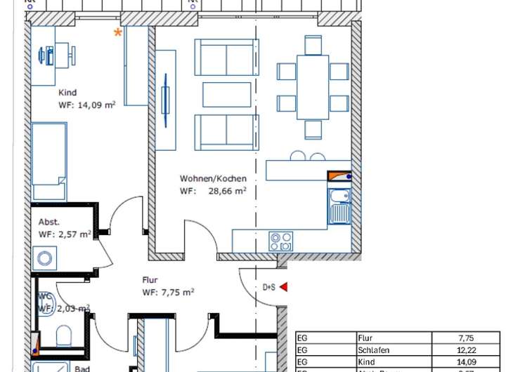
Ausstattung der Wohnung Nr.15 im EG mit 83,33 m²:
* 3 Zimmer, Bad, Gäste-WC
* Terrasse, Abstellraum in der Wohnung, 1 Kellerabteil im Haus 1
* Fahrstuhlzugang, barrierearm
* wählbar: 1 x Kfz-Stellplatz pro Wohnung für 35,00 Euro pro Monat (Anmietung von weiteren Parkplätzen nach Verfügbarkeit möglich)
* wählbar: 1 x Garage pro Wohnung für 85,00 Euro pro Monat (Anmietung von weiteren Garagen nach Verfügbarkeit möglich)
Lage
Die insgesamt 25 hochwertigen Neubauwohnungen befinden sich im Herzen Glauchaus.
Mit einem optimalen Mix aus weitläufigen Grünanlagen und einem breiten Spektrum an Einkaufs- und Versorgungsmöglichkeiten erfreut sich das Gebiet nicht nur bei Familien mit Kindern wachsender Beliebtheit.
Die medizinische Versorgung ist durch Arztpraxen und das städtische Krankenhaus in Glauchau garantiert.
Für die Kinderbetreuung stehen in der nähren Umgebung mehrere Kindertagesstätten bzw. -horte zur Verfügung. Die Grundschule "Schule am Rosarium", die Wehrdigtschule und das Georgius-Agricola Gymnasium sind von der Egghalde aus in nur wenigen Minuten zu Fuß erreichbar.
In unmittelbarer Nähe befinden sich verschiedene Einkaufsmöglichkeiten und Restaurants. Das Stadtzentrum mit Rathaus ist zu Fuß in 10 Minuten zu erreichen.
In gleichem Maße vielfältig gestaltet sich das in unmittelbarer Nähe vorhandene Freizeit- und Sportangebot zum Beispiel im Gründelpark, Stausee Glauchau und im Schloss Glauchau.
Sonstige Angaben
Alle im Exposé enthaltenen Angaben beruhen auf Aussagen des Eigentümers, für deren Richtigkeit keine Gewährleistung übernommen wird.
Weitere Dokumente
Grundriss Haus 2, 1C_WE 15Adresse
Egghalde 1, 08371 Glauchau
Interessante Orte
Preis- und Lageinformationen
Preistrend für Bestandsimmobilien in Glauchau