Dieser modernisierte, großzügige Bungalow mit der optimalen Raumaufteilung wurde 1972 errichtet. Das herrliche Gartengrundstück ist ein Traum für jeden Gartenliebhaber. 2022 wurden Kunststofffenster mit 3-Fach-Isolierverglasung eingebaut. Die Beheizung des Hauses erfolgt über eine 2021 installierte, moderne und energiesparende Ölbrennwertheizung. Ein offener Kamin im Wohnbereich sorgt für eine heimelige Atmosphäre. Eine Einbauküche ist nicht vorhanden.
Die Strom- und Heizkosten sind nicht in den Nebenkosten enthalten. Diese rechnet der Mieter direkt über den jeweiligen Versorger ab.
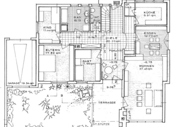
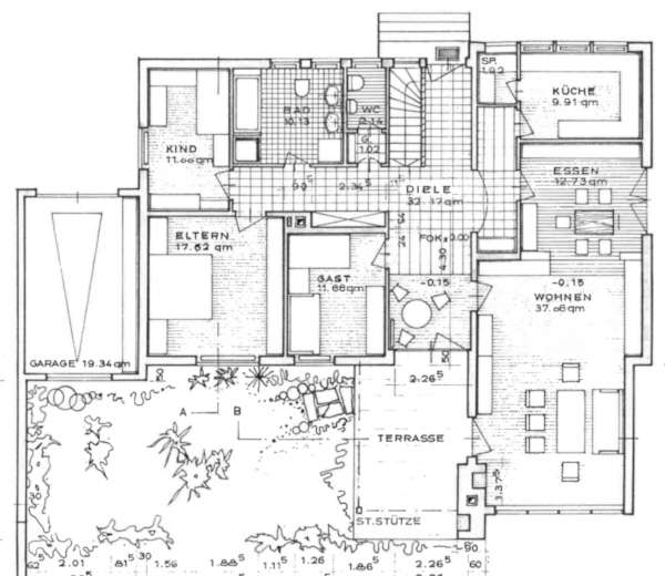
Raumaufteilung:
KG: voll unterkellert
EG:
Wohnen/Essen ca. 49,79 m²
Küche ca. 9,91 m²
Schlafen ca. 17,62 m²
Bad/Dusche/WC ca. 10,13 m²
Kind 1 ca. 11,00 m²
Kind 2 ca. 11,66 m²
Diele ca. 32,17 m²
WC ca. 2,14 m²
Flur ca. 1,02 m²
Für Gartenliebhaber! Schöner Bungalow mit großem Garten
94327 Bogen
Die vollständige Adresse der Immobilie erhalten Sie vom Anbieter.
Auf Karte anzeigen
Die vollständige Adresse der Immobilie erhalten Sie vom Anbieter.
Infos
| Haustyp | Einfamilienhaus |
|---|---|
| Wohnfläche ca. | 160 m2 |
| Grundstücksfläche | 1.124 m2 |
| Bezugsfrei ab | 01.03.2026 |
| Zimmer | 5 |
| Schlafzimmer | 3 |
| Badezimmer | 1 |
| Haustiere | Nach Vereinbarung |
| Anzahl Garage/Stellplatz | 1 |
Kosten
| Kaltmiete |
1.300 € |
|---|---|
| Nebenkosten | + 130 € |
| Heizkosten | keine Angabe |
| Gesamtmiete | 1.430 € |
| Kaution o. Genossenschaftsanteile | 3.900,00 EUR |
Weiter mieten oder doch kaufen?
Wer in Miete wohnt, überweist dem Vermieter im Laufe der Jahre hohe Summen, die sich
auch in die eigenen vier Wände investieren lassen könnten.
Bausubstanz & Energieausweis
| Baujahr | 1972 |
|---|---|
| Objektzustand | Modernisiert |
| Qualität der Austattung | Normal |
| Heizungsart | Zentralheizung |
| Wesentliche Energieträger | Öl |
| Energieausweis | liegt zur Besichtigung vor |
Beschreibung des Objekts
Ausstattung
Kunststofffenster/3-fach-Verglasung (2022)
Fliesen- und Laminatböden
Ölzentralheizung (2021)
Wintergarten mit Ausgang zum Garten
offener Kamin im Wohnzimmer
schöner großer Garten
überdachte Terrasse mit offenen Kamin
Garage
Lage
Der Bungalow steht in Furth, einem Ortsteil der Stadt Bogen. Die Einkaufsmöglichkeiten für den täglichen Bedarf finden Sie vor Ort. Grundschule und Kindergarten gibt es in Oberalteich, die weiterführenden Schulen finden sie im Schulzentrum der Stadt Bogen. Beste Gesundheitsversorgung ist durch das Krankenhaus und Ärzte der verschiedensten Fachgebiete in der ca. 2 km entfernten Stadt Bogen gewährleistet.
Die Anschlussstellen zur B 20 und zur A 3 erreichen Sie in nur wenigen Fahrminuten.
Sonstige Angaben
Der Bungalow ist zum 01.03.2026 beziehbar.
Der Mietvertrag wird auf unbestimmte Dauer abgeschlossen. Der Mieter kann aber die Wohnung die ersten beiden Jahre nicht kündigen.
Anmietungsvoraussetzungen:
- festes Arbeitsverhältnis
- gute Bonität
Bitte haben Sie Verständnis dafür, dass wir Ihnen detaillierte Auskünfte zur Immobilie bzw. Objektunterlagen nur unter Angabe Ihrer vollständigen Adresse und Telefonnummer zukommen lassen können.
Grundriss
Grundriss EG
>
>
Adresse
94327 Bogen
Interessante Orte
Preis- und Lageinformationen
Preistrend für Bestandsimmobilien in Bogen