Dieses hochwertig neu aufgebaute und modernisierte Endreihenhaus befindet sich in einer der begehrtesten Wohnlagen von Hamburg-Rissen. Das Haus wurde im Jahr 2016 vollständig kernsaniert, erweitert und mit neuer Ausstattung sowie moderner Haustechnik versehen. Eine detaillierte Dokumentation der Renovierung liegt vor und kann bei Interesse eingesehen werden.
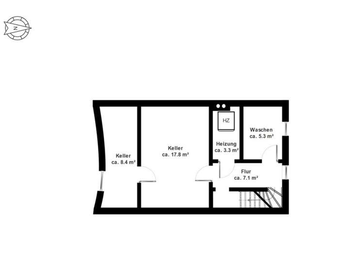
Das Haus bietet ca. 150 m² Wohnfläche auf zwei Ebenen sowie ein vollständig nutzbares Kellergeschoss und damit großzügigen Raum für Familien, die Wert auf Komfort und Qualität legen.
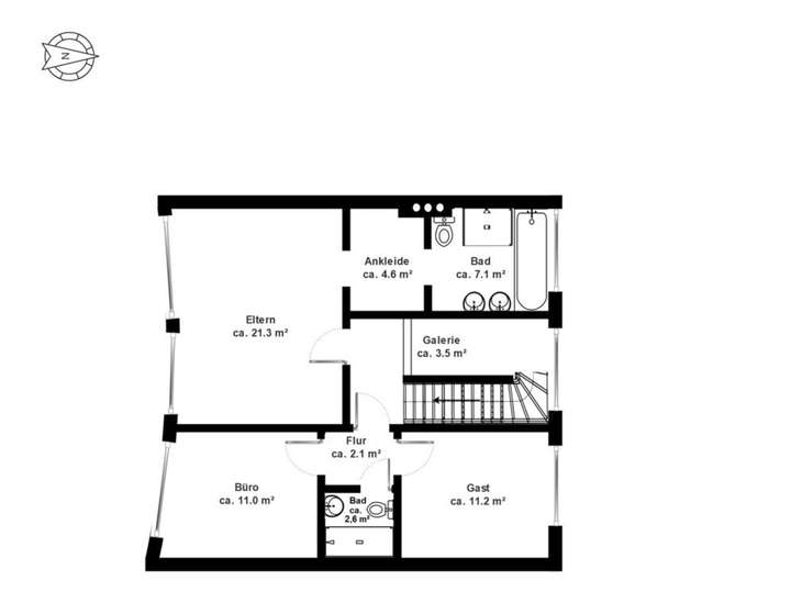
Es verfügt über vier gut geschnittene Schlafzimmer, darunter ein großes Hauptschlafzimmer mit Einbauschrank und eigenem Bad mit Badewanne. Im Erdgeschoss befindet sich ein Gästezimmer mit eigenem Duschbad, das sich auch ideal als Büro eignet. Die beiden weiteren Zimmer im Obergeschoss eignen sich perfekt als Kinderzimmer, Gästezimmer oder Arbeitszimmer.
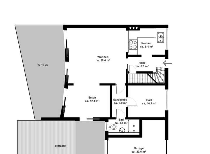
Eine helle, voll ausgestattete Küche sowie der offene Wohn- und Essbereich schaffen eine freundliche und einladende Atmosphäre. Hochwertige Materialien, moderne Ausstattung und durchdachte Details finden sich im gesamten Haus. Darüber hinaus verfügt die Immobilie über drei Bäder, ein voll unterkellertes Geschoss mit viel Stauraum oder Platz für Hobbys sowie eine private Garage.
Das Haus liegt in einer ruhigen und grünen Wohnstraße mit hervorragender Anbindung: Die nächste Bushaltestelle (Bookweetenkamp) ist nur etwa 2-3 Gehminuten entfernt, der S-Bahnhof Rissen (S1) rund 12 Minuten zu Fuß. Das Rissener Ortszentrum mit Einkaufsmöglichkeiten, Restaurants und Wochenmarkt ist schnell erreichbar. Die Elbe mit ihren Spazierwegen liegt nur etwa 15 Gehminuten entfernt. Die Hamburger Innenstadt ist mit dem Auto in rund 30 Minuten erreichbar.
Diese Immobilie vereint ruhiges, familienfreundliches Wohnen mit optimaler Anbindung - ideal für Familien und Berufstätige, die Komfort und Lebensqualität gleichermaßen schätzen.
Besonderheiten:
* Ca. 150 m² Wohnfläche + voll nutzbarer Keller
* Kompletter Neuaufbau und Erweiterung im Jahr 2016 (Renovierungsdokumentation vorhanden)
* 4 Schlafzimmer (inkl. Hauptschlafzimmer mit Ensuite-Bad)
* 3 Bäder (2 ensuite, 1 gemeinsames)
* Hochwertige Ausstattung und moderne Einbauküche
* Private Garage
* 2-3 Gehminuten zur Bushaltestelle Bookweetenkamp
* 12 Gehminuten zum S-Bahnhof Rissen (S1)
* Nähe zu Rissener Zentrum, Geschäften und Schulen
* Ruhige, familienfreundliche Wohnlage
* Die Elbe mit ihren Stränden und Wanderwegen erreichen Sie in nur 15 Minuten zu Fuß - perfekt für Spaziergänge und Naturerlebnisse
* Gymnasium Rissen in ca. 8 Minuten zu Fuß
* Kindergarten Zaubermäuse nur wenige Schritte entfernt
Modernes Familienhaus nahe der Elbe - Ruhiges Wohnen in Rissen
22559 Hamburg
Die vollständige Adresse der Immobilie erhalten Sie vom Anbieter.
Auf Karte anzeigen
Die vollständige Adresse der Immobilie erhalten Sie vom Anbieter.
Infos
| Haustyp | Reiheneckhaus |
|---|---|
| Etagenzahl | 2 |
| Wohnfläche ca. | 150 m2 |
| Nutzfläche | 62,26 m2 |
| Grundstücksfläche | 376 m2 |
| Bezugsfrei ab | nach Absprache |
| Zimmer | 5 |
| Schlafzimmer | 4 |
| Badezimmer | 3 |
| Garage/Stellplatz | Garage |
| Anzahl Garage/Stellplatz | 1 |
Kosten
| Kaltmiete |
3.199 € |
|---|---|
| Nebenkosten | + 270 € |
| Heizkosten | + 130 € |
| Gesamtmiete | 3.599 € |
| Kaution o. Genossenschaftsanteile | 9597 EUR |
Weiter mieten oder doch kaufen?
Wer in Miete wohnt, überweist dem Vermieter im Laufe der Jahre hohe Summen, die sich
auch in die eigenen vier Wände investieren lassen könnten.
Bausubstanz & Energieausweis
| Baujahr | 2016 |
|---|---|
| Objektzustand | Saniert |
| Heizungsart | Zentralheizung |
| Wesentliche Energieträger | Gas |
| Energieausweis | liegt vor |
| Energieausweistyp | Bedarfsausweis |
| Energieverbrauchskennwert | 104,8 kWh/(m²*a) |
| Energieeffizienzklasse | D |
104,8
kWh/(m²*a)
Energieeffizienzklasse D
- A+
- A
- B
- C
- D
- E
- F
- G
- H
- 0
- 25
- 50
- 75
- 100
- 125
- 150
- 175
- 200
- 225
- >250
Beschreibung des Objekts
Ausstattung
Terrasse, Garten, Keller, Vollbad, Duschbad, Einbauküche, Gäste-WC, Parkett
Bemerkungen:
Das Haus wurde im Jahr 2016 vollständig neu aufgebaut, erweitert und mit moderner Haustechnik ausgestattet. Dabei wurden sämtliche Installationen - Elektrik, Sanitär, Heizung und Dämmung - komplett erneuert. Im gesamten Haus kamen hochwertige Materialien und moderne Ausstattungsdetails zum Einsatz.
Die Küche ist mit hochwertigen Einbaugeräten von Miele, Siemens und AEG ausgestattet und bietet großzügigen Stauraum sowie eine funktionale Raumaufteilung - ideal für den täglichen Gebrauch und zum Kochen mit Familie oder Freunden.
In den Wohnräumen wurde echtes Eichenholzparkett verlegt, während Küche, Bäder und Eingangsbereich mit edlen Natursteinplatten ausgestattet sind. Diese Kombination verleiht dem Haus eine warme, hochwertige Atmosphäre und sorgt zugleich für Langlebigkeit und einfache Pflege.
Die Bäder überzeugen durch moderne Armaturen, elegante Fliesen und ein ansprechendes Design. Das große Hauptschlafzimmer verfügt über einen Einbauschrank sowie ein eigenes Bad mit Badewanne.
Die Beheizung erfolgt über eine moderne Gas-Zentralheizung, die für effiziente Wärme und hohen Wohnkomfort sorgt.
Der Außenbereich verfügt über zwei Terrassen - eine nach Osten und eine nach Süden ausgerichtet - und bietet dadurch den ganzen Tag über viel Sonnenlicht. Ideal zum Entspannen, Essen im Freien oder für gemütliche Stunden mit Familie und Freunden.
Zur Immobilie gehören außerdem eine private Garage sowie ein voll unterkellertes Untergeschoss mit Hauswirtschafts- und Abstellräumen.
Das Haus verbindet den Komfort eines Neubaus mit dem Charme einer ruhigen, grünen und familienfreundlichen Wohngegend.
Lage
Die Immobilie befindet sich in einer der begehrtesten Wohnlagen von Hamburg-Rissen, die für ihre grüne Umgebung, familienfreundliche Atmosphäre und die Nähe zur Elbe bekannt ist. Das Viertel zeichnet sich durch ruhige Wohnstraßen mit gepflegten Häusern und Gärten aus und bietet ein angenehmes, sicheres Wohnumfeld für Familien und Berufstätige.
Die Verkehrsanbindung ist hervorragend: Die nächste Bushaltestelle (Bookweetenkamp) liegt nur etwa 2-3 Gehminuten entfernt, der S-Bahnhof Rissen (S1-Linie) ist in rund 12 Minuten zu Fuß erreichbar und bietet eine direkte Verbindung nach Altona und in die Hamburger Innenstadt in weniger als 30 Minuten.
Das Rissener Ortszentrum mit Einkaufsmöglichkeiten für den täglichen Bedarf, Bäckereien, Cafés, Restaurants und einem beliebten Wochenmarkt befindet sich in unmittelbarer Nähe. Schulen, Kindergärten und Sporteinrichtungen sind ebenfalls schnell erreichbar, was die Lage besonders attraktiv für Familien macht.
Naturfreunde schätzen die Nähe zur Elbe und zum Wittenbergener Strand, der in etwa 15 Minuten zu Fuß erreichbar ist und herrliche Spazier- und Radwege entlang des Wassers bietet.
Insgesamt vereint die Lage ruhiges, grünes Wohnen mit optimaler Anbindung - ideal für alle, die Komfort, Natur und Stadtnähe gleichermaßen schätzen.
Infrastruktur (im Umkreis von 5 km):
Apotheke, Lebensmittel-Discount, Allgemeinmediziner, Kindergarten, Grundschule, Hauptschule, Realschule, Gymnasium, Gesamtschule, Öffentliche Verkehrsmittel
Sonstige Angaben
Heizungsart: Zentralheizung
Energieträger: Gas
Das Haus ist ein Nichtraucherhaus.
Das Haus wird für eine Mietdauer von mindestens 2 Jahren und höchstens 5-7 Jahren angeboten.
Indexmmiete
Alle Angaben erfolgen nach bestem Wissen, jedoch ohne Gewähr. Änderungen und Zwischenvermietung vorbehalten.
ohne-makler (OM) ist weder Anbieter noch Vermittler der Immobilie. OM betreibt eine Plattform für Immobilieneigentümer, die unter anderem die gleichzeitige Veröffentlichung einzelner Inserate auf mehreren Immobilienportalen ermöglicht. Die Inhalte dieser Inserate werden ausschließlich von Dritten verantwortet. Für die Richtigkeit, Vollständigkeit oder Rechtmäßigkeit der Angaben übernimmt OM keine Haftung. Hinweise auf mögliche Rechtsverstöße können jederzeit gemeldet werden und werden nach Prüfung umgehend bearbeitet.
Weitere Dokumente
Energieausweis-1Adresse
22559 Hamburg
Interessante Orte
Preis- und Lageinformationen
Preistrend für Bestandsimmobilien in Rissen
>
>
>