Dieses moderne und traumhafte Einfamilienhaus aus dem Baujahr 2011 präsentiert sich in einem hervorragenden Zustand und bietet mit ca. 218 m2 Wohnfläche und insgesamt 8 Zimmern großzügigen Raum für Familien oder Paare mit Platzbedarf. Das etwa 1.000 m2 große Grundstück wurde liebevoll angelegt und überzeugt mit einem herrlichen Blick ins Grüne.
Dieses Objekt vereint stilvolles Wohnen, großzügige Architektur und naturnahes Leben auf hohem Niveau. Inmitten des „Speckgürtels“ von Hamburg gelegen, präsentiert sich dieses massiv gebaute Einfamilienhaus im Landhausstil als exklusiver Rückzugsort. Ideal für Menschen, die sowohl urbane Nähe als auch ländliche Ruhe und Natur schätzen.
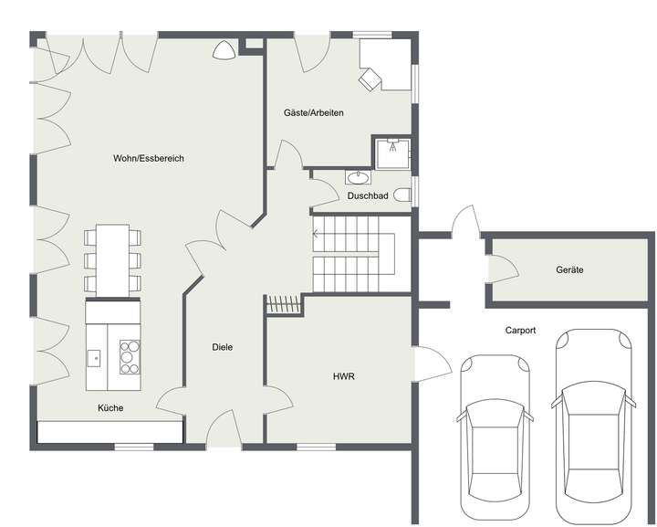
Schon beim Eintreten heißt Sie eine großzügige Diele willkommen. Die beeindruckende Deckenhöhe von ca. 2,90 m verleiht dem Erdgeschoss ein besonders angenehmes und großzügiges Raumgefühl.
Der offene, lichtdurchflutete Wohnbereich mit bodentiefen Fenstern öffnet den Blick in den Garten und schafft eine einladende Wohnatmosphäre. Ein Kaminofen sorgt zusätzlich für gemütliche Wärme.
Die angrenzende Küche mit moderner T-Lösung fügt sich harmonisch in den Wohnbereich ein und bietet viel Platz zum Kochen und Genießen. Die hochwertige Einbauküche ist mit modernen Siemens-Geräten ausgestattet und das Zubereiten von Speisen an der mittig stehenden Kochinsel mit Induktionsherd wird hier zum reinsten Vergnügen.
Ebenfalls im Erdgeschoss befinden sich ein flexibel nutzbares Gäste- oder Arbeitszimmer sowie ein modernes Duschbad.
Besonders praktisch ist der große Hauswirtschaftsraum, der direkt vom Carport
aus betreten werden kann.
Im Obergeschoss stehen drei helle Kinderzimmer, ein Schlafzimmer sowie ein großzügiges Bad en suite zur Verfügung. Das Badezimmer überzeugt mit einer Badewanne und einer offen gestalteten Dusche.
Der ausgebaute Spitzboden bietet mit einem weiteren Schlafraum sowie einem Studio zusätzliche Wohn- oder Arbeitsfläche, ideal für Gäste, Homeoffice oder Ihr Hobby.
Das Haus verfügt über eine energieeffiziente Gas-Brennwertheizung mit Fußbodenheizung, unterstützt durch eine Solarthermieanlage. Dies sorgt für niedrige Betriebskosten. Ein Glasfaseranschluss wurde bereits ins Haus gelegt, ist jedoch noch nicht angemeldet.
Für zusätzlichen Komfort sind alle bodentiefen Fenster und Veluxfenster mit elektrischen Außenrollläden ausgestattet.
Auf dem Grundstück stehen zudem ein praktisches Gartenhaus sowie ein an das Doppelcarport angrenzender Geräteraum zur Verfügung, die ideale Ergänzungen für zusätzlichen Stauraum oder die Unterbringung der Gartengeräte. Erweitert wird der Garten durch geschmackvoll angelegte Hochbeete, ein Gewächshaus, eine großzügige Terrasse und die bereits vorbereitete Möglichkeit, einen Außenpool einzulassen.
Das Einfamilienhaus steht am Ende von einem Privatweg und somit bietet der Garten Ihnen und auch Kindern einen geschützten Bereich abseits der Hauptstraße.
Ein hochwertiges Zuhause, das modernes Wohnen, Komfort und ein liebevoll gestaltetes Umfeld harmonisch verbindet.
In der Nebenkostenvorauszahlung in Höhe von 215,- € sind alle Kostenpositionen, bis auf Gas, Strom und Telefon/ Internet, enthalten. Vor Mietbeginn ist eine Kaution von 8.550,- € zu hinterlegen.
Angestrebt wird ein langfristiges Mietverhältnis mit einem Kündigungsausschluss von 2 Jahren. Für Besichtigungen dieser schönen Immobilie stehen wir gern zur Verfügung und freuen uns über Kontaktaufnahme!
Wunderschönes Landhaus vor den Toren Hamburgs in Eversen-Heide
21279 Neu Wulmstorf
Die vollständige Adresse der Immobilie erhalten Sie vom Anbieter.
Auf Karte anzeigen
Die vollständige Adresse der Immobilie erhalten Sie vom Anbieter.
Infos
| Haustyp | Einfamilienhaus |
|---|---|
| Wohnfläche ca. | 218 m2 |
| Grundstücksfläche | 1.057 m2 |
| Bezugsfrei ab | nach Vereinbarung |
| Zimmer | 8 |
| Schlafzimmer | 7 |
| Badezimmer | 2 |
| Haustiere | Nach Vereinbarung |
| Garage/Stellplatz | Carport |
| Anzahl Garage/Stellplatz | 2 |
Kosten
| Kaltmiete |
2.850 € |
|---|---|
| Nebenkosten | + 215 € |
| Heizkosten | keine Angabe |
| Gesamtmiete | 3.065 € (zzgl. Heizkosten) |
| Kaution o. Genossenschaftsanteile | 8.550,00 |
Weiter mieten oder doch kaufen?
Wer in Miete wohnt, überweist dem Vermieter im Laufe der Jahre hohe Summen, die sich
auch in die eigenen vier Wände investieren lassen könnten.
Bausubstanz & Energieausweis
| Objektzustand | Gepflegt |
|---|---|
| Heizungsart | Fußbodenheizung |
| Wesentliche Energieträger | Gas |
| Energieausweis | liegt vor |
| Energieausweistyp | Verbrauchsausweis |
| Energieverbrauchskennwert | 52,3 kWh/(m²*a) |
| Energieeffizienzklasse | B |
52,3
kWh/(m²*a)
Energieeffizienzklasse B
- A+
- A
- B
- C
- D
- E
- F
- G
- H
- 0
- 25
- 50
- 75
- 100
- 125
- 150
- 175
- 200
- 225
- >250
Beschreibung des Objekts
Lage
Appel ist eine ruhige, ländlich geprägte Gemeinde im Landkreis Harburg und gehört zur Samtgemeinde Hollenstedt. Appel bietet ein attraktives Wohnumfeld für Familien und Naturliebhaber. Die umgebende Landschaft mit Wiesen und Wäldern sorgt für einen hohen Erholungswert, während Geschäfte des täglichen Bedarfs in den nahegelegenen Orten Hollenstedt, Elstorf, Neu Wulmstorf, Nenndorf und Buchholz gut erreichbar sind. Ein besonderes Highlight in der Region sind die zahlreichen Hofläden.
Und in dieser Region gibt es zahlreiche Freizeitmöglichkeiten, wie zum Beispiel Reiterhöfe, Golfplätze, Mountainbike-, Rad-, Wander- und Nordic Walking Routen, attraktive Kulturangebote, Wildparks, gute Restaurants u.v.m..
Dank der schnellen Anbindung über die A1, A7 und A261 sowie Busverbindungen zu den Bahnhöfen in Neu Wulmstorf, Klecken und Buchholz ist Appel verkehrstechnisch gut aufgestellt. Von dort bestehen regelmäßige METRONOM-Verbindungen oder S-Bahn-Verbindungen nach Hamburg. Der Ortsteil Eversen-Heide liegt nur ca. 9 km von der Stadtgrenze von Hamburg entfernt. So verbindet Appel ländliche Ruhe mit guter Erreichbarkeit.
Grundriss
Erdgeschoss
>
>
Dachgeschoss
>
>
Ausgebauter Spitzboden
>
>
Adresse
21279 Neu Wulmstorf
Interessante Orte
Preis- und Lageinformationen
Preistrend für Bestandsimmobilien in Neu Wulmstorf