Diese besondere Immobilie vereint die Vorzüge eines großzügigen Wohnhauses mit der Flexibilität zweier vollständig getrennter Wohneinheiten. Beide Doppelhaushälften werden gemeinsam vermietet und bieten damit ein Wohnkonzept, das sich perfekt für Mehrgenerationen, Wohngemeinschaften, zwei befreundete Familien oder alle eignet, die Wohnen und Arbeiten clever kombinieren möchten. Nähe zueinander, bei gleichzeitig vollständiger räumlicher Unabhängigkeit.
Mit einer Gesamtwohnfläche von ca. 260 m² verteilen sich die beiden Einheiten auf jeweils drei Ebenen. Jede Hälfte verfügt über eine eigene Küche, eigene Bäder sowie gut durchdachte Wohn- und Schlafräume. Damit genießt jeder Bereich maximale Privatsphäre, und dennoch wohnt man Tür an Tür.
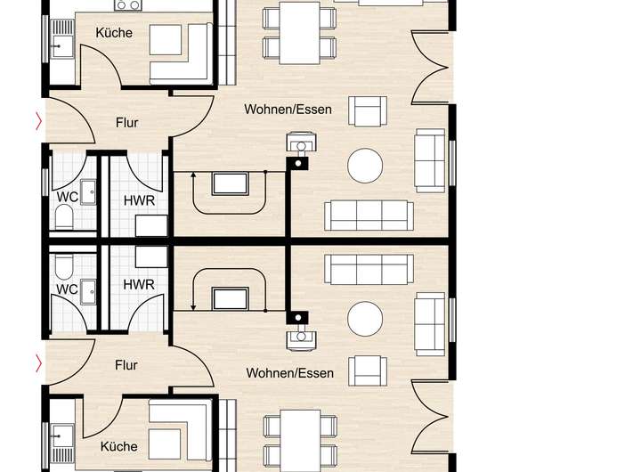
Im Erdgeschoss befinden sich in beiden Haushälften großzügige, lichtdurchflutete Wohn- und Essbereiche, die durch große Fenster ein helles und offenes Wohngefühl vermitteln. Die Küchen bieten ideale Voraussetzungen für gemeinsames oder getrenntes Kochen, ganz nach Ihren Vorstellungen.
Das Obergeschoss hält insgesamt sechs Schlafzimmer bereit, die sich flexibel als Kinder-, Gäste- oder Arbeitszimmer nutzen lassen. Zwei moderne Badezimmer mit Badewanne und Dusche sorgen für zusätzlichen Komfort. Im Dachgeschoss stehen weitere offene Räume zur Verfügung, die sich hervorragend als Studio, Büro oder Hobbybereich eignen.
Das Untergeschoss bietet viel Stauraum mithilfe mehrerer Kellerräume, separater Waschbereiche sowie praktischem Platz für Lagerung, Werkstatt oder Freizeitgestaltung.
Die frisch renovierte Fassade (2024) verleiht dem gesamten Anwesen ein gepflegtes und zeitgemäßes Erscheinungsbild. Vier Außenstellplätze direkt vor dem Haus runden dieses außergewöhnliche Angebot ab.
Ob gemeinsames Wohnen mit der Familie, das Leben mit Freunden oder die Verbindung von Privatsphäre und Zusammengehörigkeit, diese Immobilie eröffnet Ihnen vielseitige Nutzungsmöglichkeiten und ein Wohngefühl, das sich Ihren Bedürfnissen optimal anpasst.
Zwei Einheiten – ein Zuhause: Vielseitige Doppelhaushälfte für gemeinsames Wohnen
89173 Lonsee
Die vollständige Adresse der Immobilie erhalten Sie vom Anbieter.
Auf Karte anzeigen
Die vollständige Adresse der Immobilie erhalten Sie vom Anbieter.
Infos
| Haustyp | Doppelhaushaelfte |
|---|---|
| Wohnfläche ca. | 260 m2 |
| Grundstücksfläche | 501 m2 |
| Zimmer | 12 |
| Schlafzimmer | 8 |
| Badezimmer | 2 |
| Anzahl Garage/Stellplatz | 4 |
Kosten
| Kaltmiete |
3.100 € |
|---|---|
| Nebenkosten | + 600 € |
| Heizkosten | in Nebenkosten enthalten |
| Gesamtmiete | 3.800 € |
| Miete für Garage/Stellplatz | 50 € |
| Kaution o. Genossenschaftsanteile | 9.300,00 EUR |
Weiter mieten oder doch kaufen?
Wer in Miete wohnt, überweist dem Vermieter im Laufe der Jahre hohe Summen, die sich
auch in die eigenen vier Wände investieren lassen könnten.
Bausubstanz & Energieausweis
| Baujahr | 1980 |
|---|---|
| Letzte Sanierung | 2024 |
| Objektzustand | Gepflegt |
| Wesentliche Energieträger | Gas |
| Energieausweis | liegt vor |
| Energieausweistyp | Verbrauchsausweis |
| Energieverbrauchskennwert | 118,0 kWh/(m²*a) |
| Energieeffizienzklasse | D |
118,0
kWh/(m²*a)
Energieeffizienzklasse D
- A+
- A
- B
- C
- D
- E
- F
- G
- H
- 0
- 25
- 50
- 75
- 100
- 125
- 150
- 175
- 200
- 225
- >250
Beschreibung des Objekts
Ausstattung
Einbauküche
Lage
Lonsee bietet eine lebenswerte Mischung aus naturnaher Umgebung und guter Infrastruktur, ideale Voraussetzungen für ein angenehmes Wohnen für unterschiedliche Lebensphasen. Im Ort befinden sich sämtliche Einrichtungen des täglichen Bedarfs: ein Bäcker für den frischen Start in den Tag, verschiedene Arztpraxen, eine Apotheke sowie ein Tierarzt. Kindergarten und Betreuungsangebote sind ebenso vorhanden wie Restaurants und ein gut sortierter Supermarkt, wodurch sich sowohl der Familienalltag als auch der Lebensstil von Paaren oder Singles bequem gestalten lässt.
Die umliegende Natur lädt zu vielfältigen Aktivitäten ein. Direkt vor der Haustür beginnen Felder, Wälder sowie zahlreiche Rad- und Wanderwege, die zu Spaziergängen, sportlichen Unternehmungen oder entspannten Ausflügen ins Grüne einladen. Für junge Familien bieten sichere Wege, Spielmöglichkeiten und viel Natur ideale Bedingungen, während Naturliebhaber und Sportbegeisterte ebenfalls voll auf ihre Kosten kommen.
Ein weiterer Vorteil ist die hervorragende Verkehrsanbindung. Über die nahe gelegene B10 erreicht man Ulm, Geislingen oder Göppingen schnell und unkompliziert, ein Pluspunkt für Berufspendler sowie alle, die die Angebote dieser Städte regelmäßig nutzen möchten. Lonsee bleibt dabei bewusst ruhig, überschaubar und sicher, ohne auf Mobilität verzichten zu müssen.
Die gelungene Kombination aus intakter Infrastruktur, naturnahem Wohngefühl und guter Erreichbarkeit macht Lonsee zu einem Wohnort, der vielseitige Bedürfnisse erfüllt, sei es für Familien, Paare, Alleinstehende oder Menschen, die Wohnen im Grünen mit der Nähe zu städtischen Zentren verbinden möchten.
Grundriss
EG
>
>
OG
>
>
DG
>
>
UG
>
>
Adresse
89173 Lonsee
Interessante Orte
Preis- und Lageinformationen
Preistrend für Bestandsimmobilien in Lonsee