Hier trifft historischer Altstadtflair auf modernes Wohnen. Die helle 2-Zimmer-Mietwohnung befindet sich im 2.OG (Dachgeschoss) in einem der schönsten Altstadthäuser - dem ehemaligen Kornhaus. Es wurde direkt an die Meersburg angebaut und früher von den Mönchen, die nahe der Burg leben sollten, als Wohnhaus genutzt. Die Wohnung wurde im Jahr 2019 komplett kernsaniert. In diesem Zuge wurden die Böden erneuert und mit Trittschalldämmung ausgestattet, das Bad ausgebaut, eine hochwertige Küche eingebaut sowie der Grundriss optimiert. Unter Berücksichtigung denkmalschützender Maßnahmen wurde im Jahr 2022 auch das Dach saniert. Es wurden die Gauben aufwändig aufgebaut, die Ziegel doppelt belegt sowie die oberste Geschossdecke gedämmt. Über den Flur erreichen Sie das erste Zimmer sowie das großzügige Wohnzimmer mit Blick auf die Altstadt. Über die geräumige Küche mit Essbereich gelangen Sie zum weiteren Zimmer, das sich als Hauptschlafzimmer eignet sowie zum angrenzenden Tageslichtbad. Die Wohnung ist momentan vermietet und ab den 01.02.2026 frei. Öffentliche Parkmöglichkeiten befinden sich in Laufnähe.
Modernes Wohnen zwischen Burgen und Schlössern
88709 Meersburg
Die vollständige Adresse der Immobilie erhalten Sie vom Anbieter.
Auf Karte anzeigen
Die vollständige Adresse der Immobilie erhalten Sie vom Anbieter.
Infos
| Wohnungskategorie | Etagenwohnung |
|---|---|
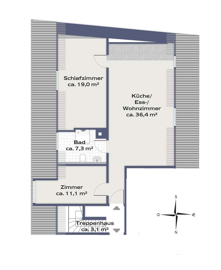
| Wohnfläche ca. | 74 m2 |
| Zimmer | 3 |
| Schlafzimmer | 1 |
| Badezimmer | 1 |
Kosten
| Kaltmiete |
1.110 € |
|---|---|
| Nebenkosten | + 210 € |
| Heizkosten | in Nebenkosten enthalten |
| Gesamtmiete | 1.320 € |
| Kaution o. Genossenschaftsanteile | 2.220,00 EUR |
Weiter mieten oder doch kaufen?
Wer in Miete wohnt, überweist dem Vermieter im Laufe der Jahre hohe Summen, die sich
auch in die eigenen vier Wände investieren lassen könnten.
Bausubstanz & Energieausweis
| Baujahr | 1628 |
|---|---|
| Letzte Sanierung | 2019 |
| Wesentliche Energieträger | Gas |
| Energieausweis | laut Gesetz nicht erforderlich |
Beschreibung des Objekts
Ausstattung
Dielenboden
Parkett
Lage
Die Annehmlichkeiten des städtischen Lebens sind von hier aus fußläufig erreichbar und eindrucksvolle Aussichtsplattformen sind in wenigen Schritten zu erreichen. Die malerische Stadt Meersburg mit ihrem mittelalterlichen Stadtbild finden Sie am Nordufer des Bodensees. Mitten im Herzen der Altstadt mit ihren vielen romantischen Gässchen, den wunderschönen Erholungsplätzen, den herrlichen Aussichtsterrassen sowie den gemütlichen Cafés und Restaurants zeigt sich die Bodenseeregion von ihrer schönsten Seite. Das besondere Flair Meersburgs wird geprägt durch die Burg und das Schloss sowie die lange Promenade direkt am Seeufer. Meersburg bietet eine Vielzahl an Kultur- und Freizeitprogrammen sowie Entspannung in der großen Therme direkt am See. Eine gute Infrastruktur ist durch die sämtlichen Einkaufsmöglichkeiten für den täglichen Bedarf, Ärzte, Schulen und Kindergärten gegeben. Überlingen und Markdorf sind die nächstgelegenen Städte und über Bundesstraßen in ca. 15 Minuten erreichbar. Die Kreisstadt Friedrichshafen, der größte Industriestandort am Bodensee, befindet sich etwa 20 Minuten Autofahrt entfernt. Mit der Tag und Nacht verkehrenden Autofähre gelangen Sie in 15 Minuten zur Kreis-und Universitätsstadt Konstanz. Die nächsten Flughäfen befinden sich in Friedrichshafen und in Zürich.
Grundriss
d0024200-2101-4238-9b08-eccdef
>
>
Adresse
88709 Meersburg
Interessante Orte
Preis- und Lageinformationen
Preistrend für Bestandsimmobilien in Meersburg