Sie möchten unabhängig von Öl und Gas leben?
Dann haben wir genau die richtige Immobilie in 27389 Lauenbrück für Sie.
Bitte nur telefonische Anfragen unter 0152 27630724.
Diese besonderen KfW 40+ Reihenhaushälften werden nach Vereinbarung vermietet.
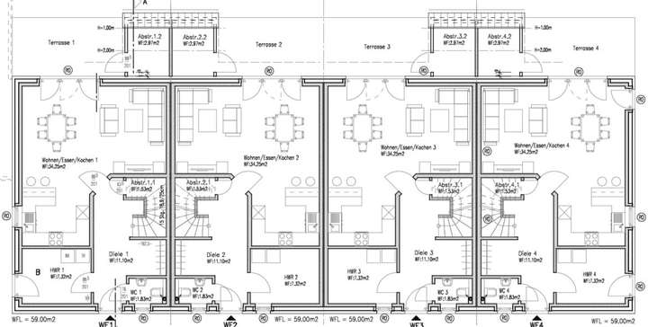
Die Reihenhaushälften bieten mit einer Wohnfläche von ca. 125m² und einer durchdachten Raumaufteilung inkl. wohnraumfertig ausgebauten Spitzboden viel Platz für die gesamte Familie.
Über den Eingangsbereich mit Gäste-WC gelangen Sie in den geräumigen lichtdurchfluteten Wohn-/Essbereich mit Blick in den Garten.
Ihre neue Traumküche mit hochwertigen Elektrogeräten ist hier ebenso zu finden. 3-fach verglaste Fenster mit elektrischen Rolläden und einer Zentralsteuerung gehören zur Hausausstattung und sorgen ebenso für viel Komfort. Die Fußbodenheizung, die sich jeweils im gesamten Haus befindet, sorgt für eine angenehme Temperatur in Ihrem neuen Zuhause. Ausreichend Stauraum bieten auch die Hauswirtschaftsräume mit u.a. Platz für Waschmaschine & Trockner. Im Dachgeschoss werden Sie zu den 3 gut geschnittenen Schlafräumen sowie dem Vollbad geführt. Eine Dusche, eine Badewanne sowie 2 Waschtische sorgen für ein ganz besonderes Wohlfühlgefühl.
Die hocheffiziente Wärmepumpe inkl. Wärmerückgewinnung sorgt in Kombination mit der 6,64 kwp Photovoltaikanlage & dem 8,6 KW Batteriespeicher je Wohneinheit für ein Wohnen unabhängig von Öl & Gas. Wallboxen wurden bereits vorbereitet und können nach Bedarf installiert werden.
Alle Wohn- und Schlafräume sind mit Netzwerkdosen und TV-Anschlüssen ausgestattet. Glasfaser ist bereits verlegt, Sie brauchen nur noch den für Sie passenden Tarif beim Telekommunikationsanbieter bestellen.
Auf die Terrasse mit Abstellraum und dem angrenzenden Garten gelangen Sie über das Wohn/Esszimmer. Im Carport mit einem Stellplatz finden Sie einen weiteren Abstellraum. Ein weiterer Stellplatz steht Ihnen weiterhin auf dem Grundstück zur Verfügung.
Neubau Erstbezug KfW 40+ Reihenhaushälften - Lauenbrück
Im Heidhorn 64,
27389 Lauenbrück
Auf Karte anzeigen
Infos
| Wohnfläche ca. | 125 m2 |
|---|---|
| Grundstücksfläche | 0 m2 |
| Bezugsfrei ab | 23.12.2025 |
| Zimmer | 5 |
| Badezimmer | 1 |
| Haustiere | Nach Vereinbarung |
Kosten
| Kaltmiete |
1.450 € |
|---|---|
| Nebenkosten | + 150 € |
| Heizkosten | in Nebenkosten enthalten |
| Gesamtmiete | 1.600 € |
| Kaution o. Genossenschaftsanteile | 4.350,00 |
Weiter mieten oder doch kaufen?
Wer in Miete wohnt, überweist dem Vermieter im Laufe der Jahre hohe Summen, die sich
auch in die eigenen vier Wände investieren lassen könnten.
Bausubstanz & Energieausweis
| Baujahr | 2025 |
|---|---|
| Objektzustand | Erstbezug |
| Qualität der Austattung | Gehoben |
| Heizungsart | Wärmepumpe |
| Energieausweis | liegt vor |
Beschreibung des Objekts
Lage
Lauenbrück (2399 Einwohner) ist eine kleine harmonische Gemeinde. Hier verbindet sich anspruchsvolles Wohnen im Grünen mit einer hervorragenden Infrastruktur. Kindergarten, Grund-, Haupt- und Realschule, ein Angebot an Einkaufsmöglichkeiten für den tagtäglichen Bedarf und eine ärztliche & zahnärztliche Versorgung finden Sie direkt vor Ort.
Lauenbrück bietet für Ihre Freizeit ein breites Angebot. In vielen Vereinen findet jede Altersgruppe eine sinnvolle und erfüllte Freizeitbeschäftigung. Durch den eigenen Bahnhof erreichen Sie mit den komfortablen Zügen des "Metronom" in rund 40 Minuten Hamburg oder Bremen.
Sonstige Angaben
Miete 1450,00 € kalt
Zzgl. Carport/Stellplatz: 50,00 €
Nebenkosten/Betriebskosten: 100,00 €
Kaution: 4350,00 €
Haustiere nach Vereinbarung.
Vermietung nur mit nachgewiesener Bonität.
Bitte nur telefonische Anfragen unter 0152 27630724.
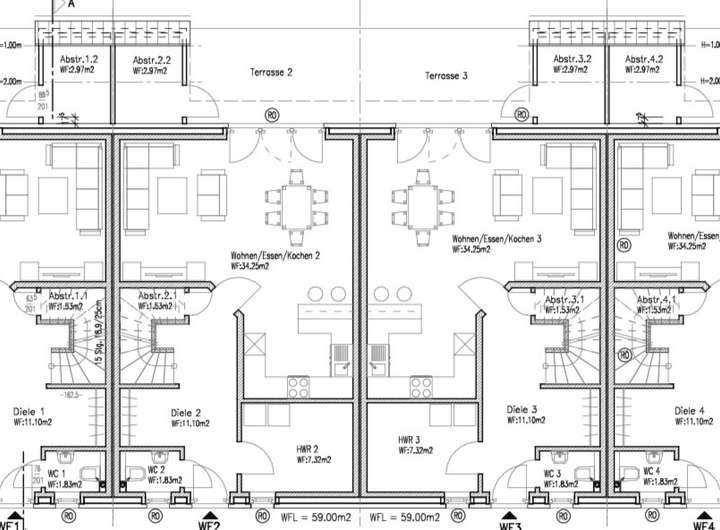
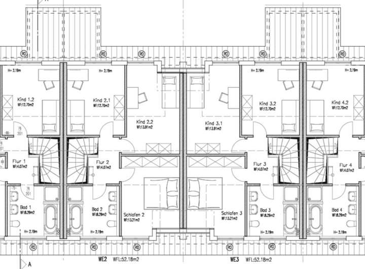
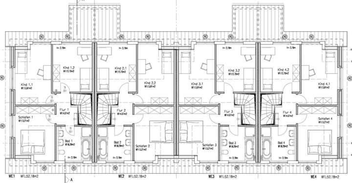
Grundriss
Erdgeschoss
>
>
Dachgeschoss
>
>
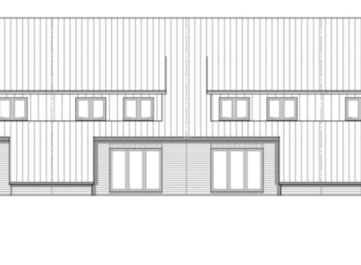
Ansicht NordSüd
>
>
Ansicht Westen
>
>
Ansichten Osten
>
>
Adresse
Im Heidhorn 64, 27389 Lauenbrück
Interessante Orte
Preis- und Lageinformationen
Preistrend für Bestandsimmobilien in Lauenbrück