Bist du bereit? Lass uns loslegen!
Warum warten, wenn dein eigenes Zuhause nur eine Entscheidung entfernt ist?
Unsere Wegbegleiter holen dich dort ab, wo du gerade stehst, und ebnen deinen persönlichen Weg zum Wohneigentum.
Fehlt dir noch das passende Grundstück? Wir helfen dir, es zu finden.
Hast du Fragen zur Finanzierung? Wir haben die Lösung.
Bist du unsicher, welches Haus das richtige für dich ist? Unsere Experten unterstützen dich dabei.
Es gibt nie den perfekten Moment, aber es gibt den richtigen Schritt.
Dein Zuhause beginnt heute mit White&Black.
Heute dein Zuhause, morgen deine Zukunft.
55599 Stein-Bockenheim
Die vollständige Adresse der Immobilie erhalten Sie vom Anbieter.
Auf Karte anzeigen
Die vollständige Adresse der Immobilie erhalten Sie vom Anbieter.
Infos
| Haustyp | Einfamilienhaus |
|---|---|
| Wohnfläche ca. | 140 m2 |
| Nutzfläche | 0 m2 |
| Grundstücksfläche | 558 m2 |
| Zimmer | 4 |
| Schlafzimmer | 3 |
| Badezimmer | 1 |
| Anzahl Garage/Stellplatz | 0 |
Kosten
| Kaltmiete |
2.010 € |
|---|---|
| Nebenkosten | keine Angabe |
| Heizkosten | keine Angabe |
| Gesamtmiete | 2.010 € |
Weiter mieten oder doch kaufen?
Wer in Miete wohnt, überweist dem Vermieter im Laufe der Jahre hohe Summen, die sich
auch in die eigenen vier Wände investieren lassen könnten.
Bausubstanz & Energieausweis
| Baujahr | 2026 |
|---|---|
| Qualität der Austattung | Gehoben |
| Heizungsart | Wärmepumpe |
Beschreibung des Objekts
Ausstattung
THINK WHITE – Do it yourself.
- Fertige Gebäudehülle – du entscheidest über den Innenausbau
- Maximale Individualität – für kreative Köpfe & Macher
- Ideal für Eigenleistung – handwerkliches Geschick spart bares Geld
- Optimierte Grundrisse – smarte Wohnkonzepte für flexible Gestaltung
- Hochwertige Bauweise – modern, nachhaltig & energieeffizient
- Zugang zu staatlichen Förderprogrammen – clever finanzieren & sparen
Für alle, die ihr Zuhause selbst gestalten wollen!
Lage
Stein-Bockenheim ist eine Ortsgemeinde im Landkreis Alzey-Worms in Rheinland-Pfalz. Sie gehört zur Verbandsgemeinde Wöllstein - Leben, wo andere Urlaub machen:-)!
Sonstige Angaben
Vereinbare einen persönlichen Beratungstermin, um über Deinen Haustraum und das angebotene Objekt zu sprechen.
Bitte beachte, dass die dargestellten Bilder und Grundrisse nur beispielhaft sind und unter Umständen Sonderbauteile enthalten, die nicht im angegebenen Preis enthalten sind.
Hab außerdem bitte Verständnis dafür, dass weitere Details zum angebotenen Grundstück erst nach einem persönlichen Gespräch bekanntgegeben werden und nur vollständige Anfragen bearbeitet werden können.
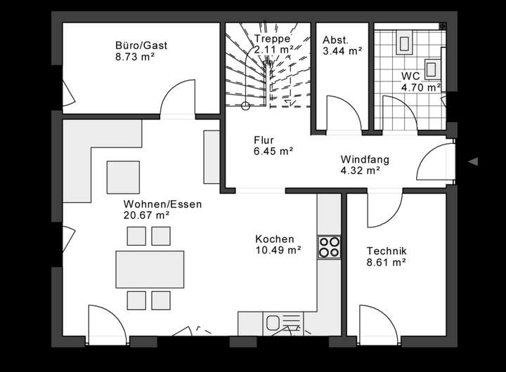
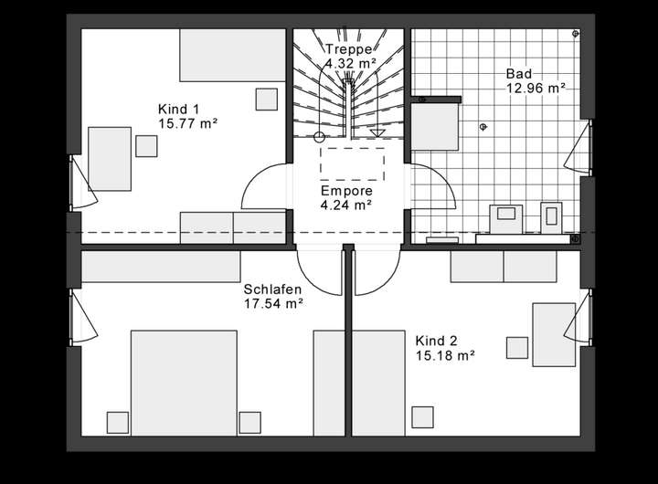
Grundriss
Grundriss EG
>
>
Grundriss OG
>
>
Adresse
55599 Stein-Bockenheim
Interessante Orte
Preis- und Lageinformationen
Preistrend für Bestandsimmobilien in Stein-Bockenheim