Dieses moderne und energieeffiziente Reihenmittelhaus mit 5,5 Zimmer aus dem Jahr 2016 befindet sich in einer ruhigen, verkehrsberuhigten Neubausiedlung in Bremen-Arsten – ideal für Familien mit Kindern oder Paare mit Platzbedarf.
Das Haus ist derzeit an eine Familie vermietet und wird ab dem 01.02.2026 verfügbar sein.
Die ca. 155 m² große Wohn- und Nutzfläche verteilt sich auf drei Vollgeschosse sowie einen ausgebauten Spitzboden. Das gepflegte Grundstück umfasst ca. 189 m² inklusive einem liebevoll angelegten Garten mit sonniger Südwest-Terrasse, Sichtschutz und einem hochwertigen Gartenhaus (Karibu, 3 × 3 m).
Herzstück des Hauses ist der großzügige Wohn-/Essbereich mit offener Küche. Die hochwertige Einbauküche der Marke Häcker Systemat (ca. 12 m) ist mit modernen Siemens- und Miele-Geräten ausgestattet – perfekt für ambitionierte Köche.
Das Haus wird über ein nachhaltiges Blockheizkraftwerk (Fernwärme) beheizt – effizient, wartungsarm und kostengünstig.
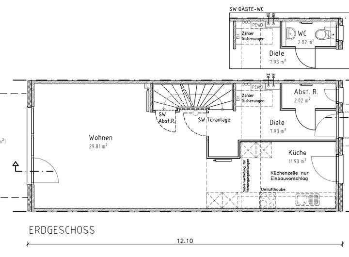
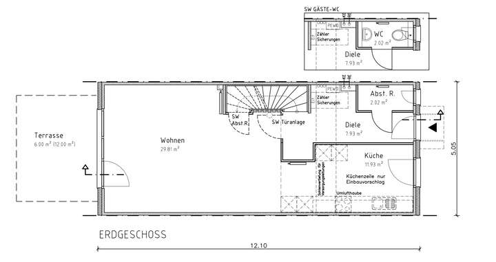
Raumaufteilung:
Erdgeschoss:
• Gepflasterter Eingangsbereich
• Diele mit großer Garderobennische
• Gäste-WC
• Offener Wohn-/Essbereich mit Zugang zur Terrasse
• Hochwertige Einbauküche (Häcker) mit Miele- und Siemens-Geräten
• Abstellraum unter der Treppe
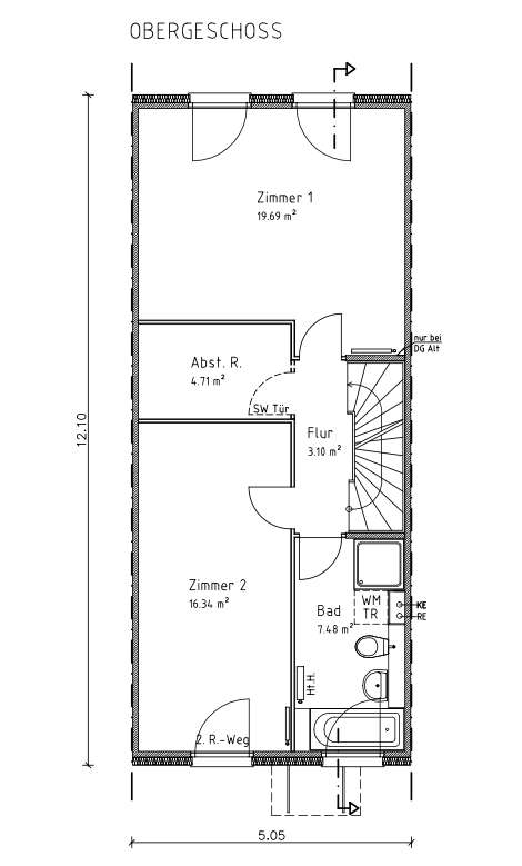
Obergeschoss:
• Elternschlafzimmer
• Kinderzimmer/Home-Office
• Tageslichtbad mit Badewanne & Waschmaschinenanschluss
• Separater Abstellraum (z. B. Ankleide) / klein Zimmer
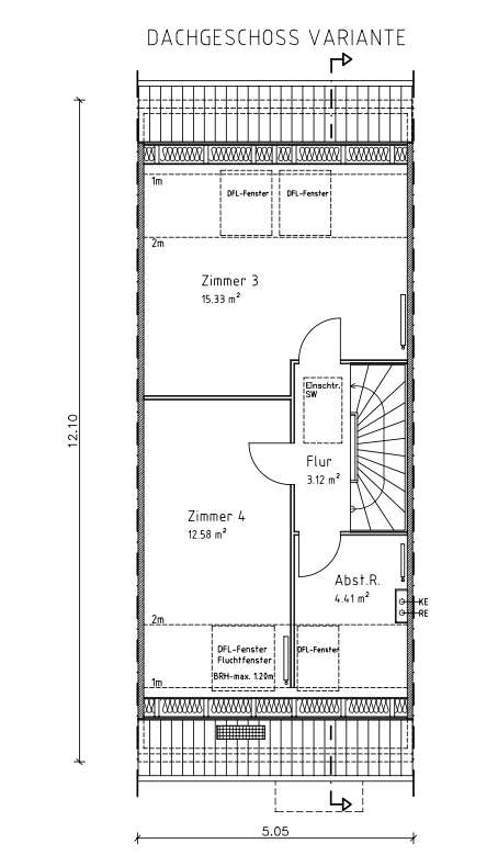
Dachgeschoss:
• Zwei flexibel nutzbare Zimmer (Kinder, Gäste, Büro)
• Zusätzlicher Abstellraum
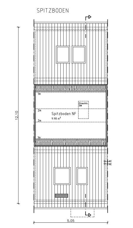
Spitzboden:
• Über Einschubtreppe erreichbar
• Ideal als Stauraum für selten genutzte Gegenstände
• Baujahr 2016 – energieeffizient, moderner Zustand
• Energieeffizienzklasse A (47 kWh/m²a)
• Einbauküche (Häcker) mit Miele- und Siemens-Geräten
• Südwest-Terrasse & Gartenhaus (Karibu, 3×3 m)
• Vorgarten mit Pflasterung & Blumenbeet
• Fernwärme (Blockheizkraftwerk)
• Familienfreundliche Raumaufteilung auf 3 Etagen + Spitzboden
• Carport
Modernes & energieeffizientes RH mit 5,5 Zi und hochwertiger EBK in Neubausiedlung in Bremen-Arsten
28279 Bremen
Die vollständige Adresse der Immobilie erhalten Sie vom Anbieter.
Auf Karte anzeigen
Die vollständige Adresse der Immobilie erhalten Sie vom Anbieter.
Infos
| Haustyp | Reihenmittelhaus |
|---|---|
| Etagenzahl | 3 |
| Wohnfläche ca. | 145 m2 |
| Nutzfläche | 10 m2 |
| Grundstücksfläche | 189 m2 |
| Bezugsfrei ab | 1.2.2026 |
| Zimmer | 5,5 |
| Schlafzimmer | 4 |
| Badezimmer | 1 |
| Haustiere | Nach Vereinbarung |
| Garage/Stellplatz | Carport |
| Anzahl Garage/Stellplatz | 1 |
Kosten
| Kaltmiete |
1.780 € |
|---|---|
| Nebenkosten | + 165 € |
| Heizkosten | keine Angabe |
| Gesamtmiete | 1.945 € (zzgl. Heizkosten) |
| Miete für Garage/Stellplatz | 50 € |
| Kaution o. Genossenschaftsanteile | 3560 |
Weiter mieten oder doch kaufen?
Wer in Miete wohnt, überweist dem Vermieter im Laufe der Jahre hohe Summen, die sich
auch in die eigenen vier Wände investieren lassen könnten.
Bausubstanz & Energieausweis
| Baujahr | 2016 |
|---|---|
| Objektzustand | Neuwertig |
| Qualität der Austattung | Gehoben |
| Heizungsart | Blockheizkraftwerk |
| Wesentliche Energieträger | Fernwärme |
| Energieausweis | liegt vor |
| Energieausweistyp | Bedarfsausweis |
| Energieverbrauchskennwert | 47,0 kWh/(m²*a) |
| Energieeffizienzklasse | A |
47,0
kWh/(m²*a)
Energieeffizienzklasse A
- A+
- A
- B
- C
- D
- E
- F
- G
- H
- 0
- 25
- 50
- 75
- 100
- 125
- 150
- 175
- 200
- 225
- >250
Beschreibung des Objekts
Ausstattung
(Teil-)möblierte Vermietung auf Wunsch möglich.
Lage
Das Haus liegt in einer ruhigen, kinderfreundlichen Neubausiedlung im Stadtteil Arsten mit hervorragender Anbindung:
• Einkaufsmöglichkeiten: ca. 1 km
• Schulen & Kitas: fußläufig in ca. 5 Minuten
• Straßenbahnlinie 4: ca. 3 Minuten zu Fuß (ca. 15 Min. in die Innenstadt)
• Krankenhaus „Links der Weser“: ca. 2 km
• Autobahnen A1 & A27 sowie Flughafen: schnell erreichbar
Freizeit: Der beliebte Sportverein TuS Komet Arsten liegt direkt nebenan und bietet ein breites Sport- und Freizeitangebot. Der nahegelegene Wadeackersee und viele Grünflächen laden zum Spazieren und Entspannen ein.
Sonstige Angaben
Miete:
• Kaltmiete: 1.780 €
• Carport: 50€
• Die Nebenkosten sind Verbrauchsabhängig (keine Pauschale)
• Nebenkosten (Betriebskosten): 165 €
• Nebenkosten (Heizung, Wasser, Entwasserung, Strom): Verbrauchsabhängig
• (Teil-)möblierte Vermietung auf Wunsch möglich.
• Provisionsfrei direkt vom Eigentümer.
• Einige Bilder stammen aus der Zeit nach Fertigstellung.
Besichtigung & Kontakt:
Besichtigungstermine sind nach Vereinbarung möglich.
Bitte senden Sie bei Interesse eine kurze Vorstellung Ihrer Familie bzw. Lebenssituation.
Grundriss
EG
>
>
OG
>
>
DG
>
>
SB
>
>
Haus
>
>
Adresse
28279 Bremen
Interessante Orte
Preis- und Lageinformationen
Preistrend für Bestandsimmobilien in Arsten