Es handelt sich um ein 2016 gebautes und großzügiges Einfamilienhaus in der Steinkirchner Ortsmitte. Besonderheit: Es befindet sich in der Hausmitte ein Aufzug/Fahrstuhl, um in die anderen Etagen zu gelangen, sowie eine Dachterrasse im Dachgeschoss.
Aufteilung:
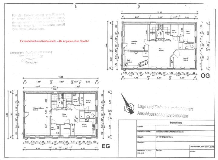
Erdgeschoss:
- Windfang
- Diele
- Gäste WC
- Wohn-/Essbereich
- Treppenhaus mit Fahrstuhl
- Hauswirtschaftsraum
- Gästezimmer 1 - mit Zugang zum
- Gäste Duschbad
- Küche mit EBK
- Terrasse mit Gartenhaus
Obergeschoss:
- Flur
- Vollbad
- Schlafzimmer mit Balkon
- Treppenhaus mit Fahrstuhl
- Abstellraum
- Gästezimmer 2 - mit Zugang zum
- Gäste Duschbad
- Gästezimmer 3
Dachgeschoss:
- Treppenhaus mit Fahrstuhl
- Flur
- Dachboden links ausgebaut mit einem Zimmer und Duschbad.
- Dachboden rechts - Heizungsraum + Nutzung als Abstellfläche
- Dachterrasse
Exklusives Einfamilienhaus in zentraler Lage
21720 Steinkirchen
Die vollständige Adresse der Immobilie erhalten Sie vom Anbieter.
Auf Karte anzeigen
Die vollständige Adresse der Immobilie erhalten Sie vom Anbieter.
Infos
| Haustyp | Einfamilienhaus |
|---|---|
| Etagenzahl | 3 |
| Wohnfläche ca. | 230 m2 |
| Grundstücksfläche | 169 m2 |
| Bezugsfrei ab | 01.02.2026 |
| Zimmer | 6 |
| Schlafzimmer | 5 |
| Badezimmer | 4 |
| Haustiere | Nein |
| Garage/Stellplatz | Außenstellplatz |
| Anzahl Garage/Stellplatz | 1 |
Kosten
| Kaltmiete |
1.900 € |
|---|---|
| Nebenkosten | + 220 € |
| Heizkosten | keine Angabe |
| Gesamtmiete | 2.120 € (zzgl. Heizkosten) |
| Kaution o. Genossenschaftsanteile | 3.800,00 |
Weiter mieten oder doch kaufen?
Wer in Miete wohnt, überweist dem Vermieter im Laufe der Jahre hohe Summen, die sich
auch in die eigenen vier Wände investieren lassen könnten.
Bausubstanz & Energieausweis
| Baujahr | 2016 |
|---|---|
| Objektzustand | Gepflegt |
| Qualität der Austattung | Gehoben |
| Heizungsart | Gas-Heizung |
| Wesentliche Energieträger | Gas |
| Energieausweis | liegt vor |
| Energieausweistyp | Bedarfsausweis |
| Energieverbrauchskennwert | 82,0 kWh/(m²*a) |
| Energieeffizienzklasse | C |
82,0
kWh/(m²*a)
Energieeffizienzklasse C
- A+
- A
- B
- C
- D
- E
- F
- G
- H
- 0
- 25
- 50
- 75
- 100
- 125
- 150
- 175
- 200
- 225
- >250
Beschreibung des Objekts
Ausstattung
Einbauküche u.a. ausgestattet mit Dunstabzugshaube, erhöht angeordneten Backofen, Kühlschrank, Cerankochfeld, Spüle, Geschirrspüler. (siehe soweit die Bilder)
Insgesamt 1 Gäste-WC, 3 Duschbäder, 1 Vollbad mit Dusche und Badewanne.
Fußbodenheizung im gesamten Haus.
Alle Bereiche des Hauses mit Holzdekorfliesen gefliest. (Siehe Bilder)
Waschmaschinenanschluss im Hauswirtschaftsraum.
Glasfaseranschluss und Außenwasseranschluss vorhanden.
Terrasse und Balkon.
Lage
Das Einfamilienhaus liegt im Zentrum von Steinkirchen, direkt am Lühedeich.
Die Gemeinde Steinkirchen liegt im wunderschönen Alten Land, dem größten zusammenhängenden "Obstgarten" Europas zwischen Stade und Buxtehude.
Zusammen mit 5 weiteren Gemeinden bildet Steinkirchen die Samtgemeinde Lühe.
Steinkirchen bietet fußläufig schnell erreichbar diverse Einkaufsmöglichkeiten wie einen REWE-Markt, Bäcker, Fitnessstudio, Friseur, Fahrradgeschäft, Post, etc. auch Ärzte sowie Zahnärzte und Apotheke. Auch Kindergarten, Grund- und Oberschule haben ihren Sitz in Steinkirchen. Weiterführende und berufsbildende Schulen werden in Stade oder Buxtehude besucht.
Sonstige Angaben
Haustiere (Hunde und Katzen) sind hier nicht erlaubt !!!
Bitte beachten: Interessierte müssen mindestens ein ausreichendes, festes Einkommen nachweisen (Einkommensnachweise der letzten drei Monate) sowie eine positive Schufa-Auskunft und eine vollständig ausgefüllte Selbstauskunft.
Anfragen von Personen, die offensichtlich keine Einkommensnachweise vorlegen können, werden nicht mehr beantwortet. Wir bitten diesbezüglich um Verständnis.
Anfragen bitte schriftlich über das Kontaktformular.
Haustiere (Hunde und Katzen) sind hier nicht erlaubt !!!
Die Mindestvertragslaufzeit beträgt 2 Jahre! Vertragsgrundlage ist ein Indexmietvertrag.
Hinweis für Auswärtige Interessenten:
Wir hoffen, Sie haben sich mit der Lage des Ortes und des Hauses befasst. Die Wohnung ist ca. 1 Std. von HH entfernt (südlich der Elbe); Steinkirchen liegt zwischen Stade und Buxtehude. (Bundesland Niedersachsen) Öffentliche Verkehrsmittel (S-Bahn) sind in Stade (ca. 10 km). Buxtehude (ca. 12 km entfernt) vorhanden. Man sollte zumindest einen PKW haben.
Grundriss
Grundriss EG + OG
>
>
Seitenansicht - Grundriss DG
>
>
Adresse
21720 Steinkirchen
Interessante Orte
Preis- und Lageinformationen
Preistrend für Bestandsimmobilien in Steinkirchen