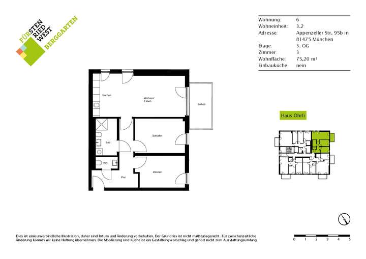
Diese helle und gut geschnittene 3-Zimmer-Wohnung überzeugt durch ihre klare Raumaufteilung und den praktischen Grundriss. Beim Betreten der Wohnung gelangen Sie in den zentralen Flur, von dem aus alle Räume erreichbar sind. Direkt gegenüber von der Eingangstür befindet sich ein separates WC, daneben das moderne Bad mit Dusche und Waschmaschinenanschluss.
Der offene Wohn- und Essbereich mit angrenzender Küche bietet viel Platz für gemeinsame Stunden und überzeugt durch seine Helligkeit. Vom Wohnzimmer aus haben Sie Zugang zum Balkon, der zum Entspannen im Freien einlädt.
Das Schlafzimmer sowie das weitere Zimmer (ideal als Kinder-, Gäste- oder Arbeitszimmer) liegen ruhig zur Seite der Wohnung und bieten durch ihre rechteckige Form vielfältige Einrichtungsmöglichkeiten.
Mobil gedacht. Entspannt in einem modernen Quartier gelebt.
Appenzeller Straße 95b,
81475 München
Auf Karte anzeigen
Infos
| Wohnungskategorie | Etagenwohnung |
|---|---|
| Etage | 3 von 5 |
| Wohnfläche ca. | 75 m2 |
| Bezugsfrei ab | 01.02.2026 |
| Zimmer | 3 |
| Schlafzimmer | 1 |
| Badezimmer | 1 |
| Garage/Stellplatz | Garage |
Kosten
| Kaltmiete |
1.950 € |
|---|---|
| Nebenkosten | + 228 € |
| Heizkosten | in Nebenkosten enthalten |
| Gesamtmiete | 2.178 € |
| Miete für Garage/Stellplatz | 100 € |
| Kaution o. Genossenschaftsanteile | 5.850,00 |
Weiter mieten oder doch kaufen?
Wer in Miete wohnt, überweist dem Vermieter im Laufe der Jahre hohe Summen, die sich
auch in die eigenen vier Wände investieren lassen könnten.
Bausubstanz & Energieausweis
| Objektzustand | Erstbezug |
|---|---|
| Qualität der Austattung | Gehoben |
| Energieausweis | liegt zur Besichtigung vor |
Beschreibung des Objekts
Ausstattung
Auch im Innenbereich setzt der BERGGARTEN auf zeitgemäßen Wohnkomfort und nachhaltige Qualität. Großformatige, bodentiefe Fenster in Holz-Aluminium-Ausführung sorgen für helle, lichtdurchflutete Räume. Parkettböden in Eiche, elegante Fliesen in Bad und Küche sowie eine Fußbodenheizung bieten eine hochwertige Basis für die persönliche Wohnraumgestaltung.
- Massives Hybridtragwerk mit Holztafel-Außenwänden
- Moderne Fassade mit Holz- und Faserzementverkleidung
- Extensive Dachbegrünung und Photovoltaikanlage
- Fußbodenheizung in allen Wohnräumen
- Hochwertiges Eichen-Parkett
- Feinsteinzeugfliesen in Küche und Bad
- Bodentiefe Holz-Aluminium-Fenster
- Balkone oder Terrasse
- Fernwärmeversorgung
- IP-fähige Video-Gegensprechanlage
- Fahrradstellplätze und Kellerabteile im UG
- PV-Mieterstrom-Modell
- Kostenfreies Quartiersfitnessstudio
- Digitalisierungskonzept und Mieterapps
Lage
Im Süden der bayerischen Landeshauptstadt liegt Fürstenried – ein Stadtteil, der sich seit seiner Entstehung als Wohnviertel einen ruhigen, lebensnahen und familienfreundlichen Charakter bewahrt hat. Geprägt von weitläufigen Wohnanlagen, Einfamilienhäusern und viel Grün, vereint Fürstenried gewachsene Strukturen mit hoher Lebensqualität. Wahrzeichen des Viertels ist das barocke Schloss Fürstenried, das nicht ohne Grund als „Klein-Nymphenburg“ bezeichnet wird. Familien schätzen die kinderfreundliche Atmosphäre, die gute Bildungsinfrastruktur und die durchdachte Stadtplanung mit viel Platz zum Leben, Spielen und Durchatmen. Der Schlosspark, der Forstenrieder Park und der Wildpark bieten attraktive Naherholungsmöglichkeiten direkt im Viertel – ergänzt durch ein aktives Vereinsleben, das den Gemeinschaftssinn stärkt. Fürstenried ist hervorragend angebunden: Die U-Bahn bringt Pendler schnell ins Zentrum, über die nahe gelegene Autobahn erreicht man zügig das Münchener Umland. Auch die Nahversorgung ist gesichert: Rund um den Schweizer Platz, der mit dem Brunnen „Schweizer Brocken“ ein lokales Highlight setzt, finden regelmäßig Wochenmärkte statt. Ein REWE-Markt und ein neuer EDEKA sorgen für den täglichen Bedarf. Daneben prägen Traditionsgasthäuser und Biergärten das Straßenbild – beliebte Treffpunkte für Jung und Alt. Nicht zuletzt macht die Nähe zum Gewerbe- und Industriestandort Obersendling Fürstenried auch für Berufstätige zu einem gefragten Wohnort – mit dem perfekten Mix aus städtischer Nähe und dörflichem Charme.
Im Herzen des nachhaltigen Quartiers FÜRstenried West entsteht mit dem BERGGARTEN ein moderner Neubau, der urbane Lebensqualität, soziale Infrastruktur und nachhaltige Architektur vereint. Der sechsgeschossige Neubau fügt sich harmonisch in das grüne Quartier ein und bietet in den oberen Etagen insgesamt 16 moderne Wohnungen mit durchdachten Grundrissen für unterschiedlichste Lebensentwürfe. Im Erdgeschoss und ersten Obergeschoss befindet sich ein zweigeschossiges Haus für Kinder (HfK) mit Kita, Krippe und Hort – das macht den BERGGARTEN besonders attraktiv für Familien mit Kindern. Die Verbindung aus Wohnraum und Kinderbetreuung direkt im Haus steht sinnbildlich für das integrative, zukunftsfähige Konzept des Quartiers. Besonderes Augenmerk liegt auf der baulichen Qualität: Der BERGGARTEN wird in Hybridbauweise errichtet – mit einer Kombination aus Stahlbetontragwerk und selbsttragender Holztafel-Außenwand. Die markante Fassadengestaltung mit großformatigen Faserzementplatten und fein gerillten Holzlatten verleiht dem Gebäude ein modernes, zugleich warmes Erscheinungsbild. Dachbegrünung, eine Photovoltaikanlage sowie ein klimafreundliches Energiekonzept auf Basis von Fernwärme tragen aktiv zur Nachhaltigkeit bei. Die Gestaltung der Außenanlagen sowie die verkehrsberuhigte Erschließung runden das familienfreundliche Konzept ab. Der BERGGARTEN steht für einen zukunftsorientierten Wohnstil im Süden Münchens – lebendig, gemeinschaftlich und ressourcenschonend.
Sonstige Angaben
Bei den Bildern handelt es sich um unverbindliche Visualisierungen und Bilder einer Musterwohnung. Gerne können Sie sich im Zuge einer Besichtigung der Musterwohnung vom BERGGARTEN überzeugen.
WEITERE INFOS UNTER WWW.BERGGARTEN-FUERSTENRIEDWEST.DE
HAFTUNGSAUSSCHLUSS:
Diese Anzeige dient nur der ersten Information und stellt kein Vertragsangebot dar. Die Anzeige begründet keine vertraglichen Ansprüche. Der Inhalt und die Angaben wurden nach bestem Wissen und Gewissen ermittelt. Für Richtigkeit und Vollständigkeit wird keine Haftung übernommen. Die Grundrisse sind nicht zur Maßentnahme geeignet. Bei den Flächenangaben handelt es sich um Planmaße.
Bei den Objektdarstellungen handelt es sich um unverbindliche Visualisierungen (Visualisierungen von ADRIAN BECK PHOTOGRAPHER / h4a Gessert + Randecker).
Weitere Dokumente
MietinteressentenbogenGrundriss
Grundriss
>
>
Adresse
Appenzeller Straße 95b, 81475 München
Interessante Orte
Preis- und Lageinformationen
Preistrend für Bestandsimmobilien in Fürstenried